MỤC LỤC
Thông tin bổ sung
| Chiều rộng mặt tiền | Mặt tiền 5m-11m |
| Địa điểm | Thường Tín – Hà Nội |
| Diện tích | Diện tích 100m2-200m2 |
| Kiểu kiến trúc, phong cách | Kiến trúc tân cổ |
| Loại công trình | Nhà ống |
| Số tầng | 3 Tầng 1 tum |
Mặt bằng công năng mẫu nhà phố 3 tầng 1 tum tân cổ
Sau khi tiến hành khảo sát hiện trường khu đất, lắng nghe và thấu hiểu một cách sâu sắc những mong muốn của gia chủ, chúng tôi đã bố trí các phòng một cách thật hợp lý cho gia chủ.
Công trình thiết kế mái nhật đẹp với
- Phối cảnh tổng thể công trình có chiều rộng mặt tiền : “ 5 m “ và chiều sâu : “11.33 m”
- Diện tích sử dụng : 195 m2
Sự hoàn mỹ của một công trình, không chỉ nằm ở phần thẩm mỹ ngoại thất mà còn đòi hỏi phải mang lại được sự tiện nghi về công năng sử dụng. Thấu hiểu rõ điều đó, chúng tôi đã nghiên cứu và bố trí mặt bằng công năng một cách hợp lý, phù hợp với nhu cầu sinh hoạt của gia đình. Sau đây, xin mời quý khách cùng tìm hiểu chi tiết công năng sử dụng của mẫu nhà ống đẹp này.
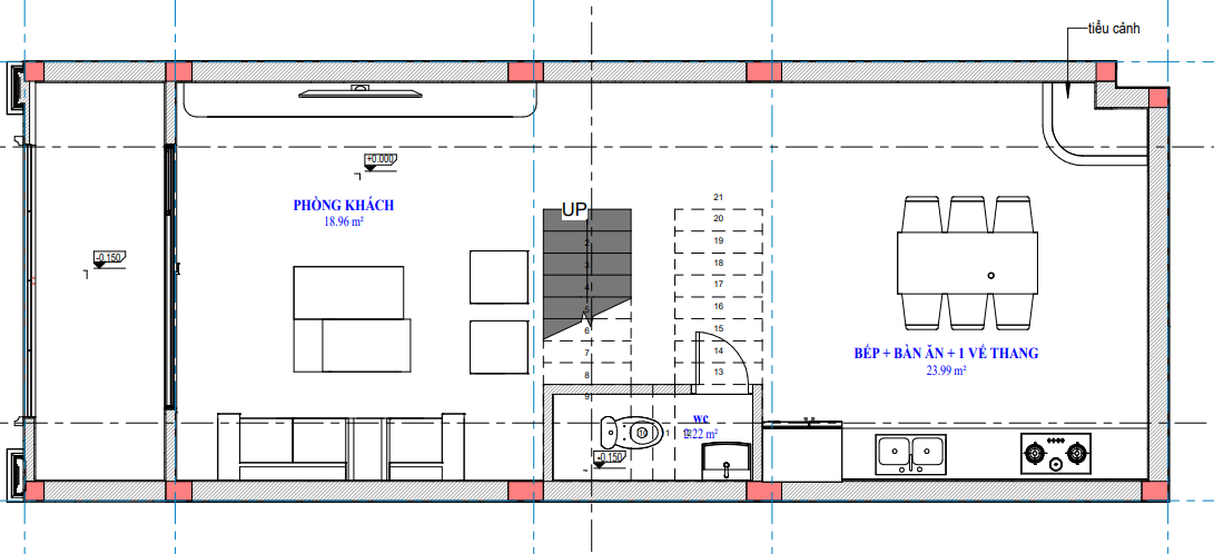
Tầng 1:
- Không gian phòng khách có diện tích 18.96 m2
- Phòng bếp cùng phòng ăn có diện tích 23.99 m2
- 1 Phòng vệ sinh có diện tích 3.22 m2

Mặt bằng công năng tầng 1
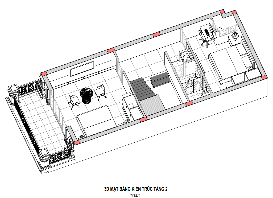
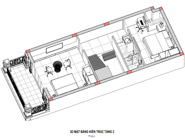
Tầng 2:
- Phòng ngủ 1 có diện tích 17.96 m2
- Phòng ngủ 2 có diện tích 12.41 m2
- 1 Phòng vệ sinh có diện tích 4.14 m2

Mặt bằng công năng tầng 2
Tầng 3:
- Phòng ngủ 3 có diện tích 17.96 m2
- Phòng ngủ 4 có diện tích 12.01 m2
- 1 Phòng vệ sinh có diện tích 4.14 m2

Mặt bằng công năng tầng 3
Tầng tum:
- Không gian phòng thờ

Mặt bằng công năng tầng tum
Phối cảnh 3D mẫu nhà ống đẹp
Tọa lạc tại vị trí đắc địa tại Hà Nội, ngôi biệt thự của gia đình anh Phong được thiết kế theo phong cách tân cổ điển châu Âu, nổi bật với vẻ đẹp sang trọng, bề thế và giàu tính biểu tượng. Công trình có quy mô nhà phố cao tầng, mặt tiền hẹp nhưng được xử lý khéo léo để tạo cảm giác cao ráo, thanh thoát và đẳng cấp. Tổng thể ngôi nhà gây ấn tượng mạnh nhờ sự cân đối hoàn hảo giữa hình khối – chi tiết trang trí – màu sắc – vật liệu.

Mẫu nhà ống tân cổ đẹp
Mẫu thiết kế mẫu nhà ống đẹp trên được đội ngũ kiến trúc sư thổi hồn với phong cách tân cổ điển độc đáo cùng gam màu trắng ngà chủ đạo. Sự tương phản còn thể hiện ở khu vực tầng 1 phần cổng chính sử dụng họa tiết hoa văn đắp nổi tinh xảo được sơn giả đá trang nhã với gam màu vàng kim-nâu ánh đồng: mang lại cảm giác sang trọng và góp phần tăng cao về mặt thẩm mỹ, cùng theo đó là đảm bảo độ bền cho bề mặt tường.

Mẫu nhà ống tân cổ đẹp
Ban công các tầng sử dụng hệ lan can sắt sơn tĩnh điện màu vàng ánh kim mang ý nghĩa phú quý – thịnh vượng – đẳng cấp, giúp công trình trở nên nổi bật và khác biệt so với các nhà phố xung quanh, lại vừa có giá thành rẻ giúp tiết kiệm kinh phí xây dựng. Những thức cột vuông ẩn tường được trang trí vô cùng đẹp mắt với những phào chỉ dọc theo thân càng làm tăng sự bề thế, uy nghi cho công trình.
Các ô cửa sổ cũng được phào chỉ nhẹ nhàng, tinh tế. Cửa có kích thước lớn được làm bằng chất liệu nhôm kính xingfa giúp tận dụng tối đa ánh sáng chiếu vào trong nhà mang không khí trong lành, thoáng đãng tạo cảm giác rộng rãi đồng thời cũng mở ra nhiều hướng view đẹp mắt ra khung cảnh bên ngoài.

Mẫu nhà ống tân cổ đẹp
Ban công tầng 3 còn được quy hoạch khoảng sân nhỏ làm bàn trà cùng với hệ tiểu cảnh xanh mát được bố trí hợp lý vừa là nơi để gia đình quây quần, sum họp gắn kết tình cảm vừa mang đến không gian sống xanh, tươi mới, xua tan mọi mệt mỏi của ngày dài. Đây quả là mẫu thiết kế tuyệt vời với những ai yêu thích sự yên bình giữa sự tấp nập, bộn bè nơi thành phố.
Thông tin liên hệ và tư vấn
Công ty cổ phần kiến trúc Osaka là một trong những công ty đi đầu trong lĩnh vực thiết kế và thi công trọn gói công trình nhà dân trên 63 tỉnh thành, uy tín hàng đầu tại Việt Nam, trên 10 năm kinh nghiệm có đội ngũ kiến trúc sư chuyên nghiệp. Chuyên thiết kế nhà đẹp, công trình thi công đảm bảo chất lượng, bàn giao đúng tiến độ. Hãy đến với chúng tôi để sở hữu ngôi nhà đẹp của riêng bạn không chỉ ở mẫu nhà ống tân cổ mà còn ở mọi phong cách.
Để được tư vấn thiết kế nhà đẹp và thi công uy tín, đảm bảo hiện thực hóa đúng bản vẽ và tiến độ, mời Quý khách hàng liên hệ: hotline 0876.11.0000



























Đánh giá
Chưa có đánh giá nào.