MỤC LỤC
Thông tin bổ sung
| Chiều rộng mặt tiền | Mặt tiền 4m-19m |
| Địa điểm | Hoàng Mai – Hà Nội |
| Diện tích | Diện tích 100m2-200m2 |
| Kiểu kiến trúc, phong cách | Kiến trúc tân cổ |
| Loại công trình | Nhà ống |
| Số tầng | 3 Tầng |
Mặt bằng công năng mẫu nhà phố 3 tầng tân cổ
Sau khi tiến hành khảo sát hiện trường khu đất, lắng nghe và thấu hiểu một cách sâu sắc những mong muốn của gia chủ, chúng tôi đã bố trí các phòng một cách thật hợp lý cho gia chủ.
Công trình thiết kế mái nhật đẹp với :
- Phối cảnh tổng thể công trình có chiều rộng mặt tiền : “ 4 m “ và chiều sâu : “ 18.94 m”
- Diện tích sử dụng : 186 m2
Thực sự, một ngôi nhà không chỉ nhìn ở vẻ bề ngoài đẹp rồi nói là hoàn hảo được. Muốn hoàn hảo thì ngôi nhà phải được bố trí các phòng chức năng hợp lý để tận dụng tối đa công năng sử dụng. Hiểu được một cách sâu sắc điều đó, chúng tôi đã bố trí các phòng một cách thật hợp lý cho gia nhà. Sau đây chúng tôi xin giới thiệu cho các bạn công năng sử dụng của mẫu nhà ống đẹp này.
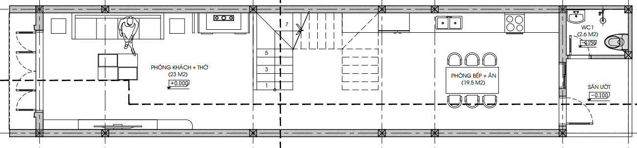
Tầng 1:
- Không gian phòng khách có diện tích 23 m2
- Phòng bếp cùng phòng ăn có diện tích 19.5 m2
- 1 Phòng vệ sinh có diện tích 2.6 m2

Mặt bằng công năng tầng 1
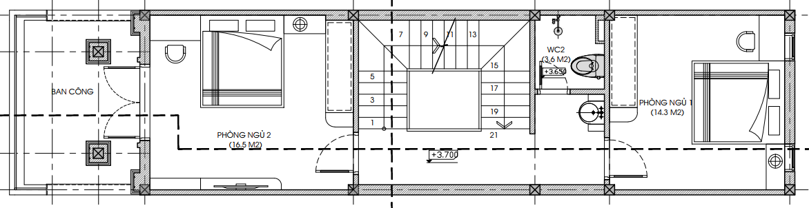
Tầng 2:
- Phòng ngủ 1 có diện tích 14.3 m2
- Phòng ngủ 2 có diện tích 16.5 m2
- 1 Phòng vệ sinh có diện tích 3.6 m2

Mặt bằng công năng tầng 2
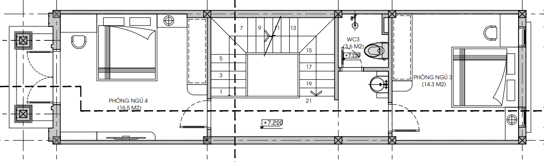
Tầng 3:
- Phòng ngủ 3 có diện tích 14.3 m2
- Phòng ngủ 4 có diện tích 16.5 m2
- Phòng vệ sinh có diện tích 3.6 m2

Mặt bằng công năng tầng 3
Phối cảnh 3D mẫu nhà ống đẹp
Mẫu nhà ống đẹp hiện đai nổi bật giữa khu phố với gam màu trắng tinh khôi kết hợp thước cột vuông vức bề thế hút mắt người nhìn. Mặc dù sở hữu phong cách tân cổ nhưng công trình chỉ sử dụng những thiết kế đặc trưng như thước cột trụ, chân vuông đắp lớn, phào chỉ tinh xảo đẹp mắt… Gam màu trắng làm nổi bật các thiết kế tối giản được sử dụng cho hệ cử, khu vực ban công và sảnh của nhà ống đẹp.

Mẫu nhà ống tân cổ đẹp
Mặt tiền tầng 1 nhấn nhá với đá ốp tường ở khu vực chân thường để làm nổi bật và tạo sự khác biệt cho công tình. Kiến trúc 3 tầng rõ rệt được thiết kế tạo ra hình khối khỏe khoắn, cân xứng theo tỉ lệ vàng trong xây dựng. Mặc dù mặt tiền nhỏ nhưng ngôi nhà trông vẫn rất đồ sộ và khỏe khoắn nhờ sử dụng các thiết kế tân cổ. Không chỉ thế chúng ta dễ dàng cảm nhận sự mềm mại luôn được chú trọng ở đây.

Mẫu nhà ống tân cổ đẹp
Mẫu nhà ống đẹp tân cổ còn hướng tới không gian sinh hoạt lý tưởng trong đó tích hợp khu thư giãn được các thành viên trong gia đình chủ đầu tư yêu thích. Không sử dụng vật liệu gỗ hay gam màu gỗ thay vào đó là vật liệu nhôm Xingfa gam màu đen để phù hợp với kết cấu chung và hệ lan can sắt mỹ thuật và kính cường lực.

Mẫu nhà ống tân cổ đẹp
Điểm nhấn đắt giá của công trình không thể bỏ qua thiết kế mái mang tone màu xám đậm-đen ánh than, tạo sự tương phản mạnh với tường trắng, làm nổi bật hình khối mái và tăng chiều sâu thị giác cho tổng thể công trình, gợi cảm giác vững chãi, cổ điển châu Âu.
Bên cạnh tập trung cho nội thất, ngoại thất các kiến trúc sư không bỏ qua các nguyên tắc quan trọng trong phong thủy mang tới sự dễ chịu và thu hút yếu tố may mắn, tài lộc tới gia đình chủ đầu tư.
Thông tin liên hệ và tư vấn
Công ty cổ phần kiến trúc Osaka là một trong những công ty đi đầu trong lĩnh vực thiết kế và thi công trọn gói công trình nhà dân trên 63 tỉnh thành, uy tín hàng đầu tại Việt Nam, trên 10 năm kinh nghiệm có đội ngũ kiến trúc sư chuyên nghiệp. Chuyên thiết kế nhà đẹp, công trình thi công đảm bảo chất lượng, bàn giao đúng tiến độ. Hãy đến với chúng tôi để sở hữu ngôi nhà đẹp của riêng bạn không chỉ ở mẫu nhà ống tân cổ mà còn ở mọi phong cách.
Để được tư vấn thiết kế nhà đẹp và thi công uy tín, đảm bảo hiện thực hóa đúng bản vẽ và tiến độ, mời Quý khách hàng liên hệ: hotline 0876.11.0000




















Đánh giá
Chưa có đánh giá nào.