MỤC LỤC
Thông tin bổ sung
| Chiều rộng mặt tiền | Mặt tiền 5m-18m |
| Địa điểm | Hà Nam |
| Diện tích | Diện tích 250m2-300m2 |
| Kiểu kiến trúc, phong cách | Kiến trúc hiện đại |
| Loại công trình | Nhà ống |
| Số tầng | 2 Tầng 1 hầm 1 tum |
Mặt bằng công năng mẫu nhà phố 2 tầng 1 hầm 1 tum hiện đại
Sau khi tiến hành khảo sát hiện trường khu đất, lắng nghe và thấu hiểu một cách sâu sắc những mong muốn của gia chủ, chúng tôi đã bố trí các phòng một cách thật hợp lý cho gia chủ.
Công trình thiết kế nhà phố đẹp với :
- Phối cảnh tổng thể công trình có chiều rộng mặt tiền : “ 5 m “ và chiều sâu : “ 18 m”
- Diện tích sử dụng : 283 m2
Sự hoàn mỹ của một công trình, không chỉ nằm ở phần thẩm mỹ ngoại thất mà còn đòi hỏi phải mang lại được sự tiện nghi về công năng sử dụng. Thấu hiểu rõ điều đó, chúng tôi đã nghiên cứu và bố trí mặt bằng công năng một cách hợp lý, phù hợp với nhu cầu sinh hoạt của gia đình. Sau đây, xin mời quý khách cùng tìm hiểu chi tiết công năng sử dụng của mẫu nhà ống đẹp này.
Tầng hầm:
- Phòng ngủ 1 có diện tích 13.26 m2
- Không gian bếp
- 1 phòng vệ sinh

Mặt bằng công năng tầng hầm
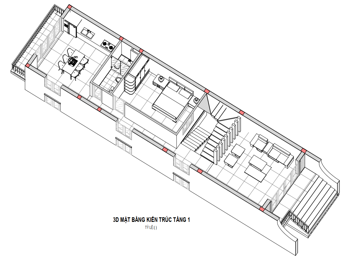
Tầng 1:
- Không gian phòng khách có diện tích 21.22 m2
- Phòng bếp cùng phòng ăn có diện tích 17.13 m2
- Phòng ngủ 2 có diện tích 16.11 m2
- Phòng vệ sinh có diện tích 4.55 m2

Mặt bằng công năng tầng 1
Tầng 2:
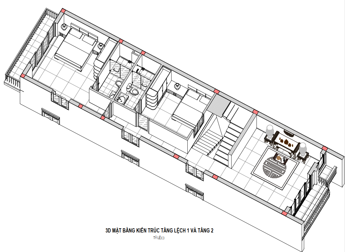
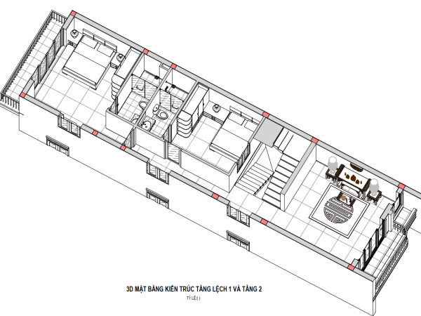
- Phòng ngủ 3 có diện tích 18.29 m2
- Phòng ngủ 4 có diện tích 11.77 m2
- Không gian phòng thờ
- Phòng vệ sinh 1 có diện tích 4.57 m2
- Phòng vệ sinh 2 có diện tích 4.34 m2

Mặt bằng công năng tầng 2
Tầng tum:

Mặt bằng công năng tầng tum
Phối cảnh 3D mẫu nhà phố 2 tầng 1 hầm 1 tum hiện đại
Không gian ngoại thất của mẫu nhà ống đẹp 2 tầng 1 tum hiện đại đẹp của gia đình nhà anh Kiên là một ví dụ điển hình cho xu hướng thiết kế nhà phố sinh thái hiện đại: Tối ưu hóa diện tích, ưu tiên ánh sáng – thông gió tự nhiên, và tạo ra sự kết nối liền mạch giữa con người với thiên nhiên ngay trong lòng đô thị. Sự kết hợp hài hòa giữa các gam màu sắc, cảnh quan sân vườn tươi mát tiểu cảnh cây cối ngập tràn, các nguyên vật liệu cao cấp dễ tìm, gây ấn tượng, rất phù hợp với xu hướng kiến trúc hội nhập ngày nay, thể hiện được sự tinh tế, sắc sảo.

Mặt tiền mẫu nhà ống đẹp với hình khối đơn giản, ấn tượng
Ngôi nhà được thiết kế theo phong cách hiện đại, hình khối gọn gàng với gam màu trắng chủ đạo, tạo cảm giác thanh thoát và sang trọng. Các đường bo mềm mại ở ban công và hệ cửa vòm giúp tổng thể công trình bớt khô cứng, đồng thời tăng tính thẩm mỹ và điểm nhấn kiến trúc cho mặt tiền.

Mặt tiền mẫu nhà ống đẹp với hình khối đơn giản, ấn tượng
Không gian tầng hầm được bố trí khéo léo làm khu để xe, lùi sâu vào trong giúp mặt tiền phía trên luôn thông thoáng. Lối vào hầm kết hợp bậc tam cấp và khoảng sân nhỏ tạo sự chuyển tiếp nhẹ nhàng, thuận tiện cho sinh hoạt hằng ngày mà vẫn đảm bảo tính riêng tư cho không gian ở.

Mặt tiền mẫu nhà ống đẹp với hình khối đơn giản, ấn tượng
Hai tầng nổi được thiết kế mở với hệ cửa kính lớn, giúp tận dụng tối đa ánh sáng tự nhiên và kết nối không gian trong – ngoài. Ban công rộng rãi kết hợp cây xanh mang lại cảm giác gần gũi với thiên nhiên, đồng thời giúp ngôi nhà luôn thông thoáng và mát mẻ.

Mặt tiền mẫu nhà ống đẹp với hình khối đơn giản, ấn tượng
Tầng tum phía trên được xử lý như một không gian đa năng, có thể dùng làm phòng thờ, phòng sinh hoạt chung hoặc sân thư giãn. Mái kính và hệ lam che vừa tạo điểm nhấn hiện đại, vừa giúp lấy sáng hiệu quả, mang đến một tổng thể nhà phố 2 tầng 1 hầm 1 tum hài hòa, tiện nghi và có chiều sâu kiến trúc.
Thông tin liên hệ và tư vấn
Công ty cổ phần kiến trúc Osaka là một trong những công ty đi đầu trong lĩnh vực thiết kế và thi công trọn gói công trình nhà dân trên 63 tỉnh thành, uy tín hàng đầu tại Việt Nam, trên 10 năm kinh nghiệm có đội ngũ kiến trúc sư chuyên nghiệp. Chuyên thiết kế nhà đẹp, công trình thi công đảm bảo chất lượng, bàn giao đúng tiến độ. Hãy đến với chúng tôi để sở hữu ngôi nhà đẹp của riêng bạn không chỉ ở mẫu nhà ống hiện đại mà còn ở mọi phong cách.
Để được tư vấn thiết kế nhà đẹp và thi công uy tín, đảm bảo hiện thực hóa đúng bản vẽ và tiến độ, mời Quý khách hàng liên hệ: hotline 0876.11.0000





























Đánh giá
Chưa có đánh giá nào.