MỤC LỤC
Thông tin bổ sung
| Chiều rộng mặt tiền | Mặt tiền 5m-16m |
| Địa điểm | Hòa Bình |
| Diện tích | Diện tích 100m2-150m2 |
| Kiểu kiến trúc, phong cách | Kiến trúc hiện đại |
| Loại công trình | Nhà ống |
| Số tầng | 1 Tầng 1 lửng |
Mặt bằng công năng mẫu nhà phố 1 tầng 1 lửng hiện đại
Sau khi tiến hành khảo sát hiện trường khu đất, lắng nghe và thấu hiểu một cách sâu sắc những mong muốn của gia chủ, chúng tôi đã bố trí các phòng một cách thật hợp lý cho gia chủ.
Công trình thiết kế nhà phố đẹp với :
- Phối cảnh tổng thể công trình có chiều rộng mặt tiền : “ 4.85 m “ và chiều sâu : “ 16 m”
- Diện tích sử dụng : 136 m2
Thực sự, một ngôi nhà không chỉ nhìn ở vẻ bề ngoài đẹp rồi nói là hoàn hảo được. Muốn hoàn hảo thì ngôi nhà phải được bố trí các phòng chức năng hợp lý để tận dụng tối đa công năng sử dụng. Hiểu được một cách sâu sắc điều đó, chúng tôi đã bố trí các phòng một cách thật hợp lý cho gia nhà. Sau đây chúng tôi xin giới thiệu cho các bạn công năng sử dụng của mẫu nhà ống đẹp này.
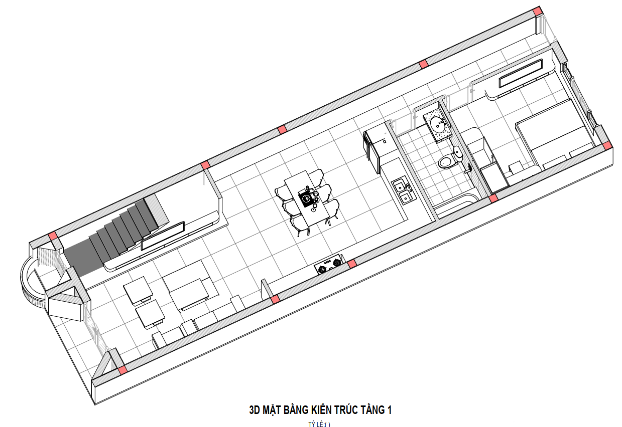
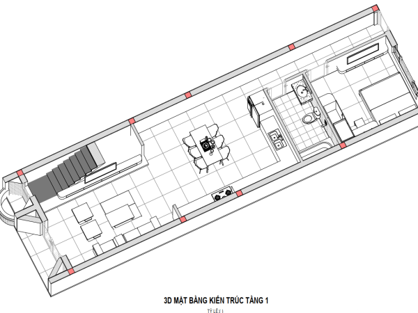
Tầng 1:
- Không gian phòng khách có diện tích 21.05 m2
- Phòng bếp cùng phòng ăn có diện tích 23.13 m2
- Phòng ngủ 1 có diện tích 11.78 m2
- Phòng vệ sinh có diện tích 5.26 m2

Mặt bằng công năng tầng 1
Tầng lửng:
- Không gian phòng thờ
- Phòng ngủ 2 có diện tích 10.15 m2
- Phòng ngủ 3 có diện tích 11.42 m2
- Phòng vệ sinh có diện tích 4.47 m2

Mặt bằng công năng tầng lửng
Phối cảnh 3D mẫu nhà phố 1 tầng 1 lửng hiện đại
Đây là một thiết kế tuyệt vời của xu hướng kiến trúc hiện đại kết hợp với thủ pháp color block (khối màu). Ngôi nhà tập trung vào tính nghệ thuật và cảm xúc. Thiết kế sử dụng ngôn ngữ hình học cơ bản, đặc biệt là sự lặp lại của các đường cong vòm để tạo nên sự mềm mại nhưng vẫn rất gãy gọn, hiện đại.

Mặt tiền mẫu nhà ống đẹp với hình khối đơn giản, ấn tượng
Mẫu nhà 1 tầng 1 lửng gây ấn tượng mạnh với phong cách kiến trúc hiện đại pha nét mềm mại, tinh tế. Mặt tiền sử dụng các khối hình vòm lớn, kết hợp gam màu trắng – cam đất ấm áp, tạo cảm giác vừa sang trọng vừa gần gũi, khác biệt so với những mẫu nhà phố thông thường.

Mặt tiền mẫu nhà ốngđẹp với hình khối đơn giản, ấn tượng
Không gian tầng trệt được thiết kế mở với hệ cửa kính lớn, giúp đón trọn ánh sáng tự nhiên và mở rộng tầm nhìn ra khoảng sân phía trước. Khu vực sân nhỏ được bố trí bàn ghế và mảng xanh, mang lại cảm giác thư giãn, là nơi lý tưởng để uống trà hay tiếp khách trong không gian thoáng đãng.

Mặt tiền mẫu nhà ốngđẹp vớ hình khối đơn giản, ấn tượng
Phần lửng phía trên được xử lý khéo léo với cửa vòm cong mềm mại, vừa tạo điểm nhấn kiến trúc, vừa tăng chiều sâu cho mặt đứng công trình. Thiết kế này giúp tối ưu diện tích sử dụng, phù hợp làm phòng ngủ, phòng làm việc hoặc không gian sinh hoạt riêng tư.

Mặt tiền mẫu nhà ống đẹp với hình khối đơn giản, ấn tượng
Hệ cửa kính lớn với phần vòm bên trên được chia nhỏ bằng các nan sắt dọc màu đen. Chi tiết này vừa mang hơi hướng cổ điển, vừa giúp khung cửa trông mảnh mai và an toàn hơn.
Một mái hiên nhỏ vươn ra ngay trên cửa chính, ốp gỗ mặt dưới. Chi tiết này rất tinh tế: nó phá vỡ sự phẳng lì của mặt tiền, tạo bóng đổ và che chắn mưa nắng cho sảnh đón.
Thông tin liên hệ và tư vấn
Công ty cổ phần kiến trúc Osaka là một trong những công ty đi đầu trong lĩnh vực thiết kế và thi công trọn gói công trình nhà dân trên 63 tỉnh thành, uy tín hàng đầu tại Việt Nam, trên 10 năm kinh nghiệm có đội ngũ kiến trúc sư chuyên nghiệp. Chuyên thiết kế nhà đẹp, công trình thi công đảm bảo chất lượng, bàn giao đúng tiến độ. Hãy đến với chúng tôi để sở hữu ngôi nhà đẹp của riêng bạn không chỉ ở mẫu nhà ống hiện đại mà còn ở mọi phong cách.
Để được tư vấn thiết kế nhà đẹp và thi công uy tín, đảm bảo hiện thực hóa đúng bản vẽ và tiến độ, mời Quý khách hàng liên hệ: hotline 0876.11.0000






















Đánh giá
Chưa có đánh giá nào.