MỤC LỤC
Thông tin bổ sung
| Chiều rộng mặt tiền | Mặt tiền 13m-10m |
| Địa điểm | Quốc oai – Hà Nội |
| Diện tích | Diện tích 250m2-260m2 |
| Kiểu kiến trúc, phong cách | Kiến trúc hiện đại |
| Loại công trình | Biệt thự 2 tầng mái nhật |
| Số tầng | 2 Tầng |
Mặt bằng công năng mẫu nhà biệt thự 2 tầng mái nhật.
Sau khi tiến hành khảo sát hiện trường khu đất, lắng nghe và thấu hiểu một cách sâu sắc những mong muốn của gia chủ, chúng tôi đã bố trí các phòng một cách thật hợp lý cho gia chủ.
Công trình thiết kế mái nhật đẹp với :
-
- phối cảnh tổng thể công trình có chiều rộng mặt tiền : “ 13.03 m “ và chiều sâu : “ 10.03 m”
- diện tích sử dụng : 261 m2
Thực sự, một ngôi nhà không chỉ nhìn ở vẻ bề ngoài đẹp rồi nói là hoàn hảo được. Muốn hoàn hảo thì ngôi nhà phải được bố trí các phòng chức năng hợp lý để tận dụng tối đa công năng sử dụng. Hiểu được một cách sâu sắc điều đó, chúng tôi đã bố trí các phòng một cách thật hợp lý cho gia nhà. Sau đấy chúng tôi xin giới thiệu cho các bạn công năng sử dụng của mẫu nhà biệt thự 2 tầng mái nhật đẹp này.
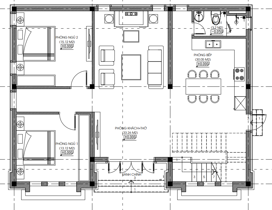
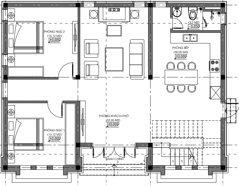
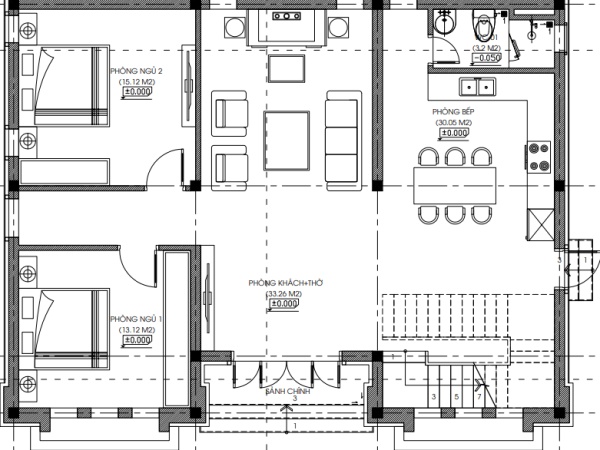
Công năng tầng 1:
-
- Không gian phòng khách thờ có diện tích 33.26 m2
- Phòng bếp cùng phòng ăn có diện tích 30.05 m2
- Phòng ngủ 1 có diện tích 13.12 m2
- Phòng ngủ 2 có diện tích 15.12 m2
- 1 Phòng vệ sinh có diện tích 3.2 m2

Mặt bằng công năng tầng 1 biệt thự 2 tầng mái Nhật
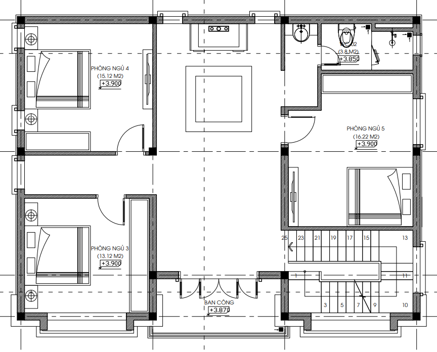
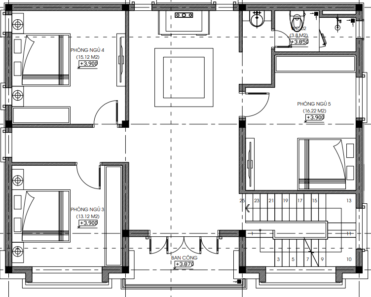
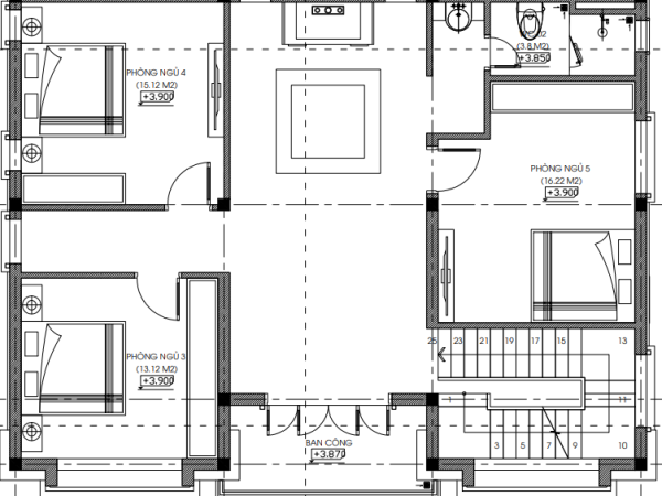
Công năng tầng 2:
-
- Phòng ngủ 3 có diện tích 13.12 m2
- Phòng ngủ 4 có diện tích 15.12 m2
- Phòng ngủ 5 có diện tích 16.22 m2
- Phòng vệ sinh có diện tích 3.8 m2

Mặt bằng công năng tầng 2 biệt thự 2 tầng mái Nhật
Phối cảnh 3D ngoại thất mẫu biệt thự đẹp 2 tầng mái Nhật hiện đại
Biệt thự 2 tầng mái Nhật được kiến trúc sư của Osaka thiết kế với tông màu trắng làm chủ đạo. Tổng thể ngôi nhà toát lên sự sang trọng, bề thế và vô cùng bắt mắt. Công trình được bao quanh hệ thống tường rào vô cùng đẹp mắt với những bức phù điêu xi măng giả đồng và cửa cánh cửa thếp nghệ thuật mang lại sự sang trọng

Phối cảnh 3D ngoại thất mẫu biệt thự đẹp 2 tầng mái Nhật hiện đại
Biệt thự 2 tầng mái Nhật của gia đình anh Tùng với phong cách hiện đại đẹp mắt. Thiết kế đã loại bỏ những chi tiết đắp vẽ cầu kỳ thay vào đó là sự vuông vức, khỏe khoắn của hình khối, các đường nét tinh tế tạo nên một không gian sống hoàn hảo cho gia đình chủ đầu tư.

Phối cảnh 3D mẫu biệt thự đẹp
Ngay sảnh chính bước vào nhà là đôi cột trụ vuông vức, vững chãi. Hệ thống đèn led âm trần chúng tôi bố trí trên mái tầng 2 vừa cung cấp ánh sáng vừa mang lại vẻ đẹp huyền ảo cho ngôi nhà khi về đêm.

Phối cảnh 3D mẫu biệt thự đẹp
Biệt thự 2 tầng mái Nhật với cửa chính sử dụng chất liệu pano gỗ kính, cửa sổ làm từ nhôm kính xingfa cao cấp. Cửa kính có ưu điểm là thu hút ánh sáng tối đa vào không gian nội thất luôn sáng sủa, thoáng đãng giúp gia chủ tiết kiệm điện năng vào ban ngày. Loại cửa này rất dễ vệ sinh, lau chùi giúp ngôi nhà luôn giữ được nét mới mẻ theo thời gian. Đứng bên trong nhà, gia chủ có thể kiểm soát, ngắm nhìn được không gian ngoại thất.

Phối cảnh 3D đẹp nhẹ nhàng tinh tế
Biệt thự 2 tầng mái Nhật nhà anh Thanh sử dụng kế mái Nhật có độ dốc thoải hơn mái Thái. Kiểu mái này đang rất được ưa chuộng tại nước ta trong những năm gần đây vì sự thanh lịch, sang trọng và không bao giờ bị lỗi mốt. Mái Nhật được thi công với hệ khung kèo thép nhẹ và lợp ngói Romantic không nung cao cấp. Ưu điểm là khả năng chống thấm tốt, thoát nước nhanh tránh ứ đọng, thấm dột gây rêu mốc ảnh hưởng đến mỹ quan công trình. Ngoài ra hệ mái này tản nhiệt nhanh và chống nóng tốt giúp cho nhà của gia chủ mát mẻ thích hợp với điều kiện khí hậu của nước ta.

Thông tin liên hệ và tư vấn
Công ty cổ phần kiến trúc Osaka là một trong những công ty đi đầu trong lĩnh vực thiết kế và thi công trọn gói công trình nhà dân trên 63 tỉnh thành, uy tín hàng đầu tại Việt Nam, trên 10 năm kinh nghiệm có đội ngũ kiến trúc sư chuyên nghiệp. Chuyên thiết kế nhà đẹp, công trình thi công đảm bảo chất lượng, bàn giao đúng tiến độ. Hãy đến với chúng tôi để sở hữu ngôi nhà đẹp của riêng bạn không chỉ ở mẫu nhà biệt thự 2 tầng mái nhật hiện đại mà còn ở mọi phong cách.
Để được tư vấn thiết kế nhà đẹp và thi công uy tín, đảm bảo hiện thực hóa đúng bản vẽ và tiến độ, mời Quý khách hàng liên hệ: hotline 0876.11.0000
















Đánh giá
Chưa có đánh giá nào.