MỤC LỤC
Thông tin bổ sung
| Chiều rộng mặt tiền | Mặt tiền 8m-13m |
| Địa điểm | Hưng Yên |
| Diện tích | Diện tích 200m2-250m2 |
| Kiểu kiến trúc, phong cách | Kiến trúc hiện đại |
| Loại công trình | Biệt thự |
| Số tầng | 2 Tầng |
Phối cảnh 3D ngoại thất mẫu nhà biệt thự 2 tầng mái Nhật tân cổ điển.
Có bao giờ bạn rơi vào trạng thái say đắm một sự vật nào đó? Hay có bao giờ có điều gì đó khiến bạn không thể rời mắt ? Với sự phát triển của xã hội, sự tinh tế trong quá trình hội nhập của con người thì đúng có rất nhiều thứ khiến chúng ta phải có những hành động say đắm như vậy, say đắm bởi vẻ đẹp hoàn mĩ. Trong số đó ngày hôm nay chúng tôi giới thiệu đến bạn mẫu thiết kế biệt thự 2 tầng sang trọng của gia đình Anh Phong Hưng Yên để xem rằng kiến trúc xây dựng này có điều gì khiến người nhìn “không thể rời mắt” nhé.

Phối cảnh 3D ngoại thất mẫu biệt thự đẹp
Công trình hiện lên với tổng thể kết hợp từ các khối học khỏe khoắn, tạo nên sự vững chãi và bề thế. Hòa quyện cùng các đường nét cổ điển với mật độ kết hợp vừa phải cùng sự tinh tế các đường nét kiến trúc hiện đại tạo nên một phong cách tân cổ điển nổi bật.

Phối cảnh 3D ngoại thất mẫu biệt thự đẹp
Khoác trên mình là gam màu trắng sứ tinh tế nổi bật, các đường phào, chỉ nhẹ nhàng không quá cầu kì từ các họa tiết trang trí hay đường điêu khắc cùng hệ cửa kính khung nhôm xingfa cao cấp nổi bật giúp ngôi nhà trở nên thông thoáng, không chỉ vậy còn giúp không gian bên trong tận dụng ánh sáng tự nhiên một cách tối ưu nhất.

Phối cảnh 3D ngoại thất mẫu biệt thự đẹp 2 tầng mái Nhật
Toàn bộ mặt sân được lát gạch men màu xám, dường như phần nào đó kích thích cho toàn bộ ngôi nhà được nổi bật hoàn toàn. Theo lối đi vào cửa chỉnh là hệ bậc tam cấp, cùng mặt tiền sảnh cũng được ốp đá granite tinh tế dẫn vào khu vực cửa chính, với phần cửa được sử dụng chất liệu gỗ pano cao cấp, cùng các đường vân kẻ vuông góc trên mặt cửa đan xen là các thước kính tạo khối bắt mắt tạo cho không gian bên trong trở nên thông thoáng.
Đôi cột trụ thiết kế độc đáo, vút ngọn tạo cho người nhìn một sự cuốn hút cùng với phần trụ chắc chắn mang đến sự vững chãi nâng đỡ cả tổng thể ngôi nhà trở nên thanh thoát. Liên kết cùng với phần mái Nhật đặc trưng, nhẹ nhàng theo đúng phong cách văn hóa của người Nhật.

Phối cảnh 3D ngoại thất mẫu biệt thự đẹp 2 tầng mái Nhật
Xung quanh biệt thự 2 tầng mái Nhật của gia đình anh Phong được bố trí hệ thống đèn led ở phần diềm mái ngôi nhà giúp ngôi nhà trở nên đẹp lung linh hơn khi về đêm, ngoài ra còn có những bồn hoa nhỏ để gia chủ trồng hoa làm tăng vẻ đẹp thẩm mỹ cho ngôi nhà. Căn biệt thự ngập tràn sắc hoa, gần gũi thiên nhiên sẽ sinh động, bắt mắt hơn và còn giúp cho gia chủ dễ chịu, thoải mái mỗi khi bước chân về nhà.
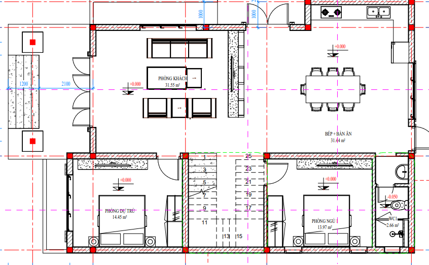
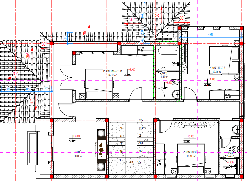
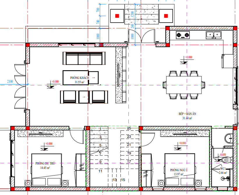
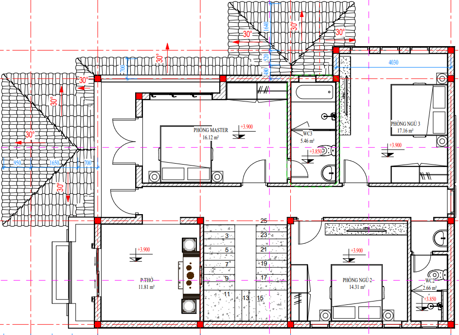
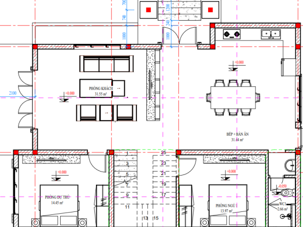
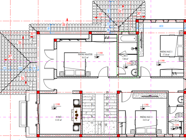
Mặt bằng công năng mẫu biệt thự 2 tầng mái nhật
Sau khi có buổi khảo sát trực tiếp tại khu đất nhà Anh Phong Hưng Yên, được lắng nghe mong muốn và nguyện vọng của gia đình. Osaka đã mang tới mẫu thiết kế thõa mãn được mọi nhu cầu từ gia đình, đáp ứng được sự tiện nghi trong công năng sử dụng, sắp xếp bố cục được khoa học và hợp lí. Mời các bạn cùng chiễm ngưỡng mẫu dưới đây:
- Tầng 1:
- Không gian phòng khách có diện tích là 31.55 m2
- Phòng ngủ 01 có diện tích là 13.97 m2
- Phòng ngủ dự trù có diện tích là 14.45 m2
- Không gian phòng bếp và phòng ăn có diện tích là 31.44 m2
- Wc chung có diện tích là 2.66 m2

- Tầng 2:
- Phòng thờ có diện tích là 11.81 m2
- Phòng ngủ 2 có diện tích là 14.31 m2
- Phòng ngủ 03 có diện tích là 17.16 m2
- Phòng ngủ master có diện tích là 16.12 m2
- Phòng vệ sinh 2 có diện tích 2.66 m2
- Phòng vệ sinh 3 có diện tích 5.46 m2

Thông tin liên hệ và tư vấn
Công ty cổ phần kiến trúc Osaka là một trong những công ty đi đầu trong lĩnh vực thiết kế và thi công trọn gói công trình nhà dân trên 63 tỉnh thành, uy tín hàng đầu tại Việt Nam, trên 10 năm kinh nghiệm có đội ngũ KTS chuyên nghiệp. Chuyên thiết kế nhà đẹp, công trình thi công đảm bảo chất lượng, bàn giao đúng tiến độ. Hãy đến với chúng tôi để sở hữu ngôi nhà đẹp của riêng bạn không chỉ ở mẫu nhà cấp 4 hiện đại mà còn ở mọi phong cách.
Để được tư vấn thiết kế nhà đẹp và thi công uy tín, đảm bảo hiện thực hóa đúng bản vẽ và tiến độ, mời Quý khách hàng liên hệ: hotline 0876.11.0000



















Đánh giá
Chưa có đánh giá nào.