MỤC LỤC
Thông tin bổ sung
| Chiều rộng mặt tiền | Mặt tiền 9m-13m |
| Địa điểm | Hưng Yên |
| Diện tích | Diện tích 200m2-250m2 |
| Kiểu kiến trúc, phong cách | Kiến trúc hiện đại |
| Loại công trình | Biệt thự |
| Số tầng | 2 Tầng |
Phối cảnh 3D ngoại thất mẫu nhà biệt thự 2 tầng mái Thái tân cổ điển.
Có bao giờ bạn rơi vào trạng thái say đắm một sự vật nào đó? Hay có bao giờ có điều gì đó khiến bạn không thể rời mắt ? Với sự phát triển của xã hội, sự tinh tế trong quá trình hội nhập của con người thì đúng có rất nhiều thứ khiến chúng ta phải có những hành động say đắm như vậy, say đắm bởi vẻ đẹp hoàn mĩ. Trong số đó ngày hôm nay chúng tôi giới thiệu đến bạn mẫu thiết kế biệt thự 2 tầng sang trọng của gia đình Cô Sơn tại Bắc Giang để xem rằng kiến trúc xây dựng này có điều gì khiến người nhìn “không thể rời mắt” nhé.

Phối cảnh 3D ngoại thất mẫu biệt thự đẹp
Ngôi nhà mang phong cách tân cổ điển đầy thanh lịch, nổi bật với gam màu trắng tinh khôi bao phủ toàn bộ mặt tiền. Những đường phào chỉ sắc nét chạy dọc theo các khối tường tạo cảm giác công trình có chiều sâu, không bị đơn điệu mà rất sang trọng. Hệ cửa gỗ nâu đỏ đặt ở vị trí trung tâm vừa tạo điểm nhấn nổi bật, vừa đem lại sự ấm áp, quyền quý cho tổng thể kiến trúc.

Phối cảnh 3D ngoại thất mẫu biệt thự đẹp
Mặt tiền được bố trí đối xứng với hệ cột tròn lớn, đỉnh cột đắp họa tiết nhẹ nhàng, đi cùng mái vòm cong mềm mại tạo nên vẻ đẹp vừa bề thế vừa tinh tế. Phía trên là ban công với lan can họa tiết sắt mỹ thuật, góp phần tăng thêm sự mềm mại và tính thẩm mỹ cho căn nhà. Từng chi tiết đều được chăm chút kỹ, thể hiện gu thẩm mỹ và sự chỉn chu của gia chủ.

Phối cảnh 3D ngoại thất mẫu biệt thự đẹp
Xung quanh nhà là hệ cửa kính khung nhôm được bố trí khoa học, giúp tận dụng tối đa ánh sáng tự nhiên, mang lại cảm giác thoáng đãng cho toàn bộ không gian bên trong. Sân vườn xanh mát bao quanh với hàng cây và tiểu cảnh được chăm chút kỹ khiến căn nhà trở thành một không gian sống hài hòa, vừa đẹp vừa gần gũi thiên nhiên. Tổng thể công trình là sự cân bằng giữa sang trọng – tinh tế – tiện nghi.
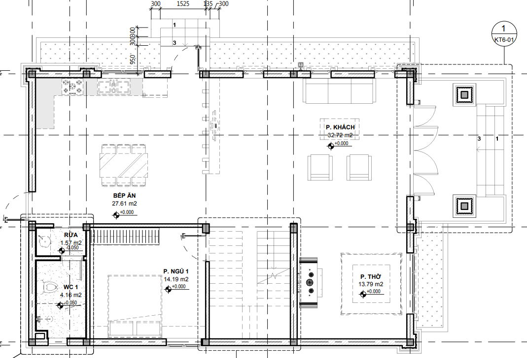
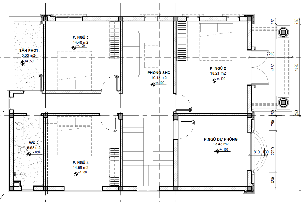
Mặt bằng công năng mẫu biệt thự 2 tầng mái thái
Sau khi có buổi khảo sát trực tiếp tại khu đất nhà Anh Hoan Hưng Yên, được lắng nghe mong muốn và nguyện vọng của gia đình. Osaka đã mang tới mẫu thiết kế thõa mãn được mọi nhu cầu từ gia đình, đáp ứng được sự tiện nghi trong công năng sử dụng, sắp xếp bố cục được khoa học và hợp lí. Mời các bạn cùng chiễm ngưỡng mẫu dưới đây:
Tầng 1:
-
- Không gian phòng khách có diện tích là 32.72 m2
- Phòng ngủ 01 có diện tích là 14.11 m2
- Phòng thờ diện tích là 13.79 m2
- Không gian phòng bếp và phòng ăn có diện tích là 27.61 m2
- Wc chung có diện tích là 4.16 m2
- Khu rửa tay có diện tích 1.57 m2

Tầng 2:
-
- Phòng ngủ 2 có diện tích 18.21 m2
- Phòng ngủ 3 có diện tích 14.46 m2
- Phòng ngủ 4 có diện tích 14.59 m2
- Phòng ngủ dự phòng có diện tích 13.43 m2
- Phòng thờ có diện tích là 12.5 m2
- Phòng SHC có diện tích là 10.13 m2
- Phòng vệ sinh 2 có diện tích 5.58 m2
- Sân phơi có diện tích 5.65 m2

Thông tin liên hệ và tư vấn
Công ty cổ phần kiến trúc Osaka là một trong những công ty đi đầu trong lĩnh vực thiết kế và thi công trọn gói công trình nhà dân trên 63 tỉnh thành, uy tín hàng đầu tại Việt Nam, trên 10 năm kinh nghiệm có đội ngũ KTS chuyên nghiệp. Chuyên thiết kế nhà đẹp, công trình thi công đảm bảo chất lượng, bàn giao đúng tiến độ. Hãy đến với chúng tôi để sở hữu ngôi nhà đẹp của riêng bạn không chỉ ở mẫu nhà cấp 4 hiện đại mà còn ở mọi phong cách.
Để được tư vấn thiết kế nhà đẹp và thi công uy tín, đảm bảo hiện thực hóa đúng bản vẽ và tiến độ, mời Quý khách hàng liên hệ: hotline 0876.11.0000










Đánh giá
Chưa có đánh giá nào.