MỤC LỤC
Thông tin bổ sung
| Chiều rộng mặt tiền | Mặt tiền 5m-20m |
| Địa điểm | Hà Nội |
| Diện tích | Diện tích 350m2-400m2 |
| Kiểu kiến trúc, phong cách | Kiến trúc hiện đại |
| Loại công trình | Nhà ống |
| Số tầng | 4 Tầng 1 tum |
Mặt bằng công năng mẫu nhà phố 4 tầng 1 tum hiện đại
Khi tiếp nhận được thông tin yêu cầu từ chủ đầu tư, OSAKA đã lên kế hoạch để đến khảo sát trực tiếp tại khu vực xây dựng. Nhằm tìm hiểu về địa chất, địa mạo cũng như nắm bắt nhu cầu thực tế, tâm tư nguyện vọng của gia chủ. Từ đó, lên ý tưởng thiết kế mặt bằng công năng đảm bảo về mặt tiện nghi, đáp ứng yêu cầu của chủ nhà cùng bố cục sắp xếp khoa học, hợp lý.
Công trình thiết kế nhà phố đẹp với :
- Phối cảnh tổng thể công trình có chiều rộng mặt tiền : “ 5 m “ và chiều sâu : “ 20 m”
- Diện tích sử dụng : 369 m2
Thực sự, một ngôi nhà không chỉ nhìn ở vẻ bề ngoài đẹp rồi nói là hoàn hảo được. Muốn hoàn hảo thì ngôi nhà phải được bố trí các phòng chức năng hợp lý để tận dụng tối đa công năng sử dụng. Hiểu được một cách sâu sắc điều đó, chúng tôi đã bố trí các phòng một cách thật hợp lý cho gia nhà. Sau đây chúng tôi xin giới thiệu cho các bạn công năng sử dụng của mẫu nhà ống đẹp này.
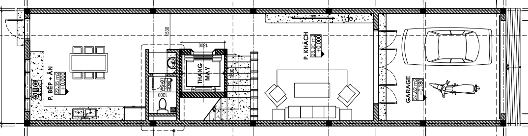
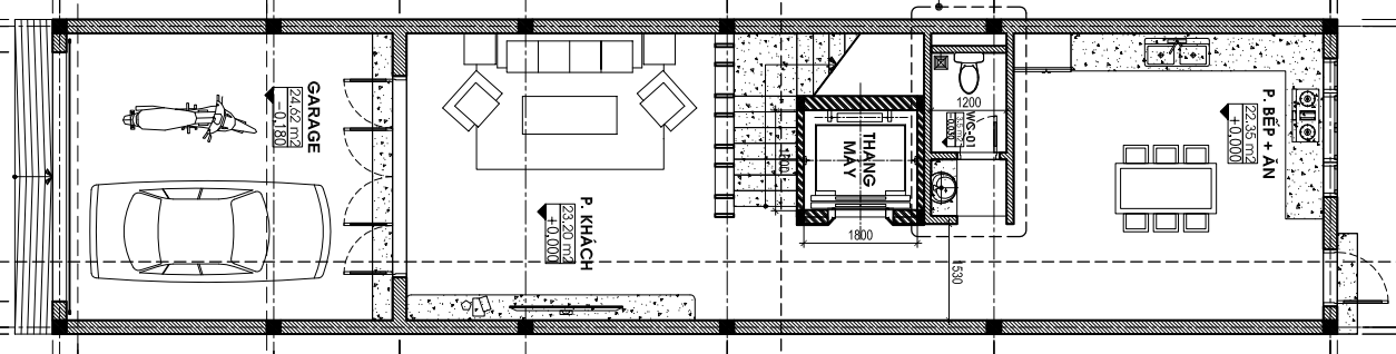
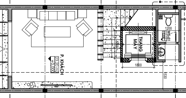
Tầng 1:
- Không gian phòng khách có diện tích 23.2 m2
- Phòng bếp cùng phòng ăn có diện tích 22.35 m2
- Phòng vệ sinh có diện tích 3.5 m2

Mặt bằng công năng tầng 1
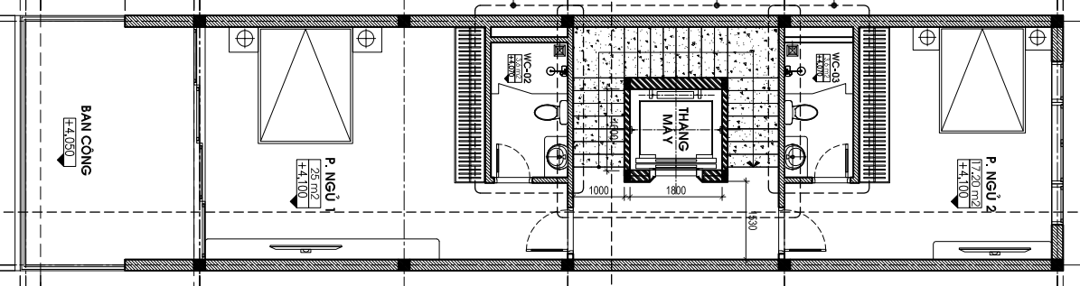
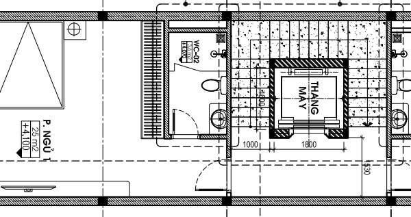
Tầng 2:
- Phòng ngủ 1 có diện tích 25 m2
- Phòng ngủ 2 có diện tích 17.2 m2

Mặt bằng công năng tầng 2
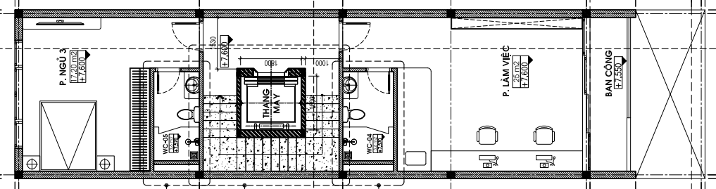
Tầng 3:
- Phòng ngủ 3 có diện tích 17.2 m2
- Phòng làm việc có diện tích 25 m2

Mặt bằng công năng tầng 3
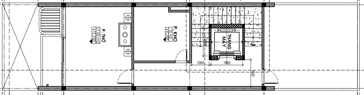
Tầng 4:
- Phòng thờ có diện tích 17.5 m2
- Phòng kho có diện tích 10 m2

Mặt bằng công năng tầng 4
Tầng tum:

Mặt bằng công năng tầng tum
Phối cảnh 3D mẫu nhà phố 4 tầng 1 tum hiện đại
Không gian ngoại thất của mẫu nhà ống đẹp 3 tầng hiện đại đẹp được làm nổi bật nhờ vào lối kiến trúc hiện đại, tinh tế, hình khối khỏe khoắn, sự kết hợp hài hòa giữa các gam màu sắc, cảnh quan sân vườn tươi mát tiểu cảnh cây cối ngập tràn, các nguyên vật liệu cao cấp dễ tìm, gây ấn tượng, rất phù hợp với xu hướng kiến trúc hội nhập ngày nay, thể hiện được sự tinh tế, sắc sảo.

Mặt tiền mẫu nhà ống đẹp với hình khối đơn giản, ấn tượng
Ngôi nhà sử dụng gam màu trắng chủ đạo, kết hợp hài hòa với màu nâu gỗ và xám đậm, tạo cảm giác sang trọng nhưng vẫn ấm áp. Các mảng đặc – rỗng được xử lý khéo léo, giúp ngôi nhà trông thanh thoát, cao ráo và hiện đại. Không gian xanh được bố trí xen kẽ ở ban công và sân thượng, mang lại sự gần gũi với thiên nhiên.
Điểm nhấn là mặt tiền tầng 1 được ốp đá hoa cương cao cấp sang trọng, với tông màu tối thì ngôi nhà luôn sạch sẽ, mới mẻ theo thời gian.

Mặt tiền mẫu nhà ống đẹp với hình khối đơn giản, ấn tượng
Đối với những công trình nhà ống có nhược điểm là mặt tiền không quá rộng. Vì vậy, để đảm bảo các yếu tố như: điều kiện ánh sáng, độ thông thoáng thì ở các tầng đều được bố trí thêm hệ ban công rộng. Hệ ban công vừa đóng vai trò trong việc điều hòa không khí, là nơi gia chủ có thể đón nắng, đón gió tự nhiên vào không gian nội thất. Tại đây kiến trúc sư khéo léo bố trí hệ thống cây xanh, điểm tô vẻ đẹp tươi mới, tràn đầy năng lượng cho ngôi nhà.

Mặt tiền mẫu nhà ống đẹp với hình khối đơn giản, ấn tượng
Hệ lan can ban công làm từ chất liệu kính cường lực cao cấp giúp mẫu nhà ống 4 tầng mái bằng trở nên trẻ trung, năng động và đẹp mắt hơn. Toàn bộ cửa sổ, cửa ra vào ở các tầng cũng được làm bằng chất liệu nhôm kính xingfa cao cấp giúp công trình thêm phần sang trọng. Nhằm cung cấp ánh sáng ngôi nhà khi màn đêm xuống, kiến trúc sư thiết kế hệ đèn trang trí cùng đèn led âm trần với nhiều màu sắc lung linh, ngôi nhà trở nên lộng lẫy hơn bao giờ hết ngay cả khi trời tối.

Mặt tiền mẫu nhà ống đẹp với hình khối đơn giản, ấn tượng
Có thể nói, đây là một mẫu nhà phố được các kiến trúc sư OSAKA thiết kế thông minh, chú trọng vào tiện nghi, thẩm mỹ và sự kết nối giữa con người với thiên nhiên trong môi trường đô thị.
Thông tin liên hệ và tư vấn
Công ty cổ phần kiến trúc Osaka là một trong những công ty đi đầu trong lĩnh vực thiết kế và thi công trọn gói công trình nhà dân trên 63 tỉnh thành, uy tín hàng đầu tại Việt Nam, trên 10 năm kinh nghiệm có đội ngũ kiến trúc sư chuyên nghiệp. Chuyên thiết kế nhà đẹp, công trình thi công đảm bảo chất lượng, bàn giao đúng tiến độ. Hãy đến với chúng tôi để sở hữu ngôi nhà đẹp của riêng bạn không chỉ ở mẫu nhà ống hiện đại mà còn ở mọi phong cách.
Để được tư vấn thiết kế nhà đẹp và thi công uy tín, đảm bảo hiện thực hóa đúng bản vẽ và tiến độ, mời Quý khách hàng liên hệ: hotline 0876.11.0000




















Đánh giá
Chưa có đánh giá nào.