MỤC LỤC
Thông tin bổ sung
| Chiều rộng mặt tiền | Mặt tiền 5m-16m |
| Địa điểm | Hải Phòng |
| Diện tích | Diện tích 200m2-250m2 |
| Kiểu kiến trúc, phong cách | Kiến trúc hiện đại |
| Loại công trình | Nhà ống |
| Số tầng | 2 Tầng 1 tum |
Mặt bằng công năng mẫu nhà phố 2 tầng 1 tum hiện đại
Sau khi tiến hành khảo sát hiện trường khu đất, lắng nghe và thấu hiểu một cách sâu sắc những mong muốn của gia chủ, chúng tôi đã bố trí các phòng một cách thật hợp lý cho gia chủ.
Công trình thiết kế nhà phố đẹp với :
- Phối cảnh tổng thể công trình có chiều rộng mặt tiền : “ 5.5 m “ và chiều sâu : “ 15.9 m”
- Diện tích sử dụng : 211 m2
Sự hoàn mỹ của một công trình, không chỉ nằm ở phần thẩm mỹ ngoại thất mà còn đòi hỏi phải mang lại được sự tiện nghi về công năng sử dụng. Thấu hiểu rõ điều đó, chúng tôi đã nghiên cứu và bố trí mặt bằng công năng một cách hợp lý, phù hợp với nhu cầu sinh hoạt của gia đình. Sau đây, xin mời quý khách cùng tìm hiểu chi tiết công năng sử dụng của mẫu nhà ống đẹp này.
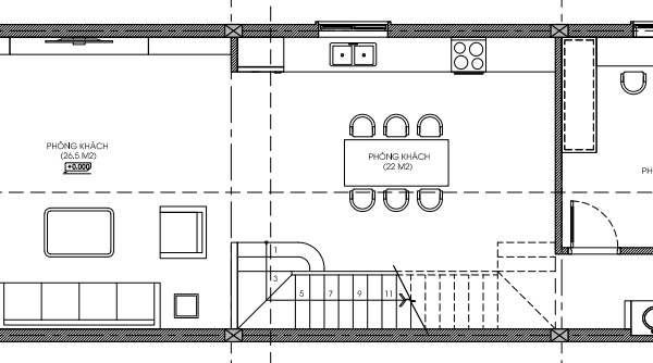
Tầng 1:
- Không gian phòng khách có diện tích 26.5 m2
- Phòng bếp cùng phòng ăn có diện tích 22 m2
- Phòng ngủ 1 có diện tích 13.5 m2
- Phòng vệ sinh có diện tích 2.6 m2

Mặt bằng công năng tầng 1
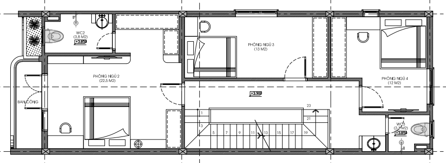
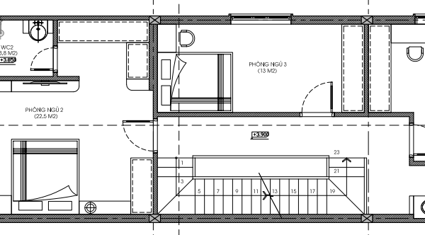
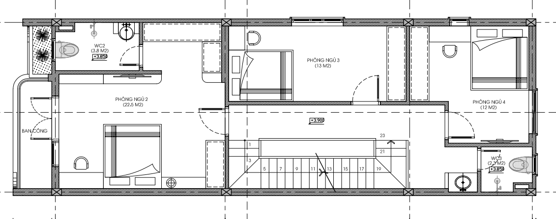
Tầng 2:
- Phòng ngủ master có diện tích 22.5 m2
- Phòng ngủ 3 có diện tích 13 m2
- Phòng ngủ 4 có diện tích 12 m2
- Phòng vệ sinh có diện tích 2.3 m2
Mặt bằng công năng tầng 2
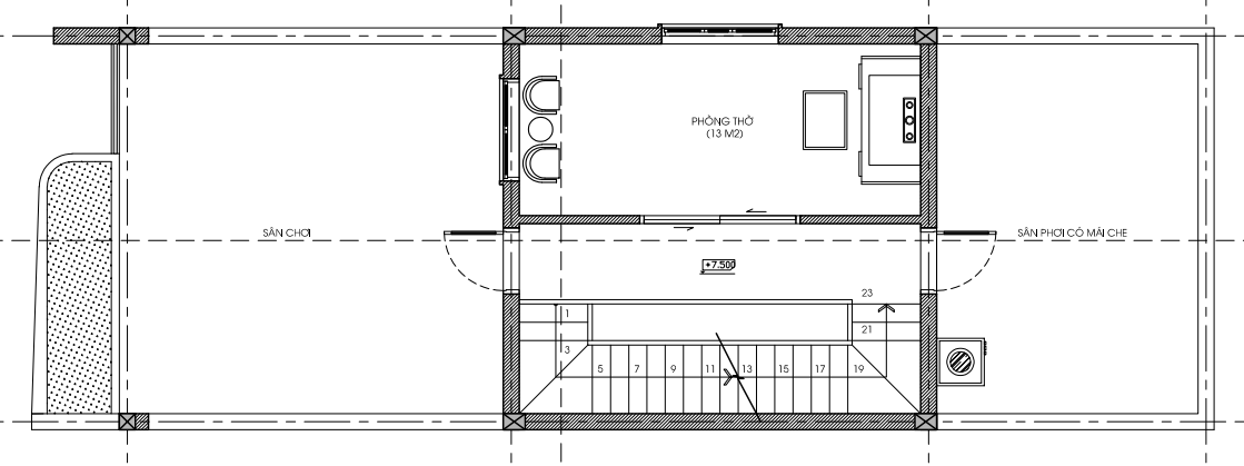
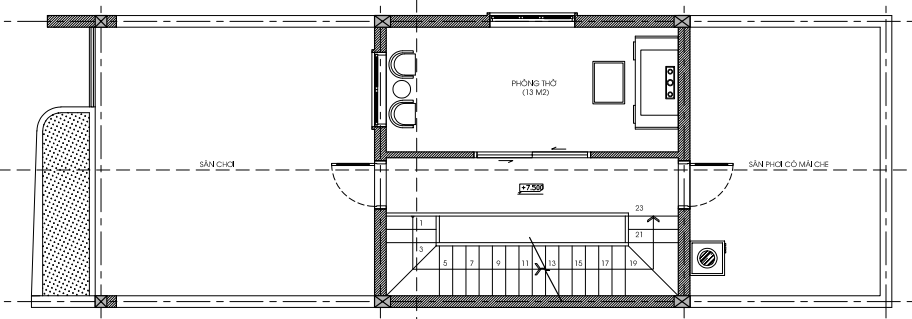
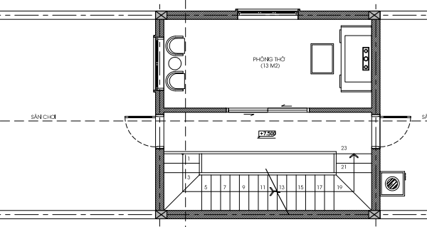
Tầng 3:
- Phòng thờ có diện tích 13 m2

Mặt bằng công năng tầng tum
Phối cảnh 3D mẫu nhà phố 2 tầng 1 tum hiện đại
Không gian ngoại thất của mẫu nhà ống đẹp 2 tầng 1 tum hiện đại đẹp của gia đình nhà anh Nhã là một ví dụ điển hình cho xu hướng thiết kế nhà phố sinh thái hiện đại: Tối ưu hóa diện tích, ưu tiên ánh sáng – thông gió tự nhiên, và tạo ra sự kết nối liền mạch giữa con người với thiên nhiên ngay trong lòng đô thị. Sự kết hợp hài hòa giữa các gam màu sắc, cảnh quan sân vườn tươi mát tiểu cảnh cây cối ngập tràn, các nguyên vật liệu cao cấp dễ tìm, gây ấn tượng, rất phù hợp với xu hướng kiến trúc hội nhập ngày nay, thể hiện được sự tinh tế, sắc sảo.

Mặt tiền mẫu nhà ống đẹp với hình khối đơn giản, ấn tượng
Ngôi nhà sử dụng gam màu trắng chủ đạo, kết hợp hài hòa với màu nâu gỗ và xám đậm, tạo cảm giác sang trọng nhưng vẫn ấm áp. Các mảng đặc – rỗng được xử lý khéo léo, giúp ngôi nhà trông thanh thoát, cao ráo và hiện đại. Không gian xanh được bố trí xen kẽ ở ban công và sân thượng, mang lại sự gần gũi với thiên nhiên.
Công trình mang đậm hơi thở của kiến trúc hiện đại đề cao sự tối giản và công năng. Kiến trúc tổng thể được phát triển dựa trên các khối hộp vuông vức, khỏe khoắn được sắp đặt theo quy luật “giật cấp”, tạo ra chiều sâu thị giác mà còn hình thành một khoảng sân thượng rộng lớn ngay trên hệ mái của tầng trệt.

Mặt tiền mẫu nhà ống đẹp với hình khối đơn giản, ấn tượng
Tầng trệt được thiết kế như một bệ đỡ vững chắc với hệ thống tường rào ốp đá tự nhiên màu xám ghi, tạo cảm giác bề thế và an toàn. Hệ cổng chính kết hợp giữa khung sắt định hình và nan gỗ dọc, vừa đảm bảo tính riêng tư nhưng vẫn duy trì sự thông thoáng.
Hệ thống cửa chính, cửa sổ của ngôi nhà được bố trí rất khoa học, đa phần đều được sử dụng loại kính xingfa với tính cách âm cách nhiệt tốt, mang lại sự lưu thông giữa 2 không gian trong ngoài luôn đảm bảo được sự thoải mái và dễ chịu, thoát mát cho quá trình sinh hoạt và nghỉ ngơi hàng ngày của gia đình chủ đầu tư.

Mặt tiền mẫu nhà ống đẹp với hình khối đơn giản, ấn tượng
Điểm đắt giá nhất của thiết kế là khoảng sân thượng rộng lớn tại tầng 2. Ngoài là nơi dẫn dắt ánh sáng và gió tự nhiên vào bên trong không gian nội thất, còn là nơi diễn ra các hoạt động sinh hoạt chung ngoài trời, tiệc BBQ hoặc thư giãn. Cây xanh được bố trí khéo léo tại các bồn hoa ban công và sân thượng, làm mềm hóa các đường nét kiến trúc khô cứng và cải thiện vi khí hậu cho ngôi nhà. Ngoài ra, các kiến trúc sư OSAKA còn đặc biệt thiết kế cho ngôi nhà hệ mái bằng được tích hợp giếng trời lớn và hệ lam kính, đảm bảo ánh sáng tự nhiên len lỏi vào các không gian lõi của ngôi nhà.
Thông tin liên hệ và tư vấn
Công ty cổ phần kiến trúc Osaka là một trong những công ty đi đầu trong lĩnh vực thiết kế và thi công trọn gói công trình nhà dân trên 63 tỉnh thành, uy tín hàng đầu tại Việt Nam, trên 10 năm kinh nghiệm có đội ngũ kiến trúc sư chuyên nghiệp. Chuyên thiết kế nhà đẹp, công trình thi công đảm bảo chất lượng, bàn giao đúng tiến độ. Hãy đến với chúng tôi để sở hữu ngôi nhà đẹp của riêng bạn không chỉ ở mẫu nhà ống hiện đại mà còn ở mọi phong cách.
Để được tư vấn thiết kế nhà đẹp và thi công uy tín, đảm bảo hiện thực hóa đúng bản vẽ và tiến độ, mời Quý khách hàng liên hệ: hotline 0876.11.0000


















Đánh giá
Chưa có đánh giá nào.