MỤC LỤC
Thông tin bổ sung
| Chiều rộng mặt tiền | Mặt tiền 8m-14m |
| Địa điểm | Hải Dương |
| Diện tích | Diện tích 150m2-200m2 |
| Kiểu kiến trúc, phong cách | Kiến trúc hiện đại |
| Loại công trình | Nhà ống |
| Số tầng | 2 Tầng |
Mặt bằng công năng mẫu nhà phố 2 tầng hiện đại
Sau khi tiến hành khảo sát hiện trường khu đất, lắng nghe và thấu hiểu một cách sâu sắc những mong muốn của gia chủ, chúng tôi đã bố trí các phòng một cách thật hợp lý cho gia chủ.
Công trình thiết kế nhà phố đẹp với :
- Phối cảnh tổng thể công trình có chiều rộng mặt tiền : “ 8 m “ và chiều sâu : “ 14 m”
- Diện tích sử dụng : 224 m2
Nhằm hướng đến sự hoàn mỹ, không chỉ cầu kỳ từ phần ngoại thất mà còn đòi hỏi công năng đáp ứng tiện nghi trong quá trình sử dụng cũng như sắp xếp bố cục sao cho khoa học. Chính vì vậy, sau khi tiếp nhận thông tin của gia chủ, Osaka đã có buổi khảo sát trực tiếp nhằm tìm hiểu về địa chất công trình, cũng như nắm bắt được tâm của gia chủ để lên phương án thiết kế phù hợp.
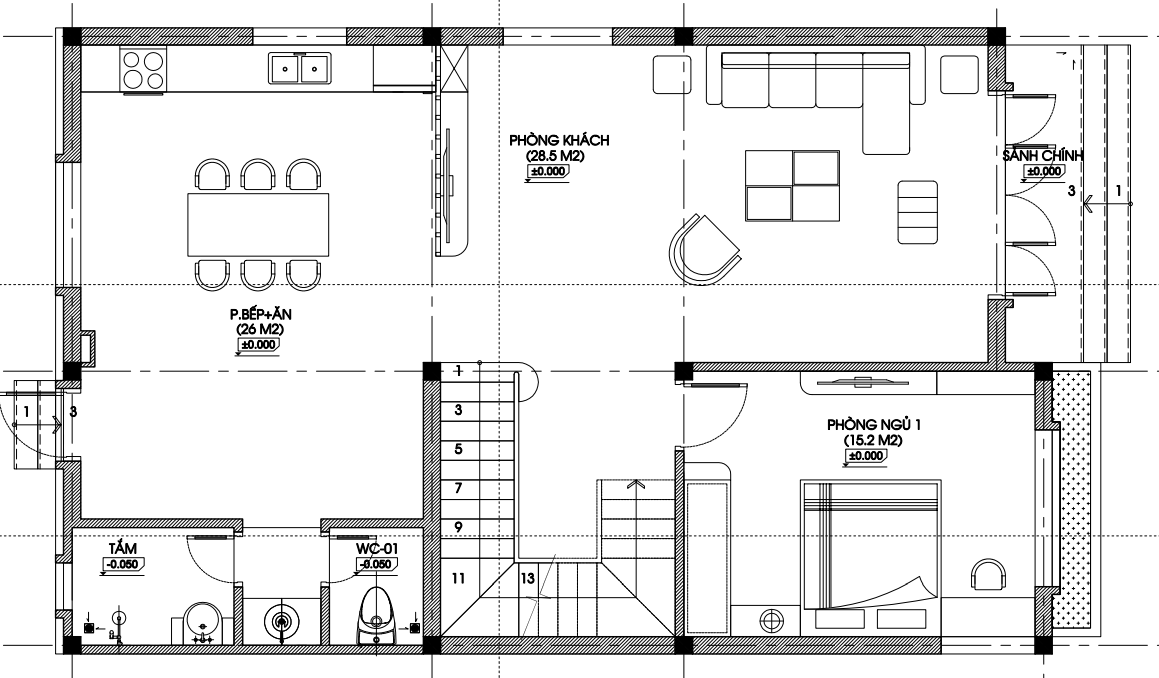
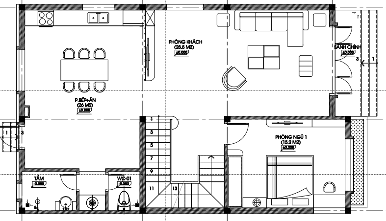
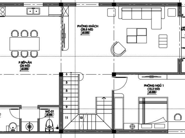
Tầng 1:
- Không gian phòng khách có diện tích 28.5 m2
- Phòng bếp cùng phòng ăn có diện tích 26 m2
- Phòng ngủ 1 có diện tích 15.2 m2
- Không gian phòng vệ sinh và phòng tắm

Mặt bằng công năng tầng 1
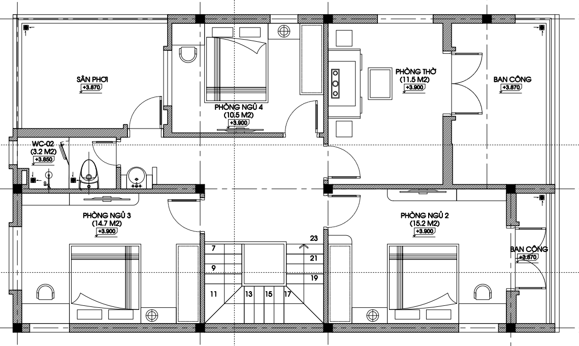
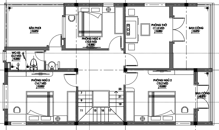
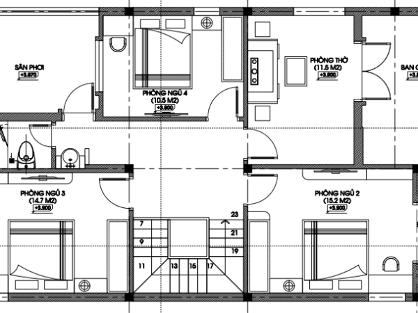
Tầng 2:
- Phòng ngủ 2 có diện tích 15.2 m2
- Phòng ngủ 3 có diện tích 14.7 m2
- Phòng ngủ 4 có diện tích 10.5 m2
- Phòng thờ có diện tích 11.5 m2
- Phòng vệ sinh có diện tích 3.2 m2

Mặt bằng công năng tầng 2
Phối cảnh 3D mẫu nhà phố 2 tầng hiện đại
Ngôi nhà của gia đình anh Tuyền được thiết kế theo phong cách thiên về vẻ đẹp chuẩn mực, cân đối và sang trọng. Tổng thể là một khối hộp vuông vức, vững chãi, thể hiện sự kiên cố và bền vững.

Mặt tiền mẫu nhà ống đẹp với hình khối đơn giản, ấn tượng
Mặt tiền được chia thành hai phần rõ rệt theo phân vị đứng tạo nên sự tương phản thú vị. Sự đối lập giữa màu vàng nâu ấm áp của tầng 2 và màu xám khói, tinh khôi của tầng 1 tạo nên sức hút thị giác mạnh mẽ. Màu đen của khung nhôm cửa sổ, lan can và đóng vai trò là những nét “viền” sắc sảo, giúp định hình rõ ràng các khối kiến trúc trên nền tường trắng.
Hệ cửa chính tầng 1 như một bệ đỡ vững chắc cho toàn bộ công trình. Toàn bộ mặt tiền tầng 1 được ốp đá Marble (cẩm thạch) tone xám vân mây tự nhiên. Việc sử dụng vật liệu đá tại tầng thấp không chỉ tăng tính thẩm mỹ, tạo vẻ sang trọng, bề thế mà còn đảm bảo độ bền, sạch sẽ, chống bám bẩn cho khu vực tiếp cận mặt đường.

Mặt tiền mẫu nhà ống đẹp với hình khối đơn giản, ấn tượng
Đối với những công trình nhà ống có nhược điểm là mặt tiền không quá rộng. Vì vậy, để đảm bảo các yếu tố như: điều kiện ánh sáng, độ thông thoáng thì ở các tầng đều được bố trí thêm hệ ban công rộng. Hệ ban công vừa đóng vai trò trong việc điều hòa không khí, là nơi gia chủ có thể đón nắng, đón gió tự nhiên vào không gian nội thất. Tại đây kiến trúc sư khéo léo bố trí hệ thống cây xanh, điểm tô vẻ đẹp tươi mới, tràn đầy năng lượng cho ngôi nhà

Mặt tiền mẫu nhà ống đẹp với hình khối đơn giản, ấn tượng
Có thể thấy, ngôi nhà của gia đình anh Tuyền mang vẻ đẹp của sự “vững chãi và thanh lịch”. Thiết kế không chạy theo những hình khối cầu kỳ mà tập trung vào tỷ lệ cân đối, vật liệu cao cấp và công năng sử dụng thực tế, phù hợp với nếp sống của một gia đình hiện đại yêu thích sự chỉn chu.
Thông tin liên hệ và tư vấn
Công ty cổ phần kiến trúc Osaka là một trong những công ty đi đầu trong lĩnh vực thiết kế và thi công trọn gói công trình nhà dân trên 63 tỉnh thành, uy tín hàng đầu tại Việt Nam, trên 10 năm kinh nghiệm có đội ngũ kiến trúc sư chuyên nghiệp. Chuyên thiết kế nhà đẹp, công trình thi công đảm bảo chất lượng, bàn giao đúng tiến độ. Hãy đến với chúng tôi để sở hữu ngôi nhà đẹp của riêng bạn không chỉ ở mẫu nhà ống hiện đại mà còn ở mọi phong cách.
Để được tư vấn thiết kế nhà đẹp và thi công uy tín, đảm bảo hiện thực hóa đúng bản vẽ và tiến độ, mời Quý khách hàng liên hệ: hotline 0876.11.0000


















Đánh giá
Chưa có đánh giá nào.