MỤC LỤC
Thông tin bổ sung
| Chiều rộng mặt tiền | Mặt tiền 5m-8m |
| Địa điểm | Hà Nội |
| Diện tích | Diện tích 150m2-180m2 |
| Kiểu kiến trúc, phong cách | Kiến trúc hiện đại |
| Loại công trình | Nhà phố |
| Số tầng | 4 tầng 1 tum |
Mặt bằng công năng mẫu nhà phố 4 tầng 1 tum hiện đại
Sau khi tiến hành khảo sát hiện trường khu đất, lắng nghe và thấu hiểu một cách sâu sắc những mong muốn của gia chủ, chúng tôi đã bố trí các phòng một cách thật hợp lý cho gia chủ.
Công trình thiết kế nhà phố đẹp với:
- Phối cảnh tổng thể công trình có chiều rộng mặt tiền : “ 5 m “ và chiều sâu : “ 8 m”
- Diện tích sử dụng : 180 m2
Thực sự, một ngôi nhà không chỉ nhìn ở vẻ bề ngoài đẹp rồi nói là hoàn hảo được. Muốn hoàn hảo thì ngôi nhà phải được bố trí các phòng chức năng hợp lý để tận dụng tối đa công năng sử dụng. Hiểu được một cách sâu sắc điều đó, chúng tôi đã bố trí các phòng một cách thật hợp lý cho gia nhà. Sau đây chúng tôi xin giới thiệu cho các bạn công năng sử dụng của mẫu nhà ống đẹp này.
Tầng 1:
- Không gian phòng khách có diện tích: 17.5 m2
- Nhà vệ sinh 1 có diện tích 1.5 m2
- Sân để xe có diện tích 12 m2

Mặt bằng công năng tầng 1 nhà phố 4 tầng 1 tum
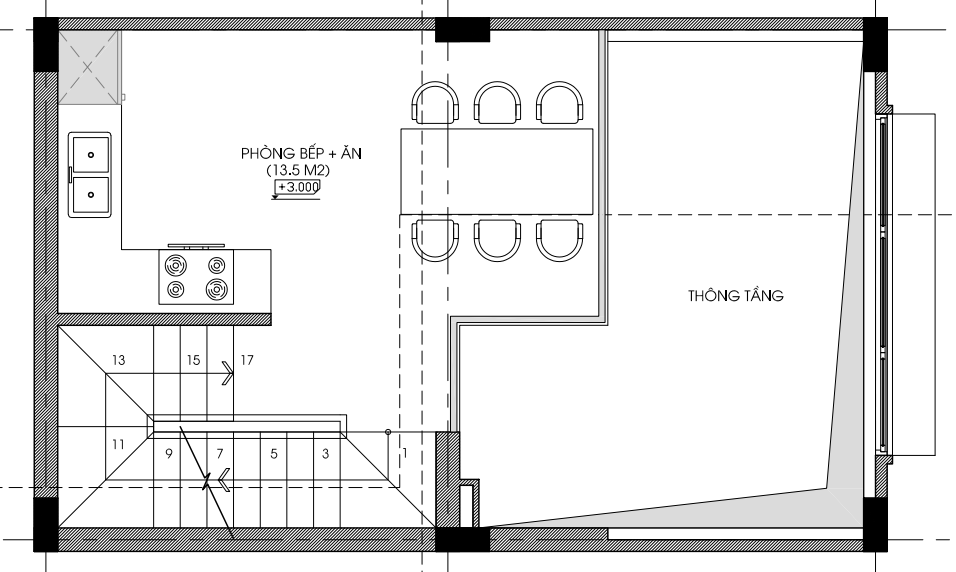
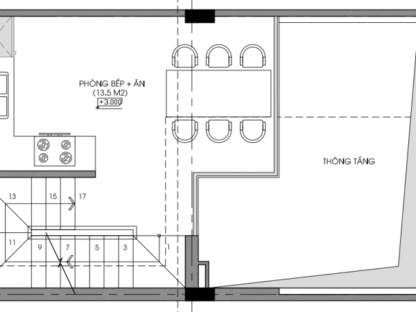
Tầng lửng:
- Phòng bếp+ăn có diện tích 13,5 m2

Mặt bằng công năng tầng lửng nhà phố 4 tầng 1 tum
Tầng 2:
- Phòng ngủ 1 có diện tích 10 m2
- Phòng ngủ 2 có diện tích 12 m2
- Nhà vệ sinh 2 có diện tích 3,6 m2

Mặt bằng công năng tầng 2 nhà phố 3 tầng 1 tum
Tầng 3:
- Phòng ngủ 3 có diện tích 10 m2
- Phòng ngủ 4 có diện tích 12 m2
- Nhà vệ sinh 3 có diện tích 3,6 m2

Mặt bằng công năng tầng 3 nhà phố 4 tầng 1 tum
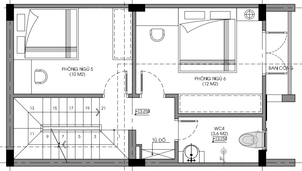
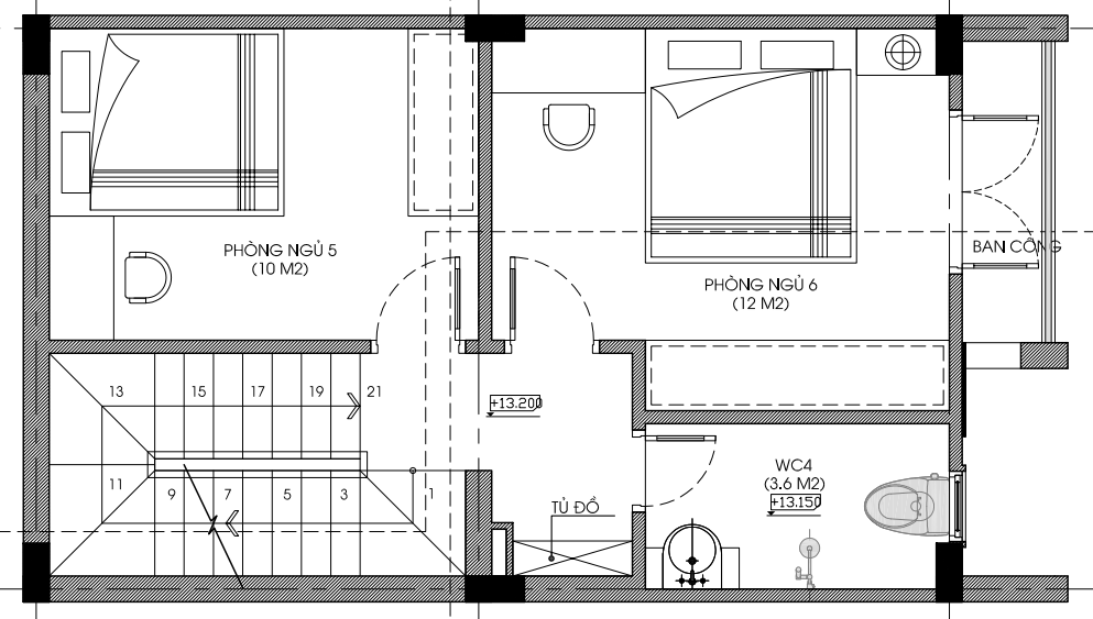
Tầng 4:
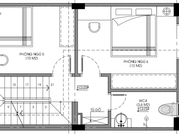
- Phòng ngủ 4 có diện tích 10 m2
- Phòng ngủ 5 có diện tích 12 m2
- Nhà vệ sinh 4 có diện tích 3,6 m2

Mặt bằng công năng tầng 4 nhà phố 4 tầng 1 tum
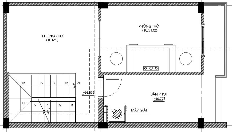
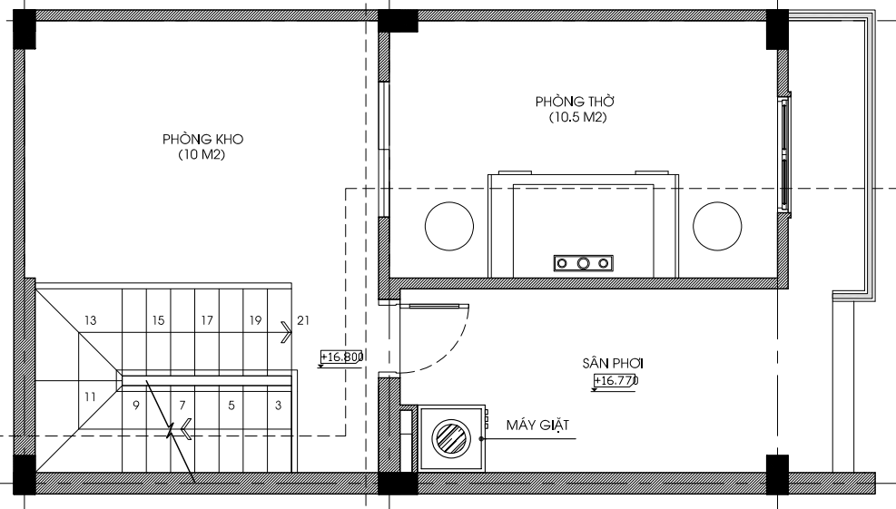
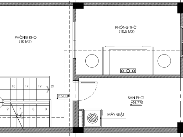
Tầng tum:
- Phòng thờ có diện tích 10,5 m2
- Phòng kho có diện tích 10 m2
- Sân phơi

Mặt bằng công năng tầng tum nhà phố 4 tầng 1 tum
Mặt bằng mái:

Mặt bằng công năng tầng mái nhà phố 4 tầng 1 tum
Phối cảnh 3D mẫu nhà phố 4 tầng 1 tum hiện đại
Mẫu nhà phố đẹp hiện đại được đội ngũ kiến trúc sư thiết kế với phong cách hiện đại, với cái nhìn trẻ trung, năng động. Gây ấn tượng bởi phần ngoại thất tươi sáng khi sử dụng tông trắng làm chủ đạo kết hợp với gạch thẻ inax và đá marble Tây Ban Nha tạo nên một mặt tiền hiện đại, sang trọng, hiệu ứng thẩm mỹ cao. Công trình được tạo hình từ các khối vuông vức, bo góc mềm mại, xếp chồng theo chiều cao, tạo cảm giác vươn lên nhẹ nhàng nhưng vững chắc.

Mặt tiền mẫu nhà ống đẹp với hình khối đơn giản, ấn tượng
Mặt tiền được xử lý khéo léo khi tường được ốp đá xám đậm, tạo điểm nhấn sang trọng và hiện đại, vừa giúp bảo vệ ngôi nhà. Không gian tầng 1 được thiết kế thoáng đạt với hệ cửa cuốn ra vào lớn lấy trọn ánh sáng tự nhiên vào công trình nhà giúp ngôi nhà luôn thoáng đãng, sáng sủa. Nhằm cung cấp ánh sáng ngôi nhà khi màn đêm xuống, kiến trúc sư thiết kế hệ đèn trang trí cùng đèn led âm trần với nhiều màu sắc lung linh, ngôi nhà trở nên lộng lẫy hơn bao giờ hết ngay cả khi trời tối.

Mặt tiền mẫu nhà ống đẹp với hình khối đơn giản, ấn tượng
Các tầng trên được bố trí ban công rộng, kết hợp cây xanh và tiểu cảnh, giúp điều hòa không khí, giảm bức xạ nhiệt và mang lại cảm giác thư thái cho không gian sống. Toàn bộ cửa sổ, cửa ra vào ở các tầng cũng được làm bằng chất liệu nhôm kính xingfa cao cấp giúp công trình thêm phần sang trọng.

Mặt tiền mẫu nhà ống đẹp với hình khối đơn giản, ấn tượng
Tầng tum được thiết kế mở, nổi bật với hệ lam che nắng dạng pergola, tạo không gian sân thượng thoáng đãng và linh hoạt. Đây là khu vực lý tưởng để bố trí cây xanh, khu thư giãn hoặc sinh hoạt ngoài trời. Thiết kế lam vừa giúp che nắng hiệu quả, vừa tạo hiệu ứng ánh sáng – bóng đổ đẹp mắt, làm tăng giá trị thẩm mỹ cho toàn bộ công trình khi nhìn từ xa.
Tổng thể ngôi nhà là sự kết hợp hài hòa giữa kiến trúc hiện đại – công năng hợp lý – không gian xanh, mang đến một không gian sống tiện nghi, thẩm mỹ và giàu trải nghiệm. Thiết kế không phô trương nhưng đủ tinh tế để khẳng định gu thẩm mỹ của gia chủ, đồng thời phù hợp với xu hướng nhà phố đô thị hiện đại ngày nay.
Thông tin liên hệ và tư vấn
Công ty cổ phần kiến trúc Osaka là một trong những công ty đi đầu trong lĩnh vực thiết kế và thi công trọn gói công trình nhà dân trên 63 tỉnh thành, uy tín hàng đầu tại Việt Nam, trên 10 năm kinh nghiệm có đội ngũ kiến trúc sư chuyên nghiệp. Chuyên thiết kế nhà đẹp, công trình thi công đảm bảo chất lượng, bàn giao đúng tiến độ. Hãy đến với chúng tôi để sở hữu ngôi nhà đẹp của riêng bạn không chỉ ở mẫu nhà ống hiện đại mà còn ở mọi phong cách.
Để được tư vấn thiết kế nhà đẹp và thi công uy tín, đảm bảo hiện thực hóa đúng bản vẽ và tiến độ, mời Quý khách hàng liên hệ: hotline 0876.11.0000






















Đánh giá
Chưa có đánh giá nào.