MỤC LỤC
Thông tin bổ sung
| Chiều rộng mặt tiền | Mặt tiền 4,5m-17,5m |
| Địa điểm | Hà Nội |
| Diện tích | Diện tích 350m2-400m2 |
| Kiểu kiến trúc, phong cách | Kiến trúc tân cổ điển |
| Loại công trình | Nhà phố |
| Số tầng | 4.5 tầng |
Phối cảnh 3D ngoại thất mẫu nhà phố
Tọa lạc tại vị trí đắc địa Long Biên-Hà Nội, ngôi biệt thự của gia đình chị Liên được thiết kế theo phong cách tân cổ điển châu Âu, nổi bật với vẻ đẹp sang trọng, bề thế và giàu tính biểu tượng. Công trình có quy mô nhà phố cao tầng, mặt tiền hẹp nhưng được xử lý khéo léo để tạo cảm giác cao ráo, thanh thoát và đẳng cấp. Tổng thể ngôi nhà gây ấn tượng mạnh nhờ sự cân đối hoàn hảo giữa hình khối – chi tiết trang trí – màu sắc – vật liệu.

Phối cảnh 3D mẫu nhà ống tầng tân cổ điển đẹp xuất sắc
Mẫu thiết kế trên được đội ngũ kiến trúc sư thổi hồn với phong cách tân cổ điển độc đáo cùng gam màu trắng ngà chủ đạo. Sự tương phản còn thể hiện ở khu vực tầng 1 phần cổng chính sử dụng họa tiết hoa văn đắp nổi tinh xảo được sơn giả đá trang nhã với gam màu vàng kim-nâu ánh đồng: mang lại cảm giác sang trọng và góp phần tăng cao về mặt thẩm mỹ, cùng theo đó là đảm bảo độ bền cho bề mặt tường.

Phối cảnh 3D mẫu nhà ống tầng tân cổ điển đẹp xuất sắc
Ban công các tầng sử dụng hệ lan can sắt sơn tĩnh điện màu vàng ánh kim mang ý nghĩa phú quý – thịnh vượng – đẳng cấp, giúp công trình trở nên nổi bật và khác biệt so với các nhà phố xung quanh, lại vừa có giá thành rẻ giúp tiết kiệm kinh phí xây dựng. Những thức cột vuông ẩn tường được trang trí vô cùng đẹp mắt với những phào chỉ dọc theo thân càng làm tăng sự bề thế, uy nghi cho công trình căn nhà 4.5 tầng.
Các ô cửa sổ cũng được phào chỉ nhẹ nhàng, tinh tế theo hình vòm mềm mại. Cửa có kích thước lớn được làm bằng chất liệu nhôm kính xingfa giúp tận dụng tối đa ánh sáng chiếu vào trong nhà mang không khí trong lành, thoáng đãng tạo cảm giác rộng rãi đồng thời cũng mở ra nhiều hướng view đẹp mắt ra khung cảnh bên ngoài.

Phối cảnh 3D mẫu nhà ống tầng tân cổ điển đẹp xuất sắc
Điểm nhấn đắt giá của công trình không thể bỏ qua thiết kế mái vòm mang tone màu xám đậm-đen ánh than, tạo sự tương phản mạnh với tường trắng, làm nổi bật hình khối mái và tăng chiều sâu thị giác cho tổng thể công trình, gợi cảm giác vững chãi, cổ điển châu Âu.
Ban công tầng 2 còn được quy hoạch khoảng sân nhỏ làm bàn trà cùng với hệ tiểu cảnh xanh mát được bố trí hợp lý vừa là nơi để gia đình quây quần, sum họp gắn kết tình cảm vừa mang đến không gian sống xanh, tươi mới, xua tan mọi mệt mỏi của ngày dài. Đây quả là mẫu thiết kế tuyệt vời với những ai yêu thích sự yên bình giữa sự tấp nập, bộn bè nơi thành phố.
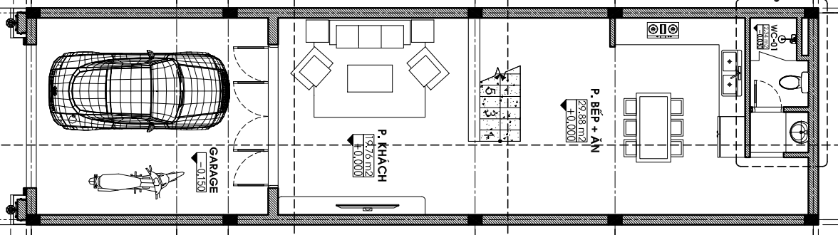
Mặt bằng công năng mẫu nhà phố 3 tầng
Nhằm hướng đến sự hoàn mỹ, không chỉ cầu kỳ từ phần ngoại thất mà còn đòi hỏi công năng đáp ứng tiện nghi trong quá trình sử dụng cũng như sắp xếp bố cục sao cho khoa học. Chính vì vậy, sau khi tiếp nhận thông tin của gia chủ, Osaka đã có buổi khảo sát trực tiếp nhằm tìm hiểu về địa chất công trình, cũng như nắm bắt được tâm của gia chủ để lên phương án thiết kế phù hợp.
Công trình thiết kế nhà phố tân cổ điển đẹp với:
- Phối cảnh tổng thể công trình có chiều rộng mặt tiền : “ 10,5 m “ và chiều sâu : “ 11 m”
- Diện tích sử dụng : 346,5 m2
Chi tiết công năng sử dụng của mẫu nhà phố tân cổ điển:
Tầng 1:
- Không gian phòng khách có diện tích: 19,76 m2
- Không gian phòng bếp kết hợp phòng ăn có dện tích: 29,88 m2
- Nhà vệ sinh 1 có diện tích 2,34 m2

Mặt bằng công năng tầng 1 nhà phố 4.5 tầng
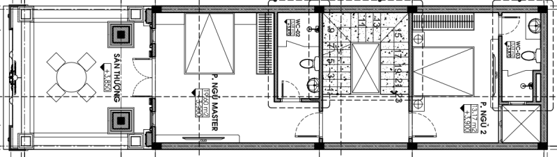
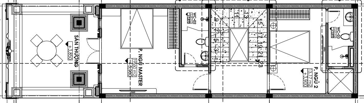
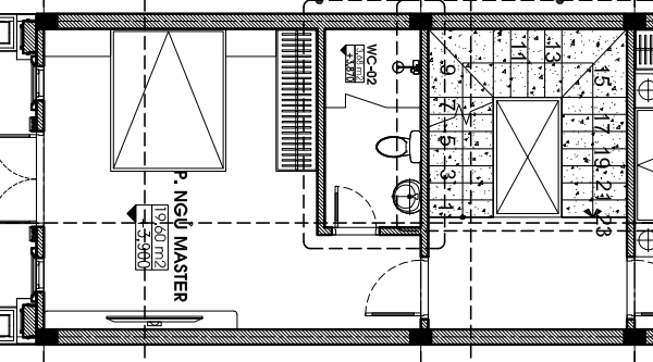
Tầng 2:
- Phòng ngủ master 1 có diện tích 19,6 m2
- Phòng ngủ 2 có diện tích 13,17 m2
- Nhà vệ sinh 2 có diện tích 3,68 m2
- Nhà vệ sinh 3 có diện tích 3,63 m2
- Sân thượng

Mặt bằng công năng tầng 2 nhà phố 4.5 tầng
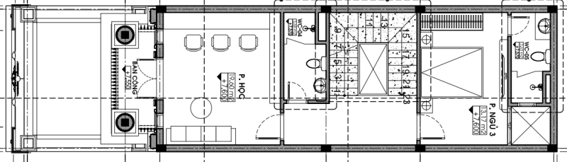
Tầng 3:
- Phòng ngủ 3 có diện tích 13,17 m2
- Phòng học có diện tích 19,6 m2
- Nhà vệ sinh 4 có diện tích 3,68 m2
- Nhà vệ sinh 5 có diện tích 3,63 m2

Mặt bằng công năng tầng 3 nhà phố 4.5 tầng
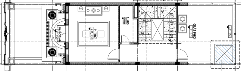
Tầng 4:
- Phòng thờ có diện tích 19,6 m2
- Sân phơi có diện tích 16,8 m2
- Phòng kho có diện tích 3,68 m2

Mặt bằng công năng tầng 4 nhà phố 4.5 tầng
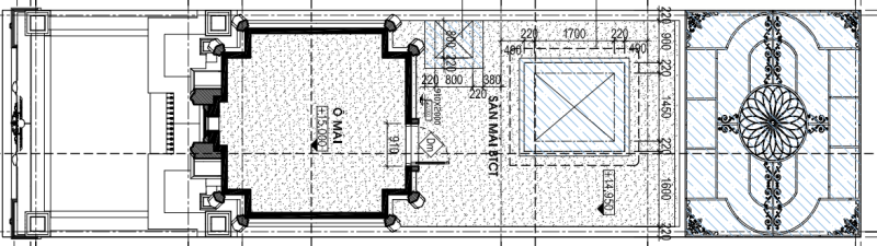
Tầng áp mái:
- Ô mái có diện tích 11 m2

Mặt bằng công năng tầng áp mái nhà phố 4.5 tầng
Thông tin liên hệ và tư vấn
Công ty cổ phần kiến trúc Osaka là một trong những công ty đi đầu trong lĩnh vực thiết kế và thi công trọn gói công trình nhà dân trên 63 tỉnh thành, uy tín hàng đầu tại Việt Nam, trên 10 năm kinh nghiệm có đội ngũ kiến trúc sư chuyên nghiệp. Chuyên thiết kế nhà đẹp, công trình thi công đảm bảo chất lượng, bàn giao đúng tiến độ. Hãy đến với chúng tôi để sở hữu ngôi nhà đẹp của riêng bạn không chỉ ở mẫu nhà ống hiện đại mà còn ở mọi phong cách.
Để được tư vấn thiết kế nhà đẹp và thi công uy tín, đảm bảo hiện thực hóa đúng bản vẽ và tiến độ, mời Quý khách hàng liên hệ: hotline 0876.11.0000




















Đánh giá
Chưa có đánh giá nào.