MỤC LỤC
Thông tin bổ sung
| Chiều rộng mặt tiền | Mặt tiền 5m-20m |
| Địa điểm | Hà Nam |
| Diện tích | Diện tích 150m2-200m2 |
| Kiểu kiến trúc, phong cách | Kiến trúc hiện đại |
| Loại công trình | Nhà ống |
| Số tầng | 2 Tầng |
Mặt bằng công năng mẫu nhà phố 2 tầng hiện đại
Sau khi tiến hành khảo sát hiện trường khu đất, lắng nghe và thấu hiểu một cách sâu sắc những mong muốn của gia chủ, chúng tôi đã bố trí các phòng một cách thật hợp lý cho gia chủ.
Công trình thiết kế nhà phố đẹp với :
- Phối cảnh tổng thể công trình có chiều rộng mặt tiền : “ 5 m “ và chiều sâu : “ 19.49 m”
- Diện tích sử dụng : 173 m2
Thực sự, một ngôi nhà không chỉ nhìn ở vẻ bề ngoài đẹp rồi nói là hoàn hảo được. Muốn hoàn hảo thì ngôi nhà phải được bố trí các phòng chức năng hợp lý để tận dụng tối đa công năng sử dụng. Hiểu được một cách sâu sắc điều đó, chúng tôi đã bố trí các phòng một cách thật hợp lý cho gia nhà. Sau đấy chúng tôi xin giới thiệu cho các bạn công năng sử dụng của mẫu nhà ống đẹp này.
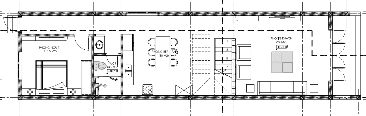
Tầng 1:
- Không gian phòng khách có diện tích 24 m2
- Phòng bếp cùng phòng ăn có diện tích 18 m2
- Phòng ngủ 1 có diện tích 13.5 m2
- Phòng vệ sinh có diện tích 3.2 m2

Mặt bằng công năng tầng 1
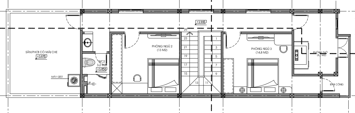
Tầng 2:
- Phòng ngủ 2 có diện tích 13 m2
- Phòng ngủ 3 có diện tích 14.8 m2
- Phòng thờ có diện tích 8.2 m2
- Phòng vệ sinh có diện tích 3.2 m2

Mặt bằng công năng tầng 2
Phối cảnh 3D mẫu nhà phố 2 tầng hiện đại
Mẫu nhà phố đẹp hiện đại được đội ngũ kiến trúc sư thiết kế với phong cách hiện đại, với cái nhìn trẻ trung, năng động. Gây ấn tượng bởi phần ngoại thất tươi sáng khi sử dụng tông xám khói làm điểm nhấn chủ đạo ở mái và hệ lam. Sự kết hợp giữa màu trắng sứ của tường và màu xám tạo nên phong cách Bắc Âu rất rõ nét: Tinh tế, nhẹ nhàng và sang trọng.

Mặt tiền mẫu nhà ống đẹp với hình khối đơn giản, ấn tượng
Mở ra không gian tầng 1 được thiết kế thoáng đạt với hệ cửa ra vào lớn sử dụng chất liệu nhôm kính xingfa lấy trọn ánh sáng tự nhiên vào công trình nhà giúp ngôi nhà luôn thoáng đãng, sáng sủa. Công trình được nâng cao với hệ bậc tam cấp được tính toán kỹ về chiều cao kích thước bậc thu hút tài lộc, may mắn vào nhà cho gia chủ. Điểm nhấn là hệ bậc tam cấp được ốp đá Marble màu xám khói toàn bộ. Việc này không chỉ tạo cảm giác vững chãi cho phần đế công trình mà còn giúp bảo vệ mặt tiền khỏi rêu mốc, bụi bẩn ở khu vực tiếp xúc nhiều với môi trường.

Mặt tiền mẫu nhà ống đẹp với hình khối đơn giản, ấn tượng
Đối với những công trình nhà ống có nhược điểm là mặt tiền không quá rộng. Vì vậy, để đảm bảo các yếu tố như: điều kiện ánh sáng, độ thông thoáng thì ở các tầng đều được bố trí thêm hệ ban công rộng. Hệ ban công vừa đóng vai trò trong việc điều hòa không khí, là nơi gia chủ có thể đón nắng, đón gió tự nhiên vào không gian nội thất. Tại đây kiến trúc sư khéo léo bố trí hệ thống cây xanh, điểm tô vẻ đẹp tươi mới, tràn đầy năng lượng cho ngôi nhà.

Mặt tiền mẫu nhà ống đẹp với hình khối đơn giản, ấn tượng
Điểm đắt giá nhất của mặt tiền này là việc sử dụng hình tượng “ngôi nhà” truyền thống với mái chóp nhọn. Tuy nhiên, kiến trúc sư đã hiện đại hóa nó bằng các đường nét phẳng, gọn gàng, loại bỏ các chi tiết diêm dúa. Đây là xu hướng thiết kế rất được ưa chuộng hiện nay vì nó vừa mang lại cảm giác thân thuộc của một “tổ ấm”, vừa giữ được vẻ thời thượng.
Thông tin liên hệ và tư vấn
Công ty cổ phần kiến trúc Osaka là một trong những công ty đi đầu trong lĩnh vực thiết kế và thi công trọn gói công trình nhà dân trên 63 tỉnh thành, uy tín hàng đầu tại Việt Nam, trên 10 năm kinh nghiệm có đội ngũ kiến trúc sư chuyên nghiệp. Chuyên thiết kế nhà đẹp, công trình thi công đảm bảo chất lượng, bàn giao đúng tiến độ. Hãy đến với chúng tôi để sở hữu ngôi nhà đẹp của riêng bạn không chỉ ở mẫu nhà ống hiện đại mà còn ở mọi phong cách.
Để được tư vấn thiết kế nhà đẹp và thi công uy tín, đảm bảo hiện thực hóa đúng bản vẽ và tiến độ, mời Quý khách hàng liên hệ: hotline 0876.11.0000


















Đánh giá
Chưa có đánh giá nào.