MỤC LỤC
Thông tin bổ sung
| Chiều rộng mặt tiền | Mặt tiền 5m-14m |
| Địa điểm | Phú Thọ |
| Diện tích | Diện tích 150m2-200m2 |
| Kiểu kiến trúc, phong cách | Kiến trúc hiện đại |
| Loại công trình | Nhà ống |
| Số tầng | 3 Tầng 1 tum |
Mặt bằng công năng mẫu nhà phố 3 tầng 1 tum hiện đại
Sau khi tiến hành khảo sát hiện trường khu đất, lắng nghe và thấu hiểu một cách sâu sắc những mong muốn của gia chủ, chúng tôi đã bố trí các phòng một cách thật hợp lý cho gia chủ.
Công trình thiết kế nhà phố đẹp với :
- Phối cảnh tổng thể công trình có chiều rộng mặt tiền : “ 5.5 m “ và chiều sâu : “ 14.31 m”
- Diện tích sử dụng : 285 m2
Thực sự, một ngôi nhà không chỉ nhìn ở vẻ bề ngoài đẹp rồi nói là hoàn hảo được. Muốn hoàn hảo thì ngôi nhà phải được bố trí các phòng chức năng hợp lý để tận dụng tối đa công năng sử dụng. Hiểu được một cách sâu sắc điều đó, chúng tôi đã bố trí các phòng một cách thật hợp lý cho gia nhà. Sau đây chúng tôi xin giới thiệu cho các bạn công năng sử dụng của mẫu nhà ống đẹp này.
Tầng 1:
- Không gian kinh doanh có diện tích 45 m2
- Khu bếp ăn có diện tích 15.2 m2
- 1 phòng vệ sinh

Mặt bằng công năng tầng 1
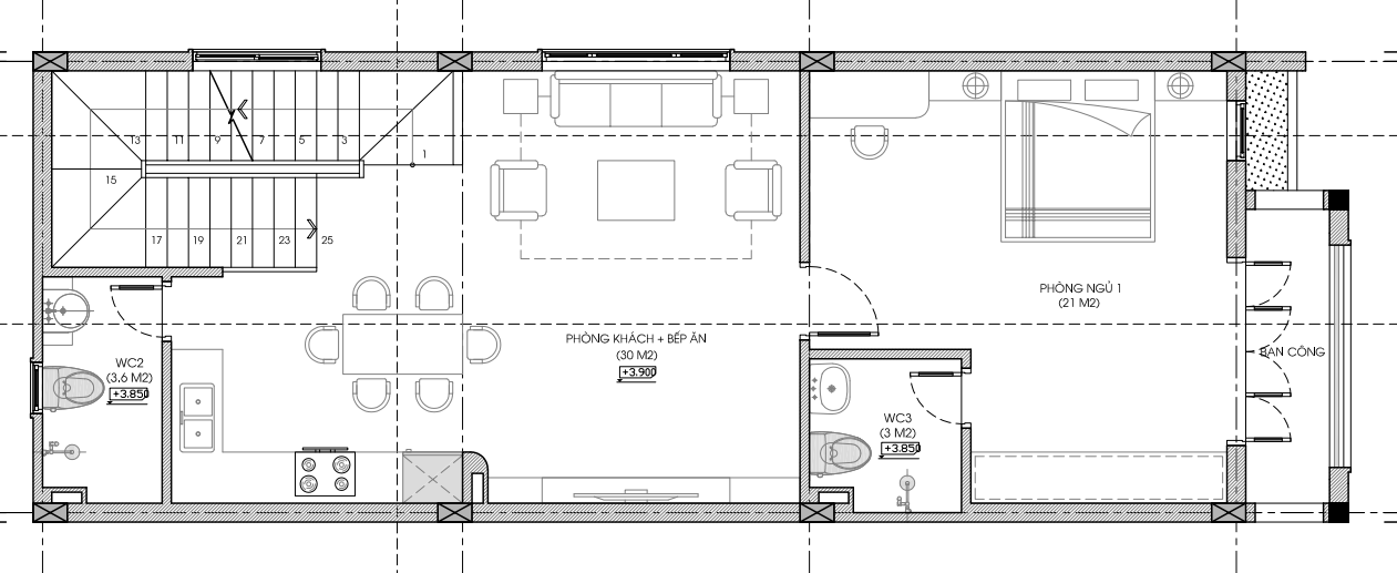
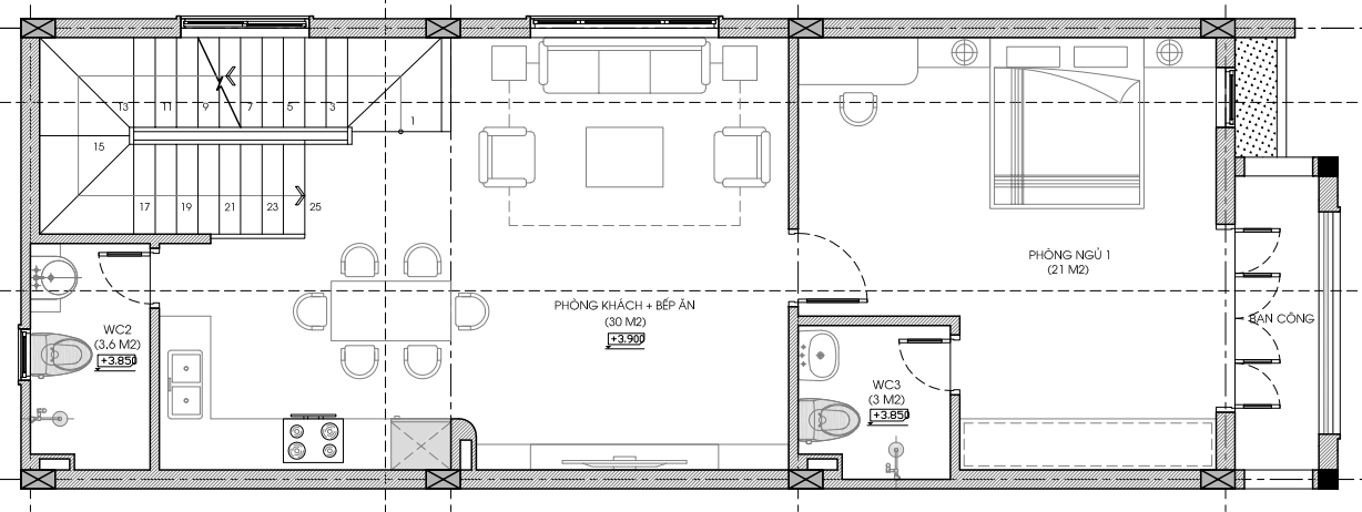
Tầng 2:
- Phòng khách và bếp ăn có diện tích 30 m2
- Phòng ngủ 1 có diện tích 21 m2
- Phòng vệ sinh 2 có diện tích 3.6 m2
- Phòng vệ sinh 3 có diện tích 3 m2

Mặt bằng công năng tầng 2
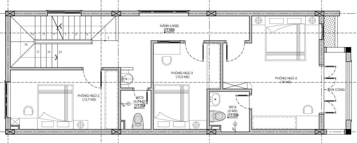
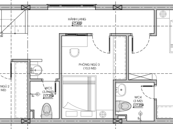
Tầng 3:
- Phòng ngủ 2 có diện tích 12.7 m2
- Phòng ngủ 3 có diện tích 10.5 m2
- Phòng ngủ 4 có diện tích 18 m2
- Phòng vệ sinh 4 có diện tích 3 m2
- Phòng vệ sinh 5 có diện tích 3.5 m2

Mặt bằng công năng tầng 3
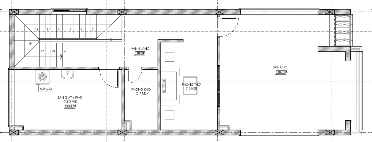
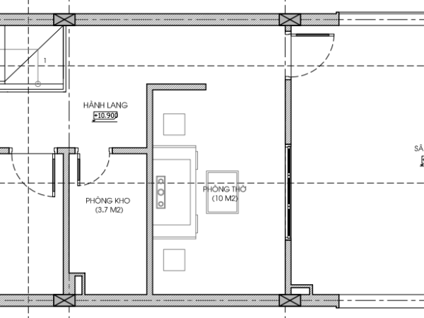
Tầng tum:
- Phòng thờ có diện tích 10 m2
- Phòng kho có diện tích 3.7 m2
- Khu sân phơi và giặt có diện tích 12.5 m2

Mặt bằng công năng tầng tum
Phối cảnh 3D mẫu nhà phố 3 tầng 1 tum hiện đại
Mẫu nhà phố đẹp hiện đại được đội ngũ kiến trúc sư thiết kế với phong cách hiện đại, với cái nhìn trẻ trung, năng động. Gây ấn tượng bởi phần ngoại thất tươi sáng khi sử dụng tông trắng làm chủ đạo phối hợp cùng màu đen của hệ cửa là màu sắc tương phản tạo điểm nhấn cho công trình. Kiến trúc sư tính toán tỉ mỉ về kích thước, phân bổ màu sắc tạo nên nét đẹp tinh tế, nổi bật, vô cùng bắt mắt cho công trình.

Mặt tiền mẫu nhà ống đẹp với hình khối đơn giản, ấn tượng
Mở ra không gian tầng 1 được thiết kế thoáng đạt với hệ cửa cuốn ra vào lớn trọn ánh sáng tự nhiên vào công trình nhà giúp ngôi nhà luôn thoáng đãng, sáng sủa. Điểm nhấn là mặt tiền tầng 1 được ốp đá hoa cương cao cấp xám vây mây sang trọng, với tông màu tối thì ngôi nhà luôn sạch sẽ, mới mẻ theo thời gian.

Mặt tiền mẫu nhà ống đẹp với hình khối đơn giản, ấn tượng
Đối với những công trình nhà ống có nhược điểm là mặt tiền không quá rộng. Vì vậy, để đảm bảo các yếu tố như: điều kiện ánh sáng, độ thông thoáng thì ở các tầng đều được bố trí thêm hệ ban công rộng. Hệ ban công được thiết kế với chất liệu sắt sơn tĩnh điện vừa đóng vai trò trong việc điều hòa không khí, là nơi gia chủ có thể đón nắng, đón gió tự nhiên vào không gian nội thất. Tại đây kiến trúc sư khéo léo bố trí hệ thống cây xanh, điểm tô vẻ đẹp tươi mới, tràn đầy năng lượng cho ngôi nhà.

Mặt tiền mẫu nhà ống đẹp với hình khối đơn giản, ấn tượng
Điểm đắt giá nhất của thiết kế là khoảng sân thượng rộng lớn tại tầng 2. Ngoài là nơi dẫn dắt ánh sáng và gió tự nhiên vào bên trong không gian nội thất, còn là nơi diễn ra các hoạt động sinh hoạt chung ngoài trời, tiệc BBQ hoặc thư giãn.
Cây xanh được bố trí khéo léo tại các bồn hoa ban công và sân thượng, làm mềm hóa các đường nét kiến trúc khô cứng và cải thiện vi khí hậu cho ngôi nhà.
Ngoài ra, các kiến trúc sư OSAKA còn đặc biệt thiết kế cho ngôi nhà hệ mái bằng được tích hợp hệ lam kính, đảm bảo ánh sáng tự nhiên len lỏi vào các không gian lõi của ngôi nhà.
Thông tin liên hệ và tư vấn
Công ty cổ phần kiến trúc Osaka là một trong những công ty đi đầu trong lĩnh vực thiết kế và thi công trọn gói công trình nhà dân trên 63 tỉnh thành, uy tín hàng đầu tại Việt Nam, trên 10 năm kinh nghiệm có đội ngũ kiến trúc sư chuyên nghiệp. Chuyên thiết kế nhà đẹp, công trình thi công đảm bảo chất lượng, bàn giao đúng tiến độ. Hãy đến với chúng tôi để sở hữu ngôi nhà đẹp của riêng bạn không chỉ ở mẫu nhà ống hiện đại mà còn ở mọi phong cách.
Để được tư vấn thiết kế nhà đẹp và thi công uy tín, đảm bảo hiện thực hóa đúng bản vẽ và tiến độ, mời Quý khách hàng liên hệ: hotline 0876.11.0000




















Đánh giá
Chưa có đánh giá nào.