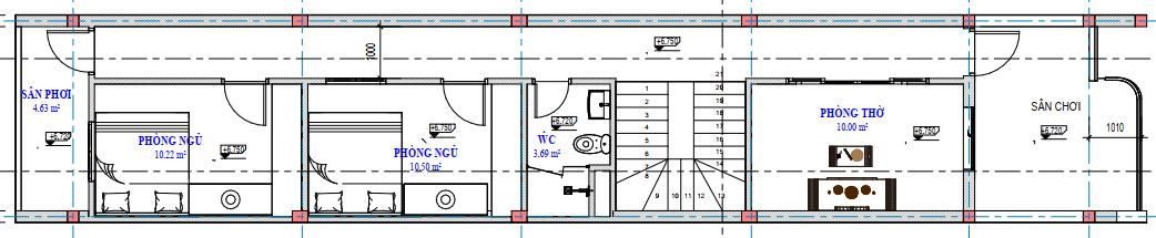
Mẫu nhà phố 3 tầng hiện đại kết hợp kinh doanh tại Ninh Bình | P24152

1,400,000,000 

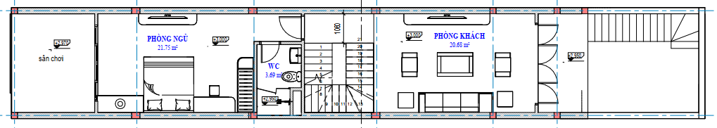
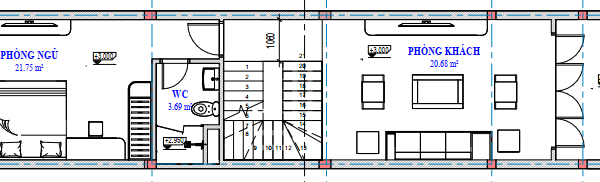
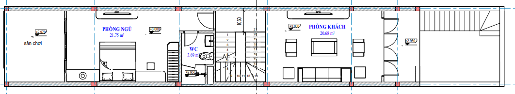
Mẫu nhà phố 3 tầng hiện đại kết hợp kinh doanh tại Ninh Bình | P24152

1,400,000,000 

88Vin - Cổng Game 88Vin, Hệ thống game Quốc Tế 88 & 365

Tặng CODE Gamvip. Hướng dẫn tải Gamvip 88Vin

Game nổ hủ G88 quốc tế G88, 88Vin

Tải game M88 game bài đổi thưởng

1R88.vin Game quốc Tế R88

Nhận CODE W88 Vin, GIFTCODE 1W88

Game V88 Vin, Tải game V88

Nổ hủ G365 WIN, Tải game G365.win

M365 Cổng Game Quốc Tế M365 88VIN

Tải W365 game. Hệ thống game W365.win

R365.win Nổ hủ to R365, Cách tải game 88Vin

Tặng Code choang.vip, Nổ hủ cùngchoang club

Gọi ngay
Nhắn Messenger

Chat Zalo