MỤC LỤC
Thông tin bổ sung
| Chiều rộng mặt tiền | Mặt tiền 7m-17m |
| Địa điểm | Sơn Tây |
| Diện tích | Diện tích 150m2-200m2 |
| Kiểu kiến trúc, phong cách | Kiến trúc hiện đại |
| Loại công trình | Nhà ống |
| Số tầng | 3 Tầng |
Mặt bằng công năng mẫu nhà phố 3 tầng hiện đại
Sau khi tiến hành khảo sát hiện trường khu đất, lắng nghe và thấu hiểu một cách sâu sắc những mong muốn của gia chủ, chúng tôi đã bố trí các phòng một cách thật hợp lý cho gia chủ.
Công trình thiết kế nhà phố đẹp với :
- Phối cảnh tổng thể công trình có chiều rộng mặt tiền : “ 7.05 m” và chiều sâu : “ 17.25 m”
Sự hoàn mỹ của một công trình, không chỉ nằm ở phần thẩm mỹ ngoại thất mà còn đòi hỏi phải mang lại được sự tiện nghi về công năng sử dụng. Thấu hiểu rõ điều đó, chúng tôi đã nghiên cứu và bố trí mặt bằng công năng một cách hợp lý, phù hợp với nhu cầu sinh hoạt của gia đình. Sau đây, xin mời quý khách cùng tìm hiểu chi tiết công năng sử dụng của mẫu nhà ống đẹp này.
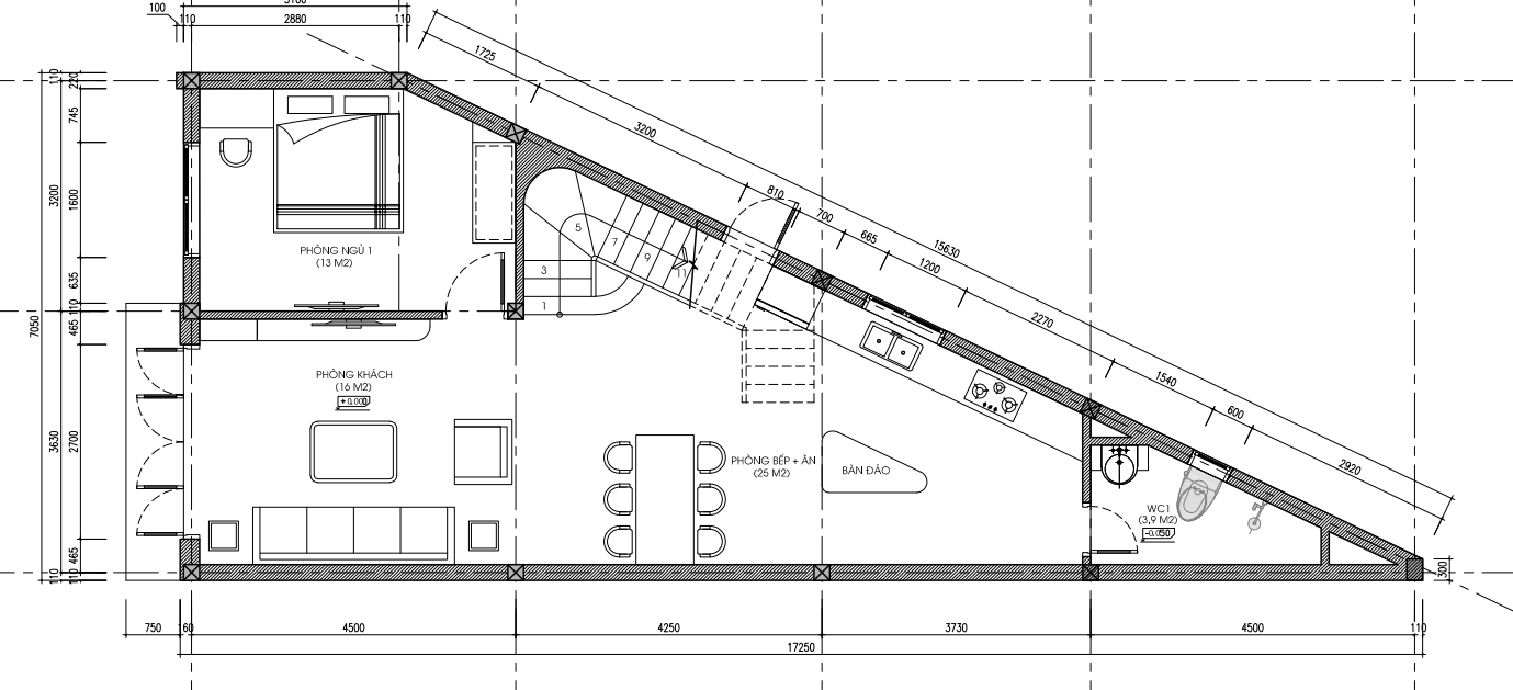
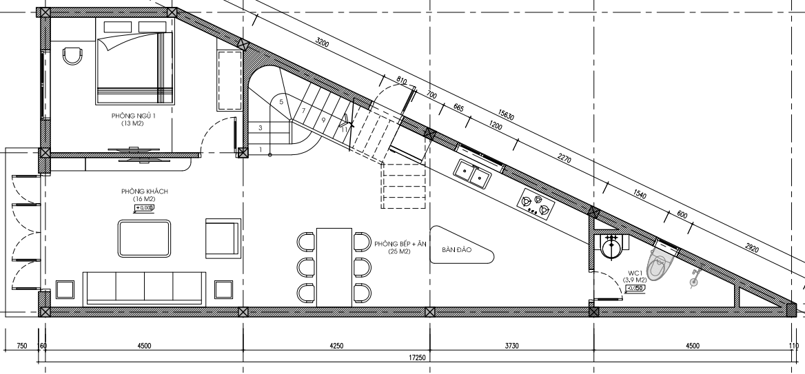
Tầng 1:
- Không gian phòng khách có diện tích 16 m2
- Phòng bếp cùng phòng ăn có diện tích 25 m2
- Phòng ngủ 1 có diện tích 13 m2
- Phòng vệ sinh có diện tích 3.9 m2

Mặt bằng công năng tầng 1
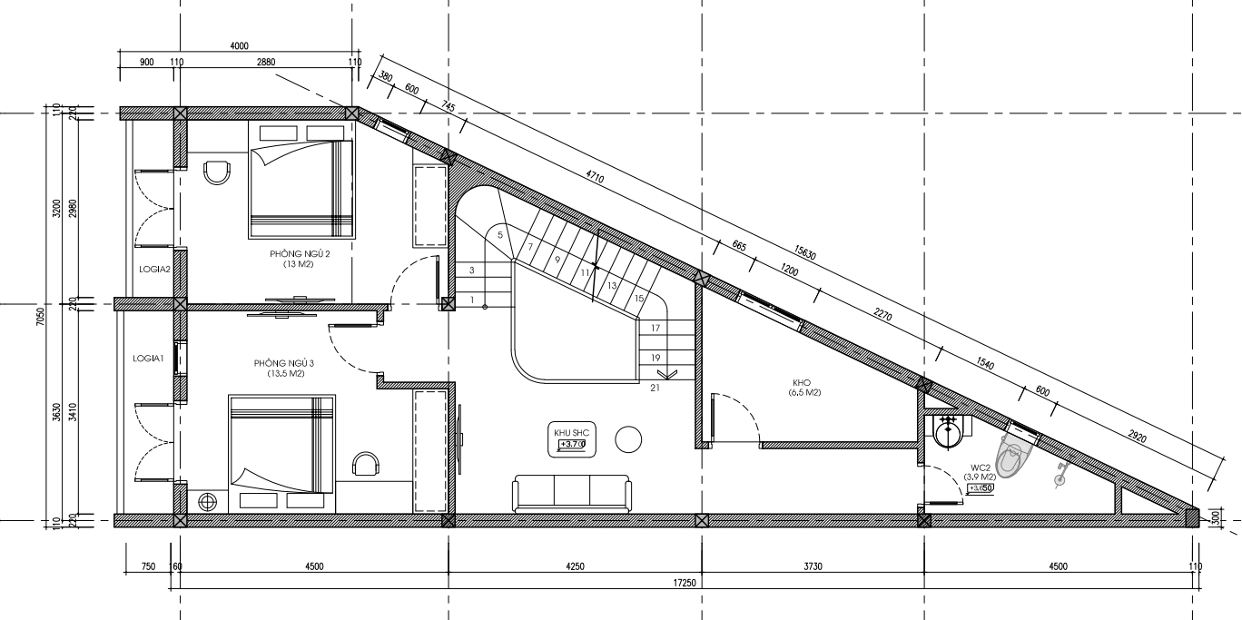
Tầng 2:
- Phòng ngủ 2 có diện tích 13 m2
- Phòng ngủ 3 có diện tích 13.5 m2
- Khu sinh hoạt chung
- Phòng kho có diện tích 6.5 m2
- Phòng vệ sinh có diện tích 3.9 m2

Mặt bằng công năng tầng 2
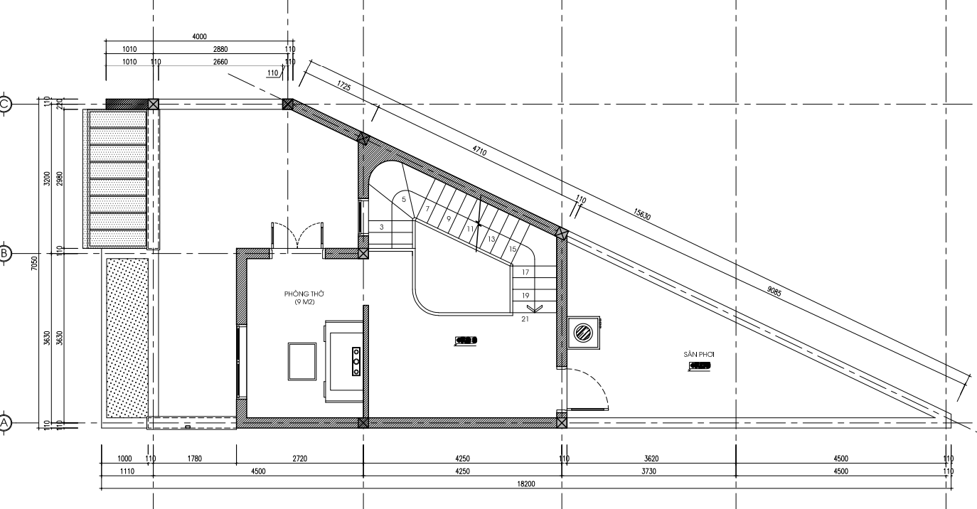
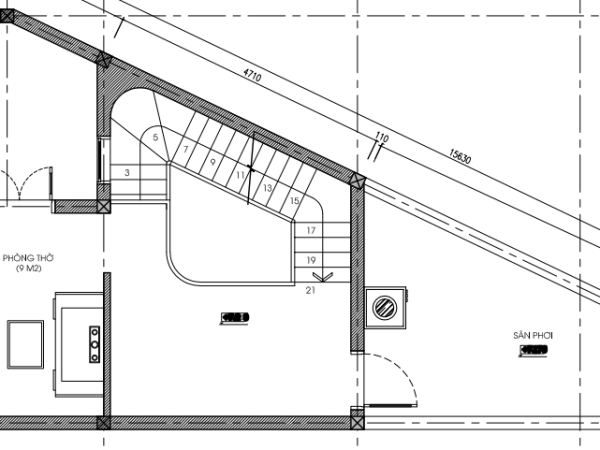
Tầng 3:
- Phòng thờ có diện tích 9 m2

Mặt bằng công năng tầng 3
Phối cảnh 3D mẫu nhà phố 3 tầng hiện đại
Mẫu nhà phố đẹp hiện đại được đội ngũ kiến trúc sư thiết kế với phong cách hiện đại, với cái nhìn trẻ trung, năng động. Gây ấn tượng bởi phần ngoại thất tươi sáng khi sử dụng tông trắng làm chủ đạo phối hợp cùng màu đen của hệ cửa là màu sắc tương phản tạo điểm nhấn cho công trình. Kiến trúc sư tính toán tỉ mỉ về kích thước, phân bổ màu sắc tạo nên nét đẹp tinh tế, nổi bật, vô cùng bắt mắt cho công trình

Mặt tiền mẫu nhà phố đẹp với hình khối đơn giản, ấn tượng
Ngôi nhà phố 3 tầng gây ấn tượng mạnh với dáng nhà được xử lý chéo tinh tế, thu nhỏ dần về phía trên như hình tam giác. Kiến trúc lạ mắt này giúp mặt tiền trở nên hiện đại hơn, đồng thời tạo hiệu ứng thị giác cho công trình thêm cao và thoáng. Toàn bộ mặt tiền sử dụng hệ cửa kính đi kèm khung nhôm đen sắc nét, kết hợp với tone trắng chủ đạo làm nổi bật vẻ sang trọng, sạch sẽ và không kém phần cá tính.

Mặt tiền mẫu nhà phố đẹp với hình khối đơn giản, ấn tượng
Hệ lam thép phía trên ban công đóng vai trò kép vừa là chi tiết trang trí tạo hiệu ứng bóng đổ thú vị xuống mặt tiền, vừa giúp giảm bức xạ nhiệt trực tiếp vào không gian sống.
Kiến trúc sư đã khéo léo bố trí các bồn cây chạy dọc theo ban công và một dải cây xanh đứng ở khe hông nhà. Đây là giải pháp “vi khí hậu”, giúp làm mềm các đường nét bê tông hóa và lọc bụi cho công trình. Khoảng sân rộng phía trước đóng vai trò là không gian sinh hoạt ngoài trời kết nối con người với thiên nhiên.

Mặt tiền mẫu nhà phố đẹp với hình khối đơn giản, ấn tượng
Hệ mái được xử lý kết hợp: Một phần mái bằng làm sân thượng và một phần mái dốc ở khối phía sau để hỗ trợ thoát nước nhanh, phù hợp với khí hậu nhiệt đới. Vị trí bồn nước được đặt gọn gàng ở kỹ thuật phía sau, không làm ảnh hưởng đến thẩm mỹ mặt tiền chính.
Đây là một mẫu thiết kế nhà phố hiện đại, tối ưu hóa không gian sống bằng cách xóa nhòa ranh giới giữa trong và ngoài, phù hợp với lối sống năng động và yêu thích sự thoáng đãng.
Thông tin liên hệ và tư vấn
Công ty cổ phần kiến trúc Osaka là một trong những công ty đi đầu trong lĩnh vực thiết kế và thi công trọn gói công trình nhà dân trên 63 tỉnh thành, uy tín hàng đầu tại Việt Nam, trên 10 năm kinh nghiệm có đội ngũ kiến trúc sư chuyên nghiệp. Chuyên thiết kế nhà đẹp, công trình thi công đảm bảo chất lượng, bàn giao đúng tiến độ. Hãy đến với chúng tôi để sở hữu ngôi nhà đẹp của riêng bạn không chỉ ở mẫu nhà ống hiện đại mà còn ở mọi phong cách.
Để được tư vấn thiết kế nhà đẹp và thi công uy tín, đảm bảo hiện thực hóa đúng bản vẽ và tiến độ, mời Quý khách hàng liên hệ: hotline 0876.11.0000


















Đánh giá
Chưa có đánh giá nào.