MỤC LỤC
Thông tin bổ sung
| Chiều rộng mặt tiền | Mặt tiền 7m-15m |
| Địa điểm | Ninh Bình |
| Diện tích | Diện tích 200m2-250m2 |
| Kiểu kiến trúc, phong cách | Kiến trúc hiện đại |
| Loại công trình | nhà cấp 4 |
| Số tầng | 1 Tầng |
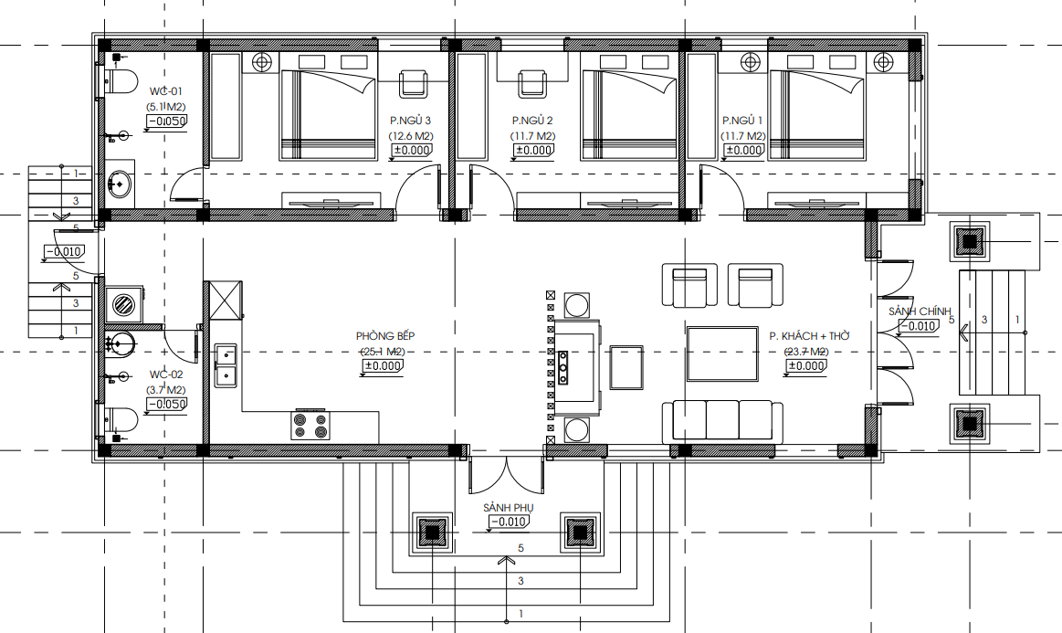
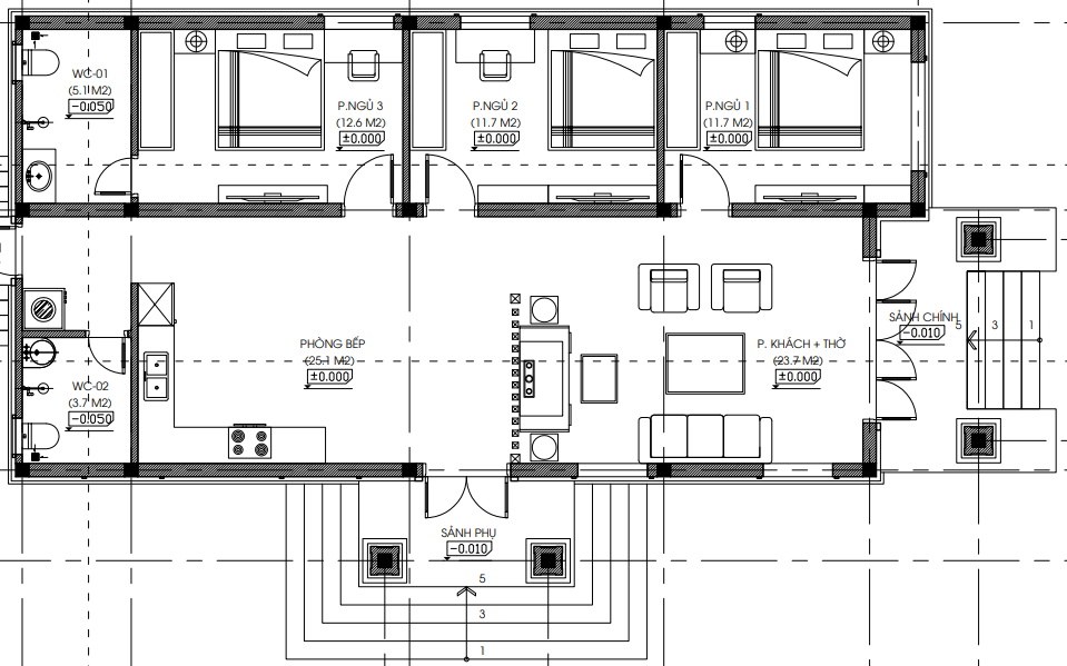
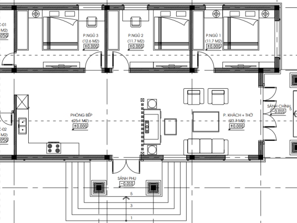
MẶT BẰNG CÔNG NĂNG MẪU NHÀ CẤP 4 MÁI NHẬT
Sau khi tiến hành khảo sát hiện trường khu đất, lắng nghe và thấu hiểu một cách sâu sắc những mong muốn của gia chủ, chúng tôi đã bố trí các phòng một cách thật hợp lý cho gia chủ.
Công trình thiết kế mái nhật đẹp với :
+ phối cảnh tổng thể công trình có chiều rộng mặt tiền : “ 7.4 m “ và chiều sâu : “ 15 m”
+ diện tích sử dụng : 111 m2
Thực sự, một ngôi nhà không chỉ nhìn ở vẻ bề ngoài đẹp rồi nói là hoàn hảo được. Muốn hoàn hảo thì ngôi nhà phải được bố trí các phòng chức năng hợp lý để tận dụng tối đa công năng sử dụng. Hiểu được một cách sâu sắc điều đó, chúng tôi đã bố trí các phòng một cách thật hợp lý cho gia nhà. Sau đấy chúng tôi xin giới thiệu cho các bạn công năng sử dụng của mẫu nhà cấp 4 mái nhật đẹp này.
+ Không gian phòng khách thờ có diện tích 23.7 m2
+ Phòng bếp cùng phòng ăn có diện tích 25.1 m2
+ Phòng ngủ 1 có diện tích 11.7 m2
+ Phòng ngủ 2 có diện tích 11.7 m2
+ Phòng ngủ 3 có diện tích 12.6 m2
+ Phòng vệ sinh 1 có diện tích 5.1 m2
+ Phòng vệ sinh 2 có diện tích 3.7 m2

Phối cảnh 3D ngoại thất mẫu nhà cấp 4 đẹp mái Nhật hiện đại tại Ninh Bình
Tổng thể ngôi nhà được kiến trúc sư tạo tác mang phong cách hiện đại, các đường nét kiến trúc phóng khoáng đem đến làn gió vô cùng tươi trẻ và năng động

Phối cảnh 3D đẹp nhẹ nhàng tinh tế
Tổng thể nổi bật mang tới cái nhìn năng động:
+ Hiện lên với gam màu trắng,nâu đất, xám đậm chủ đạo giúp ngôi nhà trở nên ấn tượng với cái nhìn trang nhã và sang trọng.
+ Không quá cầu kỳ ở những nét tạo nhưng vẫn thể hiện được cái rất riêng mà không bị trùng lặp: bề mặt tường được nhấn nhá bằng những đường kẻ chỉ thanh mảnh thu hút.
+ Cũng không quên vận dụng những chi tiết phối trí tạo màu sắc tươi mới, trẻ trung, năng động cho ngôi nhà bằng những bồn cây cảnh phía trước mặt tiền.
+ Đồng thời, đem đến cái nhìn khỏe khoắn, vững chãi từ những thước cột trụ vuông vức nâng đỡ tổng thể phần hiên mái một cách nhẹ nhàng, ăn nhập với tổng thể hình khối một cách đăng đối.

Phối cảnh 3D đẹp nhẹ nhàng tinh tế
Đem đến những công năng tiện nghi từ phối cảnh ngoại thất.
+ Tiện nghi trong việc đi lại công trình được kiến trúc sư thiết kế với hệ bậc thềm cao ráo, các bậc đều được ốp lát tinh xảo đồng thời giúp ngôi nhà trở nên bề thế hơn. Không những cửa ra, vào bên trong còn được bố trí với 2 lối đi chính – phụ giúp việc giao thông không quá bị thụ thuộc ở một vị trí mặt tiền, các thành viên có thể dễ dàng đi lại thuận lợi.
+ Hiên nhà còn được bố trí một sảnh cafe rộng rãi, tại đây các thành viên có thể thư giãn cùng không gian quang cảnh xung quanh, loại bỏ những áp lực bên ngoài. Hơn thế, có thể đón tiếp bạn bè tại đây ngôi nhâm nhi một vài tách trà với những câu chuyện đời thường.

Phối cảnh 3D đẹp nhẹ nhàng tinh tế
Thông tin liên hệ và tư vấn
Công ty cổ phần kiến trúc Osaka là một trong những công ty đi đầu trong lĩnh vực thiết kế và thi công trọn gói công trình nhà dân trên 63 tỉnh thành, uy tín hàng đầu tại Việt Nam, trên 10 năm kinh nghiệm có đội ngũ kiến trúc sư chuyên nghiệp. Chuyên thiết kế nhà đẹp, công trình thi công đảm bảo chất lượng, bàn giao đúng tiến độ. Hãy đến với chúng tôi để sở hữu ngôi nhà đẹp của riêng bạn không chỉ ở mẫu nhà cấp 4 hiện đại mà còn ở mọi phong cách.
Để được tư vấn thiết kế nhà đẹp và thi công uy tín, đảm bảo hiện thực hóa đúng bản vẽ và tiến độ, mời Quý khách hàng liên hệ: hotline 0876.11.0000












Đánh giá
Chưa có đánh giá nào.