Thông tin bổ sung
| Chiều rộng mặt tiền | Mặt tiền 8m – 18m |
| Địa điểm | Hưng Yên |
| Diện tích | Diện tích 100m2-150m2 |
| Kiểu kiến trúc, phong cách | Kiến trúc tân cổ điển |
| Loại công trình | nhà cấp 4 |
| Số tầng | 1 Tầng |
Phối cảnh 3D mẫu nhà cấp 4 mái nhật mang phong cách tân cổ điển
Với tổng diện tích hơn 125m2 công trình được kiến trúc sư Osaka thiết kế theo phong cách tân cổ điển song có phần đơn giản, hiện đại hơn. Toàn bộ công trình được lựa chọn gam màu trắng tinh khôi làm chủ đạo. Với gam màu quen thuộc nhưng không bao giờ lỗi mốt này khiến cho công trình trở lên thanh lịch, trang nhã thể hiện được cá tính của gia chủ. Bên cạnh đó được nhấn thêm gam màu nâu từ hệ của gỗ và xanh than từ mái Nhật, cùng với màu vật liệu đá ốp khiến ngôi nhà trở nên độc đáo và ấn tượng hơn.

Mặt tiền mẫu nhà vườn cấp 4 mái Nhật mang phong cách Tân Cổ Điển
Đối với những mẫu nhà vườn cấp 4 Mái Nhật thì phần móng cao đã quá quen thuộc. Bởi đặc thù nhà 1 tầng thì phần móng đôn cao góp phần tăng sự bề thế cho công trình hơn thế nữa là đảm bảo sự khô ráo, thoáng mát, tránh ẩm ướt phù hợp với khí hậu thời tiết ở Việt Nam. Bên cạnh đó thiết kế bậc ngũ cấp giúp kết nối giữa mặt sân và sàn nhà giúp cho mọi người có thể đi lại dễ dàng. Hệ bậc được kiến trúc sư tính toán thiết kế thoải rộng, nhịp bậc đều, đến cả người già và trẻ nhỏ cũng có thể dễ dàng di chuyển lên xuống.

Mẫu nhà vườn cấp 4 mái Nhật mang phong cách Tân Cổ Điển
Điểm ấn tượng nhất đối với mẫu nhà vườn Mái Nhật Tân Cổ Diển này có lẽ phải kể đến hệ mái nhà khá ấn tượng với nhiều chi tiết chuồng chim khiến công trình trở nên nổi bật thu hút hơn, chi tiết này giúp tạo điểm nhấn cho ngôi nhà trở nên hoàn mỹ và sang trọng rất nhiều lần. Thông thường, ô cửa chuồng chim sẽ được gia chủ thiết kế và sử dụng các ô gió. Chính vì vậy, mái ngói sẽ có được nguồn ánh sáng tự nhiên giúp việc di chuyển, kiểm tra phần mái trở nên đơn giản và thuận tiện rõ rệt.
Chưa dừng lại ở đó, với những ngôi nhà có thiết kế bồn nước lộ thiên ở phần sau thì ô cửa chuồng chim phía trước có tác dụng luân chuyển không khí. Từ đó, mái ngói sẽ mát hơn giúp cho hiệu quả chống nắng ngôi nhà nâng cao rõ rệt. Thực tế, bạn sẽ cảm nhận tầng áp mái thông thoáng hơn vào những ngày có thời tiết nóng nực và oi bức.
Nhà cấp 4 mái Nhật đẹp với góc view bên phải
Một phần góp nên vẻ đẹp của mẫu nhà vườn mái Nhật không thể không nhắc đến là hệ cửa chính và cửa phụ. Không gian nơi đây có sự kết hợp linh hoạt của của gỗ pano nâu và cửa nhôm xingfa . Nếu như cửa gỗ pano kính mang đến thẩm mỹ sang trọng đảm bảo sự riêng tư kín đáo thì hệ nhôm kính xingfa lại mang đến vẻ đẹp hiện đại, trẻ trung, thanh lịch. Ở đây có sự kết hợp hoàn hảo giữa kín và mở đem lại trải nghiệm hoàn hảo nhất cả về thẩm mỹ và công năng cho gia chủ.

Phối cảnh 3D đẹp nhẹ nhàng tinh tế
Xung quang ngôi nhà được bố trí nhất nhiều bồn hoa ,cây cảnh đây không chỉ giúp cải thiện không khí trong lành. Đây còn là nơi để bạn tân hưởng cuộc sống bình yên. Không gian sống thoáng đãng, mát mẻ sẽ giúp bạn xua tan mọi ồn ào của cuộc sống
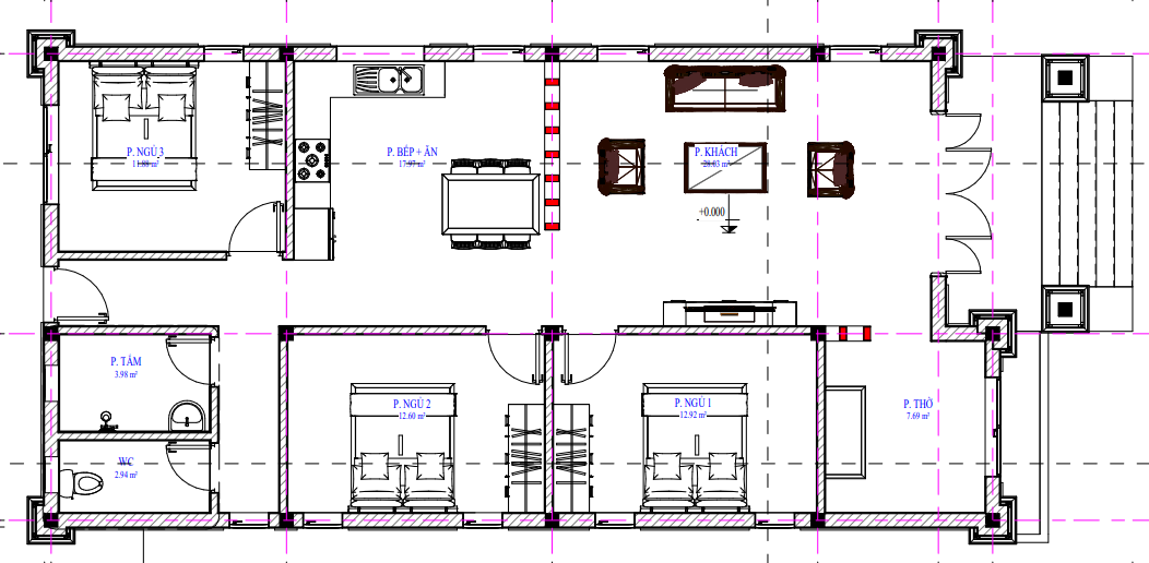
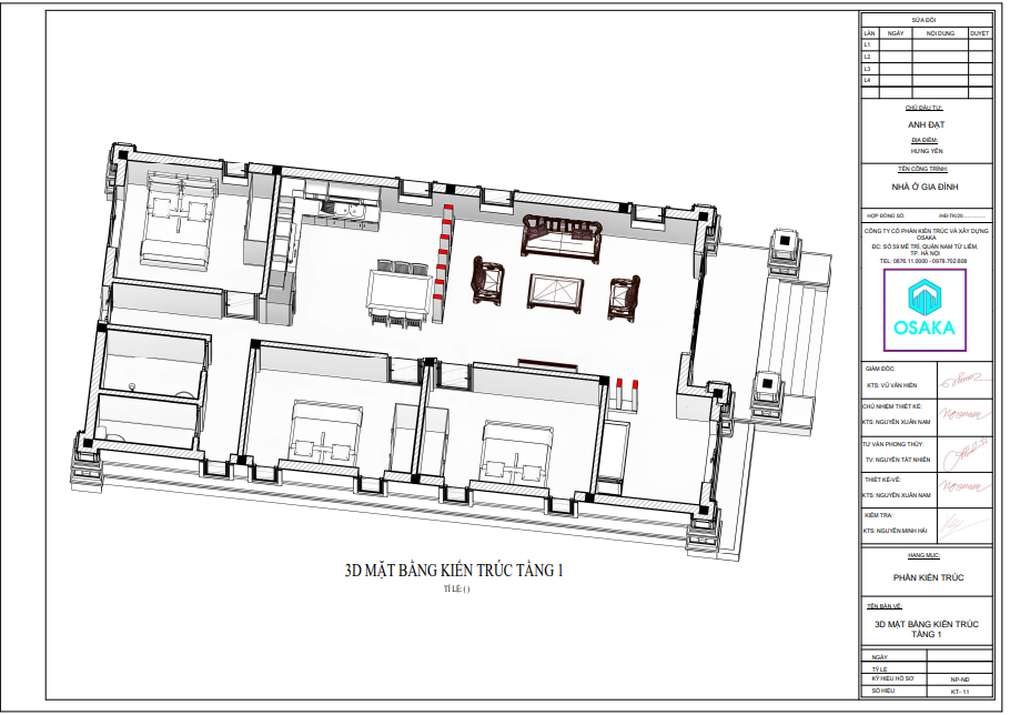
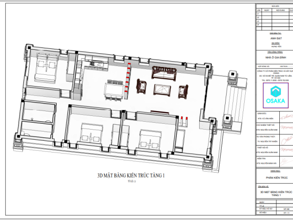
Mặt bằng công năng mẫu nhà cấp 4 phong cách tân cổ điển
Khảo sát, ký hợp đồng thiết kế công trình Anh Đạt
Dựa trên nhu cầu sử dụng của nhà anh Đạt , kiến trúc sư Osaka đã lên phương án mặt bằng công năng tiện nghi và khoa học cho mẫu nhà vườn mái Nhật như sau:
Tổng diện tích sử dụng là 125 m2 bao gồm:
-
- Không gian phòng khách có diện tích 28.03 m2
- Phòng bếp cùng phòng ăn có diện tích 17.97 m2
- Phòng ngủ 1 có diện tích 12.92 m2
- Phòng ngủ 2 có diện tích 12.6 m2
- Phòng ngủ 3 có diện tích 11.88 m2
- Phòng thờ có diện tích 7.69 m2
- 1 Phòng vệ sinh có diện tích 2.94 m2
- 1 phòng tắm có diện tích 3.98 m2

Mặt bằng công năng nhà cấp 4 mái Nhật
Thông tin liên hệ và tư vấn
Công ty cổ phần kiến trúc Osaka là một trong những công ty đi đầu trong lĩnh vực thiết kế và thi công trọn gói công trình nhà dân trên 63 tỉnh thành, uy tín hàng đầu tại Việt Nam, trên 10 năm kinh nghiệm có đội ngũ KTS chuyên nghiệp. Chuyên thiết kế nhà đẹp, công trình thi công đảm bảo chất lượng, bàn giao đúng tiến độ. Hãy đến với chúng tôi để sở hữu ngôi nhà đẹp của riêng bạn không chỉ ở mẫu nhà cấp 4 hiện đại mà còn ở mọi phong cách.
Để được tư vấn thiết kế nhà đẹp và thi công uy tín, đảm bảo hiện thực hóa đúng bản vẽ và tiến độ, mời Quý khách hàng liên hệ: hotline 0876.11.0000
















Đánh giá
Chưa có đánh giá nào.