MỤC LỤC
Thông tin bổ sung
| Chiều rộng mặt tiền | Mặt tiền 6m-18m |
| Địa điểm | Phú Thọ |
| Diện tích | Diện tích 200m2-250m2 |
| Kiểu kiến trúc, phong cách | Kiến trúc hiện đại |
| Loại công trình | Nhà ống |
| Số tầng | 2 Tầng |
Mặt bằng công năng mẫu nhà phố 2 tầng hiện đại
Sau khi tiến hành khảo sát hiện trường khu đất, lắng nghe và thấu hiểu một cách sâu sắc những mong muốn của gia chủ, chúng tôi đã bố trí các phòng một cách thật hợp lý cho gia chủ.
Công trình thiết kế nhà phố đẹp với :
- Phối cảnh tổng thể công trình có chiều rộng mặt tiền : “ 6 m “ và chiều sâu : “ 18 m”
- Diện tích sử dụng : 216 m2
Sự hoàn mỹ của một công trình, không chỉ nằm ở phần thẩm mỹ ngoại thất mà còn đòi hỏi phải mang lại được sự tiện nghi về công năng sử dụng. Thấu hiểu rõ điều đó, chúng tôi đã nghiên cứu và bố trí mặt bằng công năng một cách hợp lý, phù hợp với nhu cầu sinh hoạt của gia đình. Sau đây, xin mời quý khách cùng tìm hiểu chi tiết công năng sử dụng của mẫu nhà ống đẹp này.
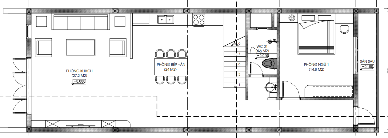
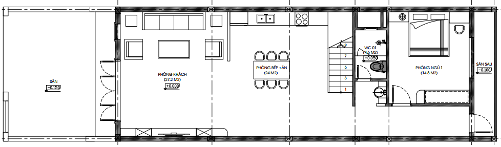
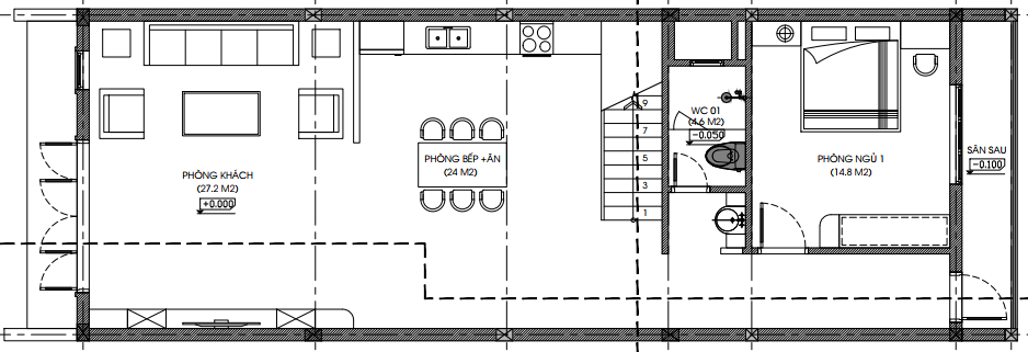
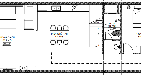
Tầng 1:
- Không gian phòng khách có diện tích 27,2 m2
- Phòng bếp cùng phòng ăn có diện tích 24 m2
- Phòng ngủ 1 có diện tích 14,8 m2
- Phòng vệ sinh có diện tích 4,6 m2

Mặt bằng công năng tầng 1
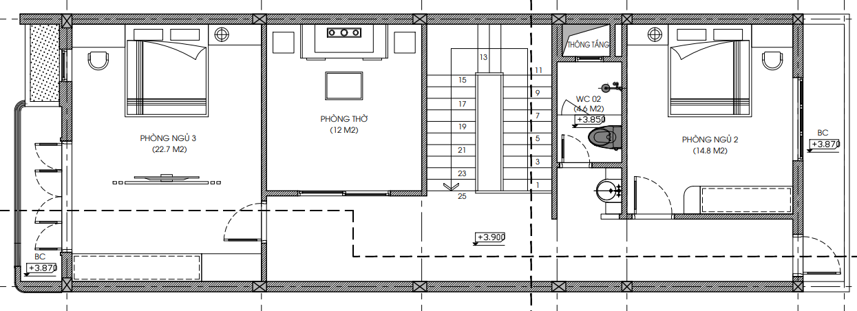
Tầng 2:
- Phòng ngủ 2 có diện tích 14,8 m2
- Phòng ngủ 3 có diện tích 22,7 m2
- Phòng thờ có diện tích 12 m2
- Phòng vệ sinh có diện tích 4,6 m2

Mặt bằng công năng tầng 2
Phối cảnh 3D mẫu nhà phố 2 tầng hiện đại
Mẫu nhà phố đẹp hiện đại được đội ngũ kiến trúc sư thiết kế với phong cách hiện đại, với cái nhìn trẻ trung, năng động. Gây ấn tượng bởi phần ngoại thất tươi sáng khi sử dụng tông trắng làm chủ đạo phối hợp cùng màu đen của hệ cửa là màu sắc tương phản tạo điểm nhấn cho công trình. Kiến trúc sư tính toán tỉ mỉ về kích thước, phân bổ màu sắc tạo nên nét đẹp tinh tế, nổi bật, vô cùng bắt mắt cho công trình.

Mặt tiền mẫu nhà ống đẹp với hình khối đơn giản, ấn tượng
Hệ cổng chính kết hợp giữa khung sắt định hình và nan gỗ ngang, vừa đảm bảo tính riêng tư nhưng vẫn duy trì sự thông thoáng. Đá thẻ màu xám ốp trang trí tại các mảng tường diện đứng tạo sự tương phản mạnh mẽ về chất liệu.
Mở ra không gian tầng 1 được thiết kế thoáng đạt với hệ cửa ra vào lớn sử dụng chất liệu nhôm kính xingfa màu vân gỗ lấy trọn ánh sáng tự nhiên vào công trình nhà giúp ngôi nhà luôn thoáng đãng, sáng sủa. Điểm nhấn là mặt tiền tầng 1 được ốp đá hoa cương cao cấp màu đen vân trắng sang trọng, với tông màu tối thì ngôi nhà luôn sạch sẽ, mới mẻ theo thời gian.

Mặt tiền mẫu nhà ống đẹp với hình khối đơn giản, ấn tượng
Đối với những công trình nhà ống có nhược điểm là mặt tiền không quá rộng. Vì vậy, để đảm bảo các yếu tố như: điều kiện ánh sáng, độ thông thoáng thì ở các tầng đều được bố trí thêm hệ ban công rộng. Hệ ban công vừa đóng vai trò trong việc điều hòa không khí, là nơi gia chủ có thể đón nắng, đón gió tự nhiên vào không gian nội thất. Tại đây kiến trúc sư khéo léo bố trí hệ thống cây xanh, điểm tô vẻ đẹp tươi mới, tràn đầy năng lượng cho ngôi nhà.

Mặt tiền mẫu nhà ống đẹp với hình khối đơn giản, ấn tượng
Hệ lan can ban công làm từ chất liệu sắt sơn tĩnh điện cao cấp giúp mẫu nhà ống 3 tầng mái bằng trở nên trẻ trung, năng động và đẹp mắt hơn. Toàn bộ cửa sổ, cửa ra vào ở các tầng cũng được làm bằng chất liệu nhôm kính xingfa cao cấp giúp công trình thêm phần sang trọng. Nhằm cung cấp ánh sáng ngôi nhà khi màn đêm xuống, kiến trúc sư thiết kế hệ đèn trang trí cùng đèn led âm trần với nhiều màu sắc lung linh, ngôi nhà trở nên lộng lẫy hơn bao giờ hết ngay cả khi trời tối.

Mặt tiền mẫu nhà ống đẹp với hình khối đơn giản, ấn tượng
Thông tin liên hệ và tư vấn
Công ty cổ phần kiến trúc Osaka là một trong những công ty đi đầu trong lĩnh vực thiết kế và thi công trọn gói công trình nhà dân trên 63 tỉnh thành, uy tín hàng đầu tại Việt Nam, trên 10 năm kinh nghiệm có đội ngũ kiến trúc sư chuyên nghiệp. Chuyên thiết kế nhà đẹp, công trình thi công đảm bảo chất lượng, bàn giao đúng tiến độ. Hãy đến với chúng tôi để sở hữu ngôi nhà đẹp của riêng bạn không chỉ ở mẫu nhà ống hiện đại mà còn ở mọi phong cách.
Để được tư vấn thiết kế nhà đẹp và thi công uy tín, đảm bảo hiện thực hóa đúng bản vẽ và tiến độ, mời Quý khách hàng liên hệ: hotline 0876.11.0000


















Đánh giá
Chưa có đánh giá nào.