MỤC LỤC
Thông tin bổ sung
| Chiều rộng mặt tiền | Mặt tiền 7m-9m |
| Địa điểm | Hà Nội |
| Diện tích | Diện tích 150m2-200m2 |
| Kiểu kiến trúc, phong cách | Kiến trúc hiện đại |
| Loại công trình | Nhà phố |
| Số tầng | 2 tầng 1 tum |
Phối cảnh 3D ngoại thất mẫu nhà phố
Ngôi nhà của gia đình anh Thắng được thiết kế theo phong cách thiên về vẻ đẹp chuẩn mực, cân đối và sang trọng. Công trình là sự giao thoa tinh tế giữa hình khối kiến trúc hiện đại và các chi tiết trang trí của phong cách tân cổ điển đã được lược giản. Tổng thể là một khối hộp vuông vức, vững chãi, thể hiện sự kiên cố và bền vững.

Phối cảnh 3D mẫu nhà ống 2 tầng 1 tum hiện đại đẹp xuất sắc
Mặt tiền được chia thành hai phần rõ rệt theo phân vị đứng tạo nên sự tương phản thú vị. Sự đối lập giữa màu vàng nâu ấm áp, bóng bẩy của đá ốp tầng 1 và màu trắng lì, tinh khôi của tường tầng 2 tạo nên sức hút thị giác mạnh mẽ. Màu đen của khung nhôm cửa sổ, lan can và giàn mái đóng vai trò là những nét “viền” sắc sảo, giúp định hình rõ ràng các khối kiến trúc trên nền tường trắng.
Khối đế tầng 1 như một bệ đỡ vững chắc cho toàn bộ công trình. Toàn bộ mặt tiền tầng 1 được ốp đá Marble (cẩm thạch) tone màu vàng nâu vân mây tự nhiên. Việc sử dụng vật liệu đá tại tầng thấp không chỉ tăng tính thẩm mỹ, tạo vẻ sang trọng, bề thế mà còn đảm bảo độ bền, sạch sẽ, chống bám bẩn cho khu vực tiếp cận mặt đường. Hệ cửa cuốn kết hợp cửa kính khung nhôm xingfa đảm bảo an ninh nhưng vẫn lấy sáng tốt cho không gian bên trong.

Phối cảnh 3D mẫu nhà ống 2 tầng 1 tum hiện đại đẹp xuất sắc
Sự chuyển màu sang tông màu trắng sứ kinh điển ở tầng 2, giúp công trình trông thanh thoát và nhẹ nhàng hơn. Điểm nhấn kiến trúc nằm ở hệ phào chỉ bao quanh khung cửa sổ và các đường gờ chạy ngang tường. Các chi tiết này không rườm rà như kiến trúc cổ điển truyền thống mà được tiết chế tối đa, chỉ giữ lại những đường nét thanh mảnh để tạo điểm nhấn thị giác.
Các ô cửa sổ cũng được phào chỉ nhẹ nhàng, tinh tế mềm mại. Cửa có kích thước lớn được làm bằng chất liệu nhôm kính xingfa giúp tận dụng tối đa ánh sáng chiếu vào trong nhà mang không khí trong lành, thoáng đãng tạo cảm giác rộng rãi đồng thời cũng mở ra nhiều hướng view đẹp mắt ra khung cảnh bên ngoài.

Phối cảnh 3D mẫu nhà ống 2 tầng 1 tum hiện đại đẹp xuất sắc
Tầng mái và sân thượng được thiết kế mở hoàn toàn với hệ khung Pergola sắt sơn tĩnh điện màu đen nghệ thuật. Hệ mái kính cường lực phía trên vừa có tác dụng che mưa, vừa lấy sáng tối đa cho sân vườn trên cao. Lan can sắt mỹ thuật đồng bộ với giàn mái, tạo nên một tổng thể thống nhất, nhẹ nhàng và thông thoáng.
Đây còn là không gian lý tưởng cho gia đình anh Thắng tổ chức tiệc ngoài trời, trồng cây cảnh hoặc đơn giản là ngắm cảnh thành phố, bù đắp cho sự thiếu hụt không gian xanh ở mặt đất.
Có thể thấy, ngôi nhà của gia đình anh Thắng mang vẻ đẹp của sự “vững chãi và thanh lịch”. Thiết kế không chạy theo những hình khối cầu kỳ mà tập trung vào tỷ lệ cân đối, vật liệu cao cấp và công năng sử dụng thực tế, phù hợp với nếp sống của một gia đình hiện đại yêu thích sự chỉn chu.
Mặt bằng công năng mẫu nhà phố 2 tầng 1 tum
Nhằm hướng đến sự hoàn mỹ, không chỉ cầu kỳ từ phần ngoại thất mà còn đòi hỏi công năng đáp ứng tiện nghi trong quá trình sử dụng cũng như sắp xếp bố cục sao cho khoa học. Chính vì vậy, sau khi tiếp nhận thông tin của gia chủ, Osaka đã có buổi khảo sát trực tiếp nhằm tìm hiểu về địa chất công trình, cũng như nắm bắt được tâm của gia chủ để lên phương án thiết kế phù hợp.
Công trình thiết kế nhà phố 2 tầng 1 tum hiện đại đẹp với:
- Phối cảnh tổng thể công trình có chiều rộng mặt tiền : “ 7,2 m “ và chiều sâu : “ 8,68 m”
- Diện tích sử dụng : 156,2 m2
Chi tiết công năng sử dụng của mẫu nhà phố 3 tầng hiện đại:
Tầng 1:
- Không gian để xe có diện tích: 5,51 m2
- Không gian phòng khách+bếp có diện tích: 27,2 m2
- Phòng ngủ 1 có diện tích 10,54 m2
- Nhà vệ sinh 1 có diện tích 3,29 m2

Mặt bằng công năng tầng 1 nhà phố 2 tầng 1 tum
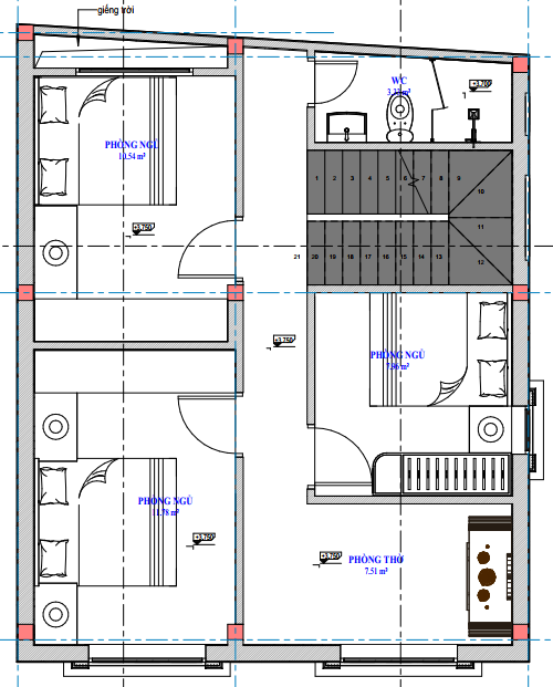
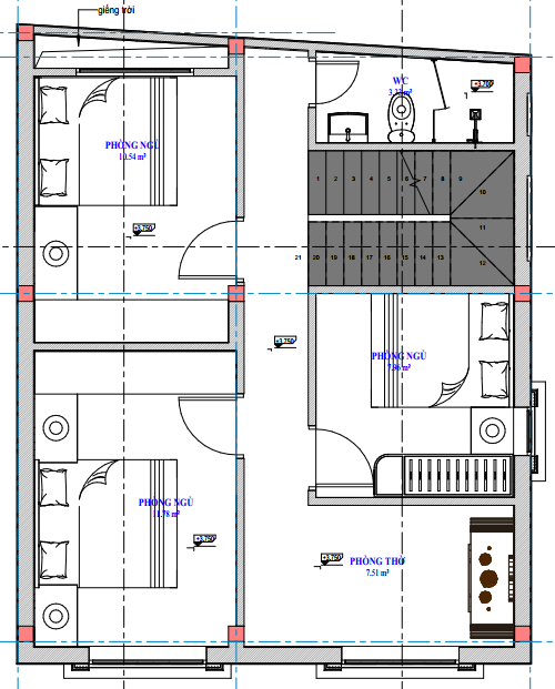
Tầng 2:
- Phòng thờ có diện tích 7,51 m2
- Phòng ngủ 2 có diện tích 11,78 m2
- Phòng ngủ 3 có diện tích 7,96 m2
- Phòng ngủ 4 có diện tích 10,54 m2
- Nhà vệ sinh 2 có diện tích 3,33 m2

Mặt bằng công năng tầng 2 nhà phố 2 tầng 1 tum
Tầng tum:

Mặt bằng công năng tầng tum nhà phố 2 tầng 1 tum
Mặt bằng mái:

Mặt bằng công năng mái nhà phố 2 tầng 1 tum
Thông tin liên hệ và tư vấn
Công ty cổ phần kiến trúc Osaka là một trong những công ty đi đầu trong lĩnh vực thiết kế và thi công trọn gói công trình nhà dân trên 63 tỉnh thành, uy tín hàng đầu tại Việt Nam, trên 10 năm kinh nghiệm có đội ngũ kiến trúc sư chuyên nghiệp. Chuyên thiết kế nhà đẹp, công trình thi công đảm bảo chất lượng, bàn giao đúng tiến độ. Hãy đến với chúng tôi để sở hữu ngôi nhà đẹp của riêng bạn không chỉ ở mẫu nhà ống hiện đại mà còn ở mọi phong cách.
Để được tư vấn thiết kế nhà đẹp và thi công uy tín, đảm bảo hiện thực hóa đúng bản vẽ và tiến độ, mời Quý khách hàng liên hệ: hotline 0876.11.0000
























Đánh giá
Chưa có đánh giá nào.