MỤC LỤC
Thông tin bổ sung
| Chiều rộng mặt tiền | Mặt tiền 5m-11m |
| Địa điểm | Hà Nội |
| Diện tích | Diện tích 150m2-200m2 |
| Kiểu kiến trúc, phong cách | Kiến trúc hiện đại |
| Loại công trình | Nhà phố |
| Số tầng | 3 tầng |
Phối cảnh 3D ngoại thất mẫu nhà phố
Ngôi nhà của gia đình anh Hai mang ngôn ngữ thiết kế hiện đại pha lẫn chút lãng mạn của xu hướng Soft Modern (Hiện đại đường cong). Đây là một thiết kế rất “nghệ”, trẻ trung và phá cách.

Phối cảnh 3D mẫu nhà ống 3 tầng hiện đại đẹp xuất sắc
Điểm đắt giá nhất của ngôi nhà nằm ở tư duy tạo hình phi đối xứng kết hợp với các đường cong mềm mại. Kiến trúc sư đã khéo léo lồng ghép các vòm cong vào mặt tiền vốn dĩ vuông vức của nhà phố. Vòm lớn tạo cảm giác rộng mở, đóng vai trò như một khung tranh lớn kết nối không gian nội thất với đường phố. Vòm cong nhỏ sử dụng tỷ lệ vòm hẹp và cao, tạo nên nét duyên dáng và thanh thoát.
Mặt tiền không phẳng lì mà có sự lồi lõm, giật cấp thú vị. Khối kiến trúc ốp đá xám bên phải chạy dọc từ tầng 2 lên mái tạo thành một “trục xương sống” vững chãi, đan cài vào khối vòm trắng mềm mại bên trái. Bề mặt nhám này tương phản mạnh mẽ với lớp sơn trắng mịn màng của khối kiến trúc chính. Các chi tiết trần ban công, lam trang trí dưới cửa sổ sử dụng tone màu gỗ nâu cam. Đây là nét chấm phá ấm áp giúp cân bằng lại sự lạnh lẽo của tông màu trắng – xám chủ đạo.
Tầng trệt được ốp toàn bộ đá Marble trắng vân mây. Việc sử dụng đá trắng đồng bộ với khối nhà phía trên giúp công trình trông cao ráo và liền mạch hơn. Cổng vào thiết kế đơn giản, gọn gàng để nhường “sân khấu” tỏa sáng cho kiến trúc tầng trên. Các ô lấy sáng cũng được bo viền nhẹ nhàng, tinh tế mềm mại. Cửa có kích thước lớn được làm bằng chất liệu nhôm kính xingfa giúp tận dụng tối đa ánh sáng chiếu vào trong nhà mang không khí trong lành, thoáng đãng tạo cảm giác rộng rãi đồng thời cũng mở ra nhiều hướng view đẹp mắt ra khung cảnh bên ngoài.

Phối cảnh 3D mẫu nhà ống 3 tầng hiện đại đẹp xuất sắc
Trên cùng là hệ lam che nắng cách điệu, vừa tạo bóng đổ nghệ thuật xuống sân thượng, vừa định hình không gian cho khu vực thư giãn. Lan can sắt mỹ thuật đồng bộ với giàn mái, tạo nên một tổng thể thống nhất, nhẹ nhàng và thông thoáng.
Ban công tuy diện tích không quá lớn nhưng được thiết kế khéo léo với bồn cây âm tường, mang mảng xanh len lỏi vào từng tầng, bù đắp cho sự thiếu hụt không gian xanh ở mặt đất.
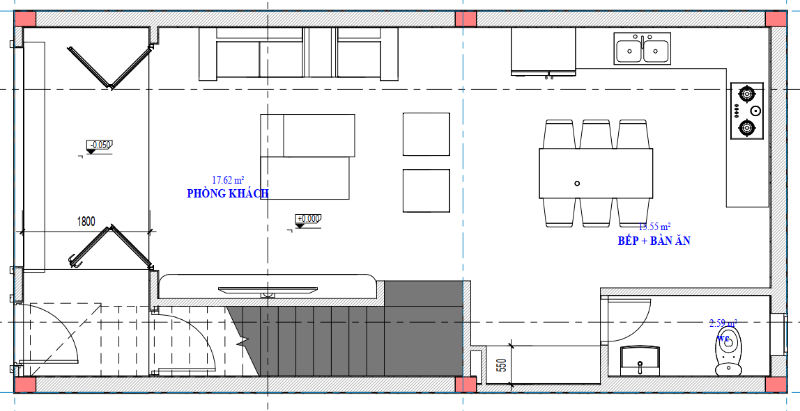
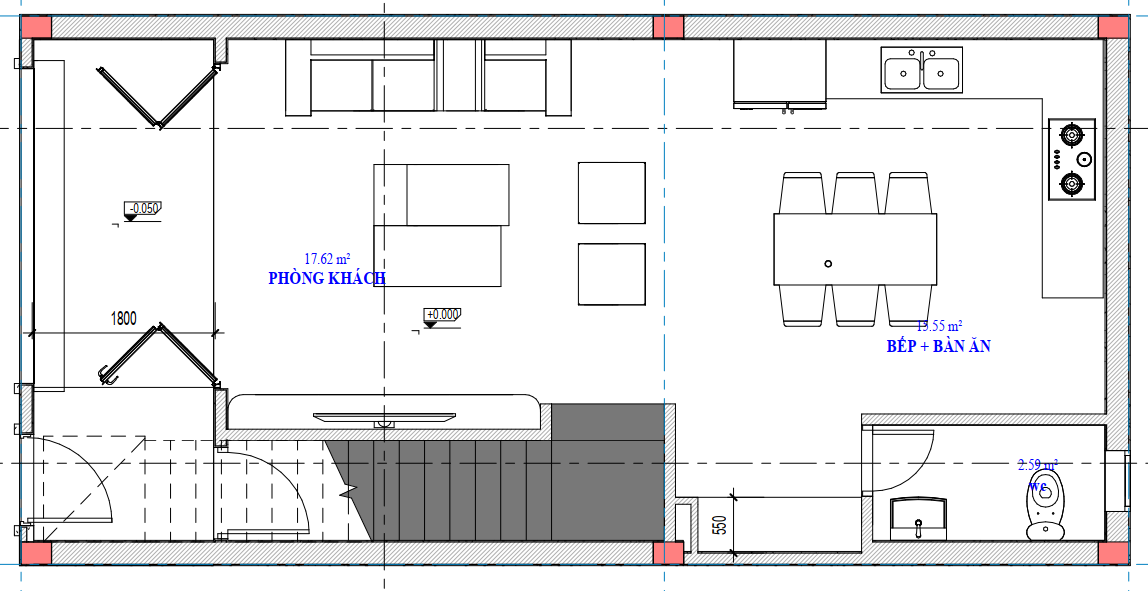
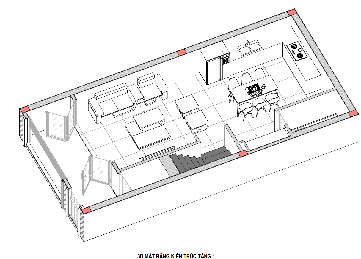
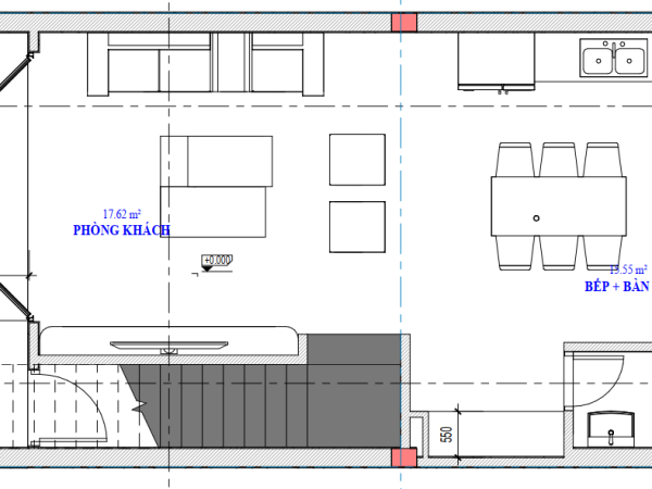
Mặt bằng công năng mẫu nhà phố 3 tầng
Nhằm hướng đến sự hoàn mỹ, không chỉ cầu kỳ từ phần ngoại thất mà còn đòi hỏi công năng đáp ứng tiện nghi trong quá trình sử dụng cũng như sắp xếp bố cục sao cho khoa học. Chính vì vậy, sau khi tiếp nhận thông tin của gia chủ, Osaka đã có buổi khảo sát trực tiếp nhằm tìm hiểu về địa chất công trình, cũng như nắm bắt được tâm của gia chủ để lên phương án thiết kế phù hợp.
Công trình thiết kế nhà phố 3 tầng hiện đại đẹp với:
- Phối cảnh tổng thể công trình có chiều rộng mặt tiền : “ 5,4 m “ và chiều sâu : “ 10,9 m”
- Diện tích sử dụng : 176,58 m2
Chi tiết công năng sử dụng của mẫu nhà phố 3 tầng hiện đại:
Tầng 1:
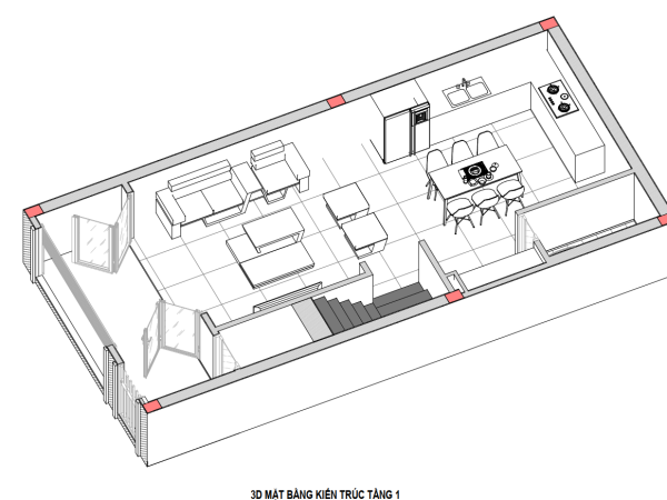
- Không gian phòng khách có diện tích: 17,62 m2
- Không gian phòng bếp+ăn có diện tích 15,55 m2
- Nhà vệ sinh 1 có diện tích 2,59 m2

Mặt bằng công năng tầng 1 nhà phố 3 tầng
Tầng 2:
- Phòng ngủ 1 có diện tích 13,27 m2
- Phòng ngủ 2 có diện tích 20,7 m2
- Nhà vệ sinh 2 có diện tích 2,29 m2

Mặt bằng công năng tầng 2 nhà phố 3 tầng
Tầng 3:
- Phòng thờ có diện tích 8,66 m2
- Phòng ngủ 3 có diện tích 16,55 m2
- Sân phơi có diện tích 8,68 m2
- Sân chơi
Mặt bằng công năng tầng 3 nhà phố 3 tầng
Mặt bằng mái:

Mặt bằng công năng mái nhà phố 3 tầng
Thông tin liên hệ và tư vấn
Công ty cổ phần kiến trúc Osaka là một trong những công ty đi đầu trong lĩnh vực thiết kế và thi công trọn gói công trình nhà dân trên 63 tỉnh thành, uy tín hàng đầu tại Việt Nam, trên 10 năm kinh nghiệm có đội ngũ kiến trúc sư chuyên nghiệp. Chuyên thiết kế nhà đẹp, công trình thi công đảm bảo chất lượng, bàn giao đúng tiến độ. Hãy đến với chúng tôi để sở hữu ngôi nhà đẹp của riêng bạn không chỉ ở mẫu nhà ống hiện đại mà còn ở mọi phong cách.
Để được tư vấn thiết kế nhà đẹp và thi công uy tín, đảm bảo hiện thực hóa đúng bản vẽ và tiến độ, mời Quý khách hàng liên hệ: hotline 0876.11.0000






















Đánh giá
Chưa có đánh giá nào.