Thông tin bổ sung
| Chiều rộng mặt tiền | Mặt tiền 4,5m-18m |
| Địa điểm | Hải Dương |
| Diện tích | Diện tích 300m2-350m2 |
| Kiểu kiến trúc, phong cách | Kiến trúc hiện đại |
| Loại công trình | Nhà ống |
| Số tầng | 3 tầng 1 tum |
Mặt bằng công năng mẫu nhà phố 3 tầng 1 tum hiện đại
Khi tiếp nhận được thông tin yêu cầu từ chủ đầu tư, OSAKA đã lên kế hoạch để đến khảo sát trực tiếp tại khu vực xây dựng. Nhằm tìm hiểu về địa chất, địa mạo cũng như nắm bắt nhu cầu thực tế, tâm tư nguyện vọng của gia chủ. Từ đó, lên ý tưởng thiết kế mặt bằng công năng đảm bảo về mặt tiện nghi, đáp ứng yêu cầu của chủ nhà cùng bố cục sắp xếp khoa học, hợp lý.
Công trình thiết kế nhà phố đẹp với:
- Phối cảnh tổng thể công trình có chiều rộng mặt tiền : “ 4,5 m “ và chiều sâu : “ 18 m”
- Diện tích sử dụng : 324 m2
Sự hoàn mỹ của một công trình, không chỉ nằm ở phần thẩm mỹ ngoại thất mà còn đòi hỏi phải mang lại được sự tiện nghi về công năng sử dụng. Thấu hiểu rõ điều đó, chúng tôi đã nghiên cứu và bố trí mặt bằng công năng một cách hợp lý, phù hợp với nhu cầu sinh hoạt của gia đình. Sau đây, xin mời quý khách cùng tìm hiểu chi tiết công năng sử dụng của mẫu nhà ống đẹp này.
Tầng 1:
- Không gian phòng khách có diện tích: 15,5 m2
- Phòng bếp+ăn có diện tích 16 m2
- Nhà vệ sinh 1 có diện tích 2,2 m2

Mặt bằng công năng tầng 1 nhà phố 3 tầng 1 tum
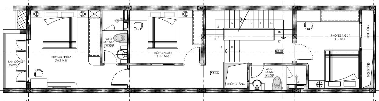
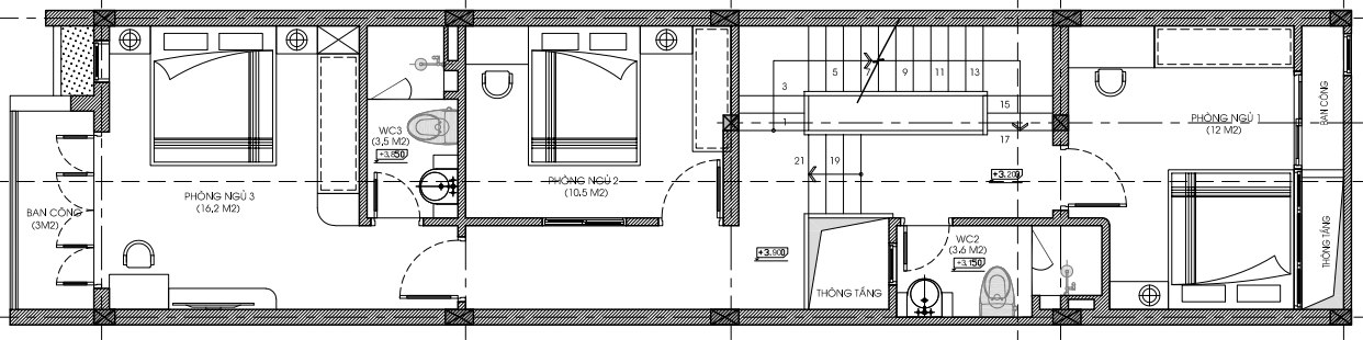
Tầng 2:
- Phòng ngủ 1 có diện tích 12 m2
- Phòng ngủ 2 có diện tích 10,5 m2
- Phòng ngủ 3 có diện tích 16,2 m2
- Nhà vệ sinh 2 có diện tích 3,6 m2
- Nhà vệ sinh 3 có diện tích 3,5 m2

Mặt bằng công năng tầng 2 nhà phố 3 tầng 1 tum
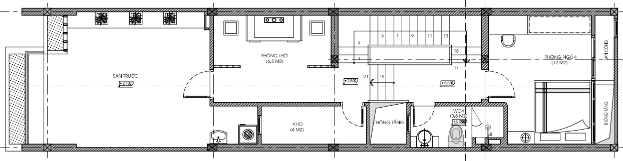
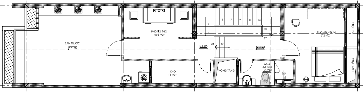
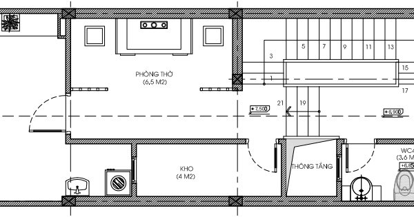
Tầng 3:
- Phòng thờ có diện tích 6,5 m2
- Phòng ngủ 4 có diện tích 12 m2
- Phòng kho có diện tích 4 m2
- Nhà vệ sinh có diện tích 3,6 m2

Mặt bằng công năng tầng 3 nhà phố 3 tầng 1 tum
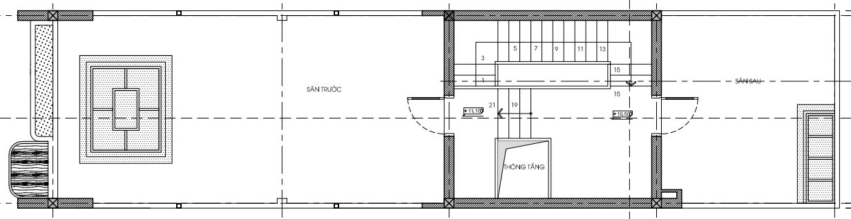
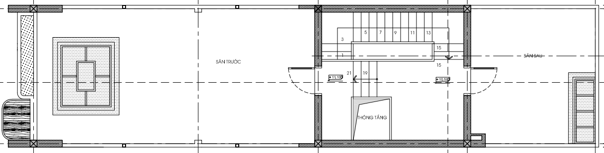
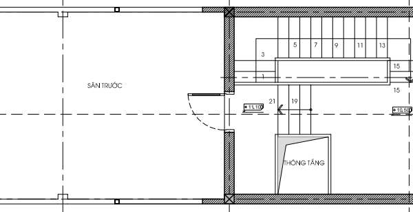
Tầng tum:

Mặt bằng công năng tầng tum nhà phố 3 tầng 1 tum
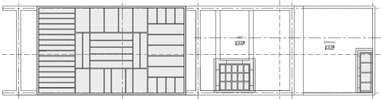
Mặt bằng mái:

Phối cảnh 3D mẫu nhà phố 3 tầng 1 tum hiện đại
Không gian ngoại thất của mẫu nhà ống đẹp 3 tầng 1 tum hiện đại đẹp được làm nổi bật nhờ vào lối kiến trúc hiện đại, tinh tế, hình khối khỏe khoắn, sự kết hợp hài hòa giữa các gam màu sắc, cảnh quan sân vườn tươi mát tiểu cảnh cây cối ngập tràn, các nguyên vật liệu cao cấp dễ tìm, gây ấn tượng, rất phù hợp với xu hướng kiến trúc hội nhập ngày nay, thể hiện được sự tinh tế, sắc sảo.

Mặt tiền mẫu nhà ống đẹp ấn tượng
Ngôi nhà sử dụng gam màu trắng chủ đạo, kết hợp hài hòa với màu nâu gỗ và xám đậm, tạo cảm giác sang trọng nhưng vẫn ấm áp. Các mảng đặc – rỗng được xử lý khéo léo, giúp ngôi nhà trông thanh thoát, cao ráo và hiện đại. Không gian xanh được bố trí xen kẽ ở ban công và sân thượng, mang lại sự gần gũi với thiên nhiên.
Tầng trệt được thiết kế đơn giản nhưng chắc chắn, tại mặt tiền tầng 1 còn được ốp toàn bộ bằng đá granite màu trầm để tạo sự khác biệt, đồng thời giúp việc bảo vệ cho bề mặt luôn luôn sáng bóng, tránh được sự xâm hại bởi các yếu tố tác động đến từ tự nhiên.

Mặt tiền mẫu nhà ống đẹp, ấn tượng
Hệ thống cửa chính, cửa sổ của ngôi nhà được bố trí rất khoa học, đa phần đều được sử dụng loại kính cường lực với tính cách âm cách nhiệt tốt, mang lại sự lưu thông giữa 2 không gian trong ngoài luôn đảm bảo được sự thoải mái và dễ chịu, thoát mát cho quá trình sinh hoạt và nghỉ ngơi hàng ngày của gia đình chủ đầu tư.
Ban công tầng 2 khá rộng rãi cùng với lan can bằng kính cường lực giúp cho ngôi nhà thêm phần hiện đại và sang trọng. Ngoài là nơi dẫn dắt ánh sáng và gió tự nhiên vào bên trong không gian nội thất thì khu vực ban công còn được tận dụng làm nơi thư giãn, ngắm cảnh, vui chơi cho các thành viên.

Mặt tiền mẫu nhà ống đẹp ấn tượng
Khi quan sát phối cảnh tổng của ngôi nhà ống 3 tầng 1 tum hiện đại này, sức hút đến từ sự kết hợp hài hòa của những vật liệu hiện đại đã khiến mọi người khó có thể rời mắt. Hệ thống đèn LED âm trần kết hợp với màu nâu gỗ ốp trần, không những tăng cường ánh sáng mà còn là chi tiết trang trí giúp ngôi nhà lung linh hơn khi màn đêm buông xuống.
Đặc biệt hơn, thiết kế sử dụng các khoảng thông tầng (giếng trời) và cửa kính lớn để lấy sáng tự nhiên và tạo cảm giác rộng rãi, thoáng đãng, khắc phục nhược điểm diện tích hẹp thường gặp ở nhà phố. Tầng trên cùng có mái che bằng kính cường lực, có thể dùng làm khu vực sinh hoạt chung, thư giãn hoặc vườn thượng uyển, phục vụ cho cuộc sống của gia đình cũng rất ý nghĩa.
Có thể nói, đây là một mẫu nhà phố được các kiến trúc sư OSAKA thiết kế thông minh, chú trọng vào tiện nghi, thẩm mỹ và sự kết nối giữa con người với thiên nhiên trong môi trường đô thị.
Thông tin liên hệ và tư vấn
Công ty cổ phần kiến trúc Osaka là một trong những công ty đi đầu trong lĩnh vực thiết kế và thi công trọn gói công trình nhà dân trên 63 tỉnh thành, uy tín hàng đầu tại Việt Nam, trên 10 năm kinh nghiệm có đội ngũ kiến trúc sư chuyên nghiệp. Chuyên thiết kế nhà đẹp, công trình thi công đảm bảo chất lượng, bàn giao đúng tiến độ. Hãy đến với chúng tôi để sở hữu ngôi nhà đẹp của riêng bạn không chỉ ở mẫu nhà ống hiện đại mà còn ở mọi phong cách.
Để được tư vấn thiết kế nhà đẹp và thi công uy tín, đảm bảo hiện thực hóa đúng bản vẽ và tiến độ, mời Quý khách hàng liên hệ: hotline 0876.11.0000




















Đánh giá
Chưa có đánh giá nào.