Thông tin bổ sung
| Chiều rộng mặt tiền | Mặt tiền 4,5m-15,5m |
| Địa điểm | Hải Dương |
| Diện tích | Diện tích 150m2-200m2 |
| Kiểu kiến trúc, phong cách | Kiến trúc hiện đại |
| Loại công trình | Nhà ống |
| Số tầng | 2 tầng 1 tum |
Mặt bằng công năng mẫu nhà phố 2 tầng 1 tum hiện đại
Sau khi tiến hành khảo sát hiện trường khu đất, lắng nghe và thấu hiểu một cách sâu sắc những mong muốn của gia chủ, chúng tôi đã bố trí các phòng một cách thật hợp lý cho gia chủ.
Công trình thiết kế nhà phố đẹp với:
- Phối cảnh tổng thể công trình có chiều rộng mặt tiền : “ 4,5 m “ và chiều sâu : “ 15,5 m”
- Diện tích sử dụng : 175 m2
Thực sự, một ngôi nhà không chỉ nhìn ở vẻ bề ngoài đẹp rồi nói là hoàn hảo được. Muốn hoàn hảo thì ngôi nhà phải được bố trí các phòng chức năng hợp lý để tận dụng tối đa công năng sử dụng. Hiểu được một cách sâu sắc điều đó, chúng tôi đã bố trí các phòng một cách thật hợp lý cho gia nhà. Sau đây chúng tôi xin giới thiệu cho các bạn công năng sử dụng của mẫu nhà ống đẹp này.
Tầng 1:
- Không gian phòng khách kết hợp bếp ăn có diện tích: 41,95 m2
- Phòng ngủ 1 có diện tích 13,72 m2
- Nhà vệ sinh 1 có diện tích 3,36 m2

Mặt bằng công năng tầng 1 nhà phố 2 tầng 1 tum
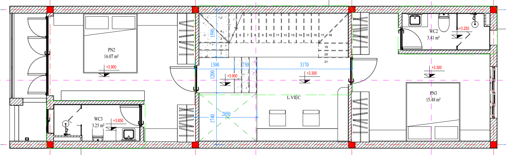
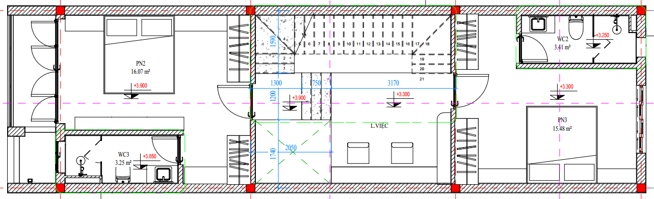
Tầng 2:
- Phòng ngủ 2 có diện tích 16,07 m2
- Nhà vệ sinh 2 có diện tích 3,25 m2
- Phòng ngủ 3 có diện tích 15,48 m2
- Nhà vệ sinh 3 có diện tích 3,41 m2

Mặt bằng công năng tầng 2 nhà phố 2 tầng 1 tum
Tầng tum:
- Phòng thờ
- Sân phơi

Mặt bằng công năng tầng tum nhà phố 2 tầng 1 tum
Phối cảnh 3D mẫu nhà phố 2 tầng 1 tum hiện đại
Không gian ngoại thất của mẫu nhà ống đẹp 2 tầng 1 tum hiện đại đẹp được làm nổi bật nhờ vào lối kiến trúc hiện đại, tinh tế, hình khối khỏe khoắn, sự kết hợp hài hòa giữa các gam màu sắc, cảnh quan sân vườn tươi mát tiểu cảnh cây cối ngập tràn, các nguyên vật liệu cao cấp dễ tìm, gây ấn tượng, rất phù hợp với xu hướng kiến trúc hội nhập ngày nay, thể hiện được sự tinh tế, sắc sảo.

Mặt tiền mẫu nhà ống đẹp với hình khối đơn giản, ấn tượng
Ngôi nhà sử dụng gam màu trắng chủ đạo, kết hợp hài hòa với màu nâu gỗ và xám đậm, tạo cảm giác sang trọng nhưng vẫn ấm áp. Các mảng đặc – rỗng được xử lý khéo léo, giúp ngôi nhà trông thanh thoát, cao ráo và hiện đại. Không gian xanh được bố trí xen kẽ ở ban công và sân thượng, mang lại sự gần gũi với thiên nhiên.
Tầng trệt được thiết kế đơn giản nhưng chắc chắn, nổi bật với cổng sắt kết hợp nan ngang, vừa đảm bảo an ninh vừa tăng tính thẩm mỹ. Hệ cột vuông sơn trắng tạo cảm giác vững chãi. Phía trước có bồn cây xanh chạy dài, giúp làm mềm không gian và giảm bớt sự khô cứng của kiến trúc nhà phố. Cùng với đó, để loại bỏ đi sự đơn điệu, tại mặt tiền tầng 1 còn được ốp toàn bộ bằng đá granite màu trầm để tạo sự khác biệt, đồng thời giúp việc bảo vệ cho bề mặt luôn luôn sáng bóng, tránh được sự xâm hại bởi các yếu tố tác động đến từ tự nhiên.

Mặt tiền mẫu nhà ống đẹp với hình khối đơn giản, ấn tượng
Hệ thống cửa chính, cửa sổ của ngôi nhà được bố trí rất khoa học, đa phần đều được sử dụng loại kính cường lực với tính cách âm cách nhiệt tốt, mang lại sự lưu thông giữa 2 không gian trong ngoài luôn đảm bảo được sự thoải mái và dễ chịu, thoát mát cho quá trình sinh hoạt và nghỉ ngơi hàng ngày của gia đình chủ đầu tư.
Ban công tầng 2 khá rộng rãi cùng với lan can bằng kính cường lực giúp cho ngôi nhà thêm phần hiện đại và sang trọng. Ngoài là nơi dẫn dắt ánh sáng và gió tự nhiên vào bên trong không gian nội thất thì khu vực ban công còn được tận dụng làm nơi thư giãn, ngắm cảnh, vui chơi cho các thành viên.

Mặt tiền mẫu nhà ống đẹp với hình khối đơn giản, ấn tượng
Khi quan sát phối cảnh tổng của ngôi nhà ống 2 tầng 1 tum hiện đại này, sức hút đến từ sự kết hợp hài hòa của những vật liệu hiện đại đã khiến mọi người khó có thể rời mắt. Hệ thống đèn LED âm trần kết hợp với màu nâu gỗ ốp trần, không những tăng cường ánh sáng mà còn là chi tiết trang trí giúp ngôi nhà lung linh hơn khi màn đêm buông xuống.
Điểm nổi bật của mẫu nhà ống 2 tầng 1 tum mái bằng này không thể không nhắc đến đó chính là phần kiến trúc của hệ mái được sử dụng. Mái được thi công hoàn thiện theo kiểu mái bằng vững chắc, tuy không đồ sộ như những loại mái khác nhưng mang lại rất nhiều ưu điểm nổi bật như bền vững, che chắn không gian nội thất hiệu quả, có tính chống cháy cao, chống chọi với những tác động tiêu cực của thời tiết tốt, có thể tận dụng phần mái bằng làm sân vui chơi cho các thành viên, nơi trồng cây cảnh, rau sạch phục vụ cho cuộc sống của gia đình cũng rất ý nghĩa.
Thông tin liên hệ và tư vấn
Công ty cổ phần kiến trúc Osaka là một trong những công ty đi đầu trong lĩnh vực thiết kế và thi công trọn gói công trình nhà dân trên 63 tỉnh thành, uy tín hàng đầu tại Việt Nam, trên 10 năm kinh nghiệm có đội ngũ kiến trúc sư chuyên nghiệp. Chuyên thiết kế nhà đẹp, công trình thi công đảm bảo chất lượng, bàn giao đúng tiến độ. Hãy đến với chúng tôi để sở hữu ngôi nhà đẹp của riêng bạn không chỉ ở mẫu nhà ống hiện đại mà còn ở mọi phong cách.
Để được tư vấn thiết kế nhà đẹp và thi công uy tín, đảm bảo hiện thực hóa đúng bản vẽ và tiến độ, mời Quý khách hàng liên hệ: hotline 0876.11.0000
























Đánh giá
Chưa có đánh giá nào.